562 ESCALA PRIVATE, Ottawa, Ontario, K1W0T1
MLS: X12824548 | Townhouse (Freehold)
$483,990






Property Description
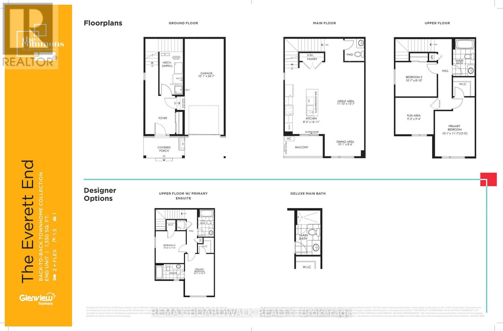
'The Everett' - an exquisite 3-storey back-to-back townhome debuting for the 1st time in the highly desirable Chapel Hill community -The Commons- by Glenview Homes! First-Time Buyer seeking a low-maintenance entry into homeownership or an Investor looking for a premium, high-demand rental property, this END UNIT is a sought-after choice. With 1330sqft this home has been brilliantly designed to maximize space, style, and everyday comfort. Entry level welcomes you with a covered porch, bright foyer, and convenient garage access. The open-concept main floor centers around a stunning kitchen featuring a quartz island, opens to a private balcony perfect for morning coffee, and is equipped with a full suite of stainless steel appliances. Entertain seamlessly in this inviting space and flow into the bright great room and dining areas. Convenient powder room completes this level. Upper level hosts the spacious primary bedroom with a generous walk-in closet, a comfortable second bedroom, flex space perfect as a home office (which can be upgraded to ensuite bathroom), and a modern 4pc bathroom also featuring quartz counters. Coming full of upgrades like smooth ceilings throughout, elegant composite wood flooring on the entry and main levels, and contemporary pot lights that illuminate the space. Customize your layout and finishes by acting now to take advantage of a $2,500 Design Studio Bonus! The Commons is an amenity-rich community offering the perfect blend of convenience and quality of life. Enjoy local shops, fantastic restaurants, parks, and recreation facilities right outside your door. All this and some of the city's best schools. Best of all commuting is a breeze with direct bus route access to Downtown Ottawa and quick access to the city's core. Rendering of the park, interiors and elevations is an artist's concept and is for illustrative purposes only. Actual features, landscaping, and layouts may vary. E&OE (id:64974)
Quick Facts
- Property Type: Townhouse (Freehold)
- Bedrooms: 2 (2 above)
- Bathrooms: 2 (1 half)
- Ownership: Freehold
- Attached: Yes
- Parking: 2 spaces (Attached Garage, Garage)
- Frontage: 28 ft (8.5 m)
Costs
- Condo/HOA Fee: $125.00 / monthly
- Includes: Parcel of Tied Land
Listing Provided by: REMAX BOARDWALK REALTY
Board: Ottawa Real Estate Board
Data provided via CREA DDF®.
Detailed Features
Interior & Systems
- Heating: Forced air, Natural gas
- Cooling: Central air conditioning
- Basement: None
- Appliances: Washer, Refrigerator, Stove, Dryer, Microwave, Hood Fan
Exterior & Construction
- Exterior: Brick, Hardboard
- Foundation: Poured Concrete, Slab
- Sewer: Sanitary sewer
- Water: Municipal water
Lot & Land
- Frontage: 28 ft (8.5 m)
Community & Neighbourhood
- Neighbourhood: 2012 - Chapel Hill South - Orleans Village
Room Details (6 rooms)
Listing Information
Listing History
Buy/Sell/Terminated/Expired listing history for 562 ESCALA PRIVATE, Ottawa, Ontario, K1W0T1
Location & Neighborhood
🚗 Travel times
Neighborhood Walkability
Mortgage & Cost Calculators
Nearby Homes (Within 2km)
Similar Homes
Similar Properties
No rental comparables found in this area.
Sold Comparables
Access to sold property data requires a registered and verified account with TRREB DDF integration.
Coming SoonRented Comparables
Access to rented property data requires a registered and verified account with TRREB DDF integration.
Coming Soon
























