56 BROCK Road S, Puslinch, Ontario, N1H6H9
MLS: 40771193 | House (Freehold)
$1,199,000




Property Description
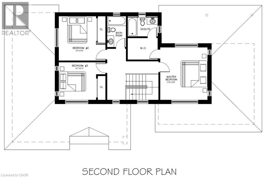
Don't miss your opportunity to get this beautiful custom built home on an oversized lot. With this Custom Built Home you get new home Tarion Warranty, 1745 sq.ft. of Finished Floor Area, 3 Bedroom, 2.5 Bathrooms, Double Car Garage, Full Brick Exterior, Covered Deck Leading to a large Yard, 3 Minutes to the 401, Highly desired Elementary School within 3 minutes walking distance, and a 5 Minutes Drive to South Guelph Amenities Home to be built by Blackhaven Homes. (id:64974)
Quick Facts
- Property Type: House (Freehold)
- Style: 2 Level
- Bedrooms: 3 (3 above)
- Bathrooms: 3 (1 half)
- Living Area: 1,745 sq ft (162.1 m²)
- Above Grade: 1,745 sq ft (162.1 m²)
- Ownership: Freehold
- Attached: No
- Parking: 2 spaces (Attached Garage)
- Frontage: 66 ft (20.1 m)
Costs
- Annual Taxes: $2,026.00
Listing Provided by: RED AND WHITE REALTY INC.
Board: Cornerstone Association of REALTORS®
Data provided via CREA DDF®.
Detailed Features
Interior & Systems
- Heating: Forced air, No heat, Natural gas
- Cooling: None
- Basement: Unfinished, Crawl space
- Utilities: Natural Gas
Exterior & Construction
- Style: 2 Level
- Exterior: Concrete, Wood, Brick
- Construction: Wood frame
- Foundation: Poured Concrete
- Sewer: Septic System
- Water: Well
Lot & Land
- Frontage: 66 ft (20.1 m)
- Features: Crushed stone driveway
- Zoning: R
Community & Neighbourhood
- Community: High Traffic Area
- Subdivision: 23 - Aberfoyle
Room Details (11 rooms)
Listing Information
Listing History
Buy/Sell/Terminated/Expired listing history for 56 BROCK Road S, Puslinch, Ontario, N1H6H9
Location & Neighborhood
🚗 Travel times
Neighborhood Walkability
Mortgage & Cost Calculators
Similar Homes
Similar Properties
No rental comparables found in this area.
Sold Comparables
Access to sold property data requires a registered and verified account with TRREB DDF integration.
Coming SoonRented Comparables
Access to rented property data requires a registered and verified account with TRREB DDF integration.
Coming Soon




















