56-58 FOSTER STREET, Perth, Ontario, K7H1S1
MLS: X12972312 | Offices
$700,000






























Property Description
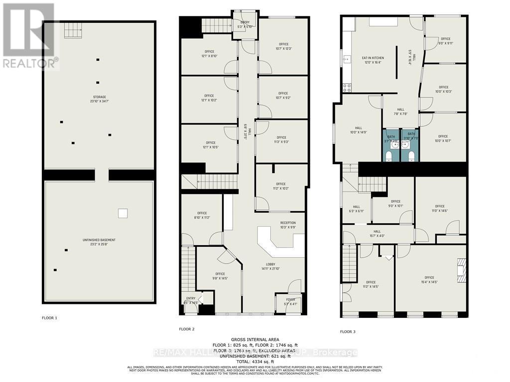
Solid stone commercial building in the heart of all the activities in historic central downtown Perth, high visibility and high traffic location in a high traffic heritage tourist town,16 office spaces with large kitchen and two 2-pc baths on the 2nd floor. Central air on the 1st floor and 2 ductless air conditioners on 2nd floor, the building is presently leased by BrokerLink Insurance at $3,700 per month. Perth has one of the largest trade areas in all of Ontario with people from an hour away using Perth to buy goods and services with Kingston being the next major centre west of Perth. 10 parking spaces at the rear of the building, a forced air oil furnace heats the building with baseboard heaters on the 2nd floor, 6 ft high basement for possible storage area. The 3rd floor was formerly an apartment and could possibly be turned into one again. Great location: 2 blocks to the Tay Canal, 2 blocks to Stewart Park, 1 block to the Best Western Hotel, 5 blocks to the oldest golf course in Canada-the Links O Tay Golf Course. (id:64974)
Quick Facts
- Property Type: Offices
- Bedrooms: None
- Bathrooms: 2
- Living Area: 3,509 sq ft (326.0 m²)
- Parking: 10.0 spaces
- Frontage: 41 ft (12.5 m)
Costs
- Annual Taxes: $11,891.48
Listing Provided by: RE/MAX HALLMARK REALTY GROUP
Board: Ottawa Real Estate Board
Data provided via CREA DDF®.
Detailed Features
Interior & Systems
- Heating: Forced air, Oil
- Cooling: Fully air conditioned
Exterior & Construction
- Water: Municipal water
Lot & Land
- Frontage: 41 ft (12.5 m)
- Zoning: C1 COMMERCIAL
Community & Neighbourhood
- Neighbourhood: 907 - Perth
Listing Information
Listing History
MLS listing activity for 56-58 FOSTER STREET, Perth, Ontario, K7H1S1 — dates reflect when changes were recorded in the DDF
🚗 Travel times
Neighborhood Walkability
Mortgage & Cost Calculators
Similar Homes ?Similar Homes — Search CriteriaSearch Radius5 kmPrice Range±5%Match Home TypeYesMatch BedroomsYes

196 KING STREET, St. Catharines (Downtown)
Offices$699,900
$11,054/yr taxListing Courtesy of RE/MAX NIAGARA REALTY LTD, BROKERAGE

196 KING Street, St. Catharines
Office$699,900
$11,054/yr taxListing Courtesy of RE/MAX Escarpment Realty Inc.

431 BANK STREET, Ottawa
Offices$699,000
$9,817/yr taxListing Courtesy of RE/MAX HALLMARK REALTY GROUP

604 - 3950 14TH AVENUE, Markham (Milliken Mills West)
Offices$699,000
$4,869/yr taxListing Courtesy of REMAX YOUR COMMUNITY REALTY

301 - 600 DIXON ROAD, Toronto (Willowridge-Martingrove-Richview)
Offices$690,000
Listing Courtesy of ROYAL LEPAGE REAL ESTATE SERVICES SUCCESS TEAM

667 St Clair Street, Greater Sudbury
Office$715,000
Listing Courtesy of ROYAL LEPAGE NORTH HERITAGE REALTY, BROKERAGE

407 - 3950 14TH AVENUE, Markham (Milliken Mills West)
Offices$720,000
$4,496/yr taxListing Courtesy of RE/MAX EXCEL REALTY LTD.

301 - 996 MARTIN GROVE ROAD, Toronto (West Humber-Clairville)
Offices$729,900
$5,689/yr taxListing Courtesy of ROYAL LEPAGE REAL ESTATE SERVICES SUCCESS TEAM
Similar Properties ?Active Comparables — Search CriteriaSearch Radius2 kmPrice Range±5%Match Home TypeYesMatch BedroomsYes
No active comparables found in this area.
No rental comparables found in this area.
Sold Comparables
Access to sold property data requires a registered and verified account with TRREB DDF integration.
Coming SoonRented Comparables
Access to rented property data requires a registered and verified account with TRREB DDF integration.
Coming SoonBook a Viewing
56-58 FOSTER STREET, Perth, Ontario, K7H1S1
