5505 OSGOODE MAIN STREET, Ottawa, Ontario, K0A2W0
MLS: X12812576 | Duplex
$545,000







































Property Description
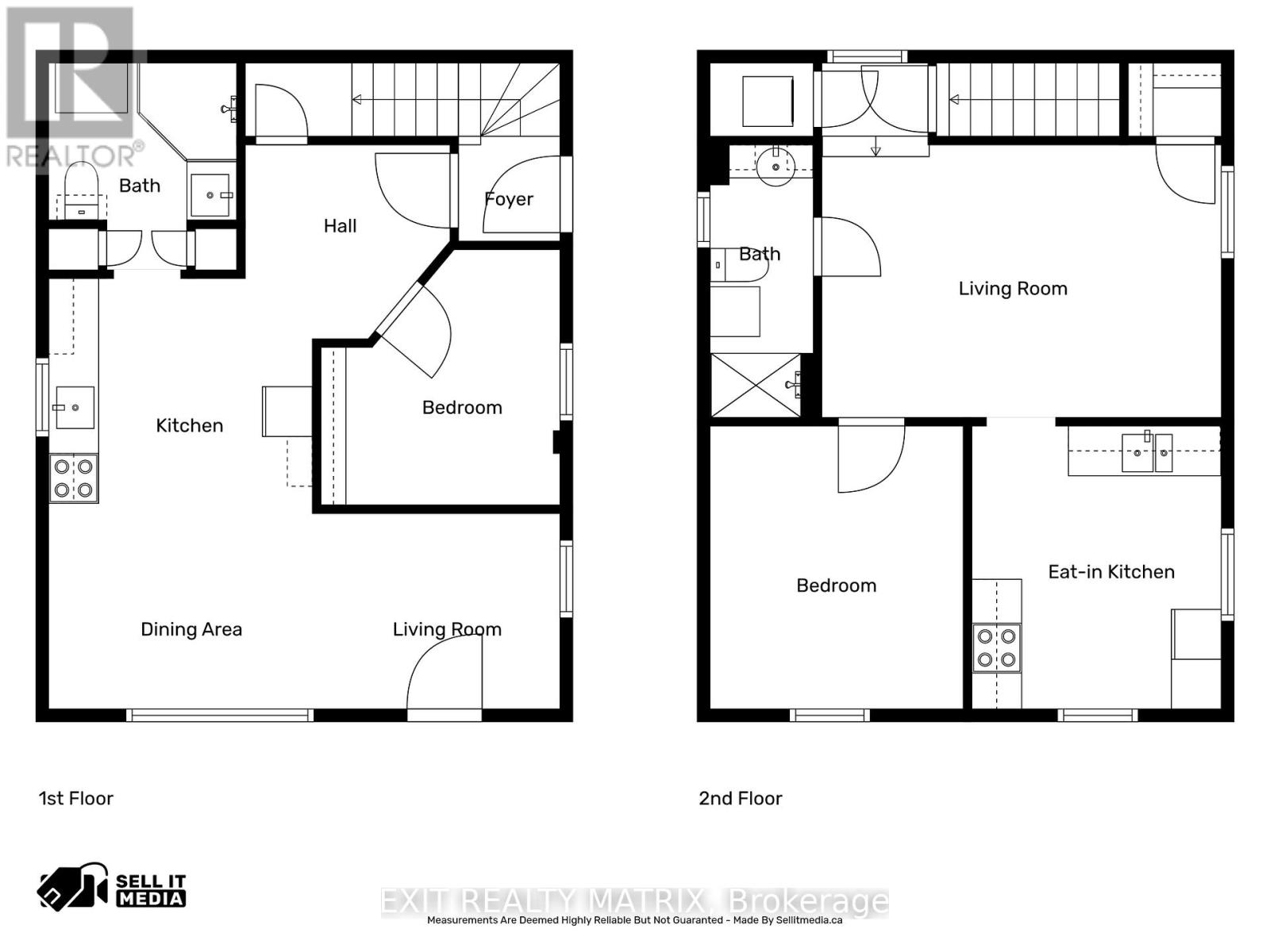
Own a true piece of Osgoode history with this charming century duplex, filled with character, warmth, and timeless appeal. Ideally located near the local library, schools, everyday amenities, and within walking distance to a local coffee shop and scenic walking trails, this unique property offers the best of small-town living. Enjoy being approximately 1 km from the river with a convenient boat launch - perfect for outdoor enthusiasts. Blending historic charm with modern-day convenience, this property is ideal for multi-generational living, rental income, or owner-occupancy with added revenue potential. Zoned Village Mixed-Use, it offers a wide range of possibilities, adding incredible flexibility and future upside. Dwelling 1 is currently rented at $1,500/month with an excellent tenant, with a lease secured until December 31, 2026, providing immediate and stable income. This unit features an inviting foyer, abundant natural light, an open-concept kitchen, dining, and cozy living space, along with a comfortable bedroom and well-appointed 3-piece bathroom. Dwelling 2 is bright and welcoming, offering a functional kitchen with an eating area, comfortable living room, spacious bedroom, and 3-piece bathroom - ideal for tenants or extended family. Step outside to a peaceful backyard retreat where you can relax and unwind. A rare opportunity to own a historic gem in the heart of the community, surrounded by lifestyle, convenience, and exceptional potential. (id:64974)
Quick Facts
- Property Type: Duplex
- Bedrooms: 2 (2 above)
- Bathrooms: 2
- Attached: Yes
- Parking: 4 spaces (No Garage)
- Frontage: 37 ft (11.3 m)
Costs
- Annual Taxes: $2,471.00 (2025)
Listing Provided by: EXIT REALTY MATRIX
Board: Ottawa Real Estate Board
Data provided via CREA DDF®.
Detailed Features
Interior & Systems
- Heating: Forced air, Natural gas
- Cooling: Central air conditioning
- Basement: Unfinished, Full
- Appliances: Washer, Refrigerator, Stove, Dryer
Exterior & Construction
- Exterior: Brick
- Foundation: Stone, Poured Concrete
- Sewer: Septic System
- Water: Sand point
Lot & Land
- Frontage: 37 ft (11.3 m)
Community & Neighbourhood
- Community: School Bus
- Neighbourhood: 1603 - Osgoode
Room Details (10 rooms)
Listing Information
Listing History
Buy/Sell/Terminated/Expired listing history for 5505 OSGOODE MAIN STREET, Ottawa, Ontario, K0A2W0
Location & Neighborhood
🚗 Travel times
Neighborhood Walkability
Mortgage & Cost Calculators
Similar Homes
Similar Properties
No rental comparables found in this area.
Sold Comparables
Access to sold property data requires a registered and verified account with TRREB DDF integration.
Coming SoonRented Comparables
Access to rented property data requires a registered and verified account with TRREB DDF integration.
Coming Soon
























