55 NORFOLK Street, Waterford, Ontario, N0E1Y0
MLS: 40817553 | House (Freehold)
$572,300









Property Description
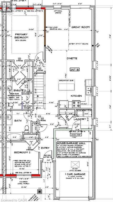
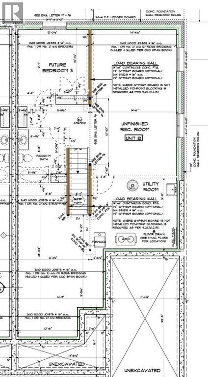
Welcome to 55 Norfolk Street in Waterford. This nearly completed 1,266 sq. ft. semi-detached bungalow offers an affordable opportunity to secure a quality new home with flexible timing. Ideal for buyers starting out or downsizing, this thoughtfully designed bungalow provides comfortable one-floor living with your own yard — and no condo fees. Designed with everyday living in mind, this home features a covered front porch and back deck, along with excellent sound separation thanks to a poured concrete wall between units — a standout feature for privacy and long-term comfort. The open-concept interior includes a spacious great room with patio doors, a dining area, and a custom kitchen finished with quartz countertops, custom cabinetry, a centre island with seating, pot lighting, and modern fixtures. The primary bedroom offers a walk-through closet and a private 3-piece ensuite with tiled shower. A second bedroom provides flexibility as a guest room or den, complemented by a full 4-piece main bath. Main-floor laundry and a mudroom are conveniently located off the garage entry. The full unfinished basement includes large windows and a bathroom rough-in, offering excellent future potential. Additional features include a tankless water heater (owned), central air, forced-air gas furnace, utility sink, sump pump, and fiberglass shingles. Nearly complete — secure now and move in soon. Taxes not yet assessed. Pictures of a similar model for illustration purposes. Price reflect newly announced HST credits. (id:64974)
Quick Facts
- Property Type: House (Freehold)
- Style: Bungalow
- Bedrooms: 2 (2 above)
- Bathrooms: 2
- Living Area: 1,266 sq ft (117.6 m²)
- Above Grade: 1,266 sq ft (117.6 m²)
- Ownership: Freehold
- Attached: Yes
- Fireplaces: 1
- Parking: 2.0 spaces (Attached Garage)
- Frontage: 32 ft (9.8 m)
Listing Provided by: COLDWELL BANKER BIG CREEK REALTY LTD. BROKERAGE
Board: Cornerstone Association of REALTORS®
Data provided via CREA DDF®.
Detailed Features
Interior & Systems
- Heating: Forced air, Natural gas
- Cooling: Central air conditioning
- Basement: Unfinished, Full
- Appliances: Water softener, Central Vacuum - Roughed In, Garage door opener
- Utilities: Natural Gas, Electricity
- Security: Smoke Detectors
- Fireplace Features: Insert
Exterior & Construction
- Style: Bungalow
- Exterior: Stone, Vinyl siding, Brick Veneer
- Foundation: Poured Concrete
- Sewer: Municipal sewage system
- Water: Municipal water
Lot & Land
- Frontage: 32 ft (9.8 m)
- Features: Crushed stone driveway, Sump Pump, Automatic Garage Door Opener
- Zoning: R2-H
Community & Neighbourhood
- Community: School Bus, Community Centre
- Subdivision: Waterford
Room Details (8 rooms)
Listing Information
Listing History
MLS listing activity for 55 NORFOLK Street, Waterford, Ontario, N0E1Y0 — dates reflect when changes were recorded in the DDF
🚗 Travel times
Neighborhood Walkability
Mortgage & Cost Calculators
Nearby Homes ?Nearby Homes — Search CriteriaSearch Radius1 kmPrice Range±5%Match BedroomsYesMatch BathroomsYes

51 NORFOLK Street, Waterford
House$574,600
Listing Courtesy of COLDWELL BANKER BIG CREEK REALTY LTD. BROKERAGE

65 NORFOLK Street, Waterford
House$569,000
$2,612/yr taxListing Courtesy of RE/MAX Erie Shores Realty Inc. Brokerage

69 NORFOLK Street, Waterford
House$659,600
Listing Courtesy of COLDWELL BANKER BIG CREEK REALTY LTD. BROKERAGE

271 COLLEGE STREET W, Norfolk (Waterford)
House$649,900
$4,108/yr taxListing Courtesy of SHAW REALTY GROUP INC.

144 COLLEGE Street W, Waterford
House$419,000
$2,392/yr taxListing Courtesy of Progressive Realty Group Inc.

271 COLLEGE Street W, Waterford
House$649,900
$4,108/yr taxListing Courtesy of SHAW REALTY GROUP INC.

26 GIBBONS STREET, Norfolk (Waterford)
House$789,900
$5,371/yr taxListing Courtesy of REVEL REALTY INC.

26 GIBBONS Street, Waterford
House$789,900
$5,371/yr taxListing Courtesy of Revel Realty Inc

135 GIBBONS Street, Waterford
House$849,900
$1/yr taxListing Courtesy of RE/MAX Erie Shores Realty Inc. Brokerage

22 HARE Street, Waterford
House$749,900
$4,784/yr taxListing Courtesy of Van Londersele Real Estate Brokerage Ltd.

99 AMBER Street, Waterford
House$699,900
Listing Courtesy of RE/MAX Erie Shores Realty Inc. Brokerage

32 NICHOL Street W, Waterford
House$549,900
$4,060/yr taxListing Courtesy of RE/MAX Erie Shores Realty Inc. Brokerage

111 AMBER Street, Waterford
House$649,900
$960/yr taxListing Courtesy of RE/MAX Erie Shores Realty Inc. Brokerage

115 AMBER Street, Waterford
House$724,900
$960/yr taxListing Courtesy of RE/MAX Erie Shores Realty Inc. Brokerage

52 TEMPERANCE STREET W, Norfolk (Waterford)
House$479,000
$2,868/yr taxListing Courtesy of RE/MAX TWIN CITY REALTY INC.
Similar Homes ?Similar Homes — Search CriteriaSearch Radius5 kmPrice Range±5%Match Home TypeYesMatch BedroomsYes

51 NORFOLK Street, Waterford
House$574,600
Listing Courtesy of COLDWELL BANKER BIG CREEK REALTY LTD. BROKERAGE

65 NORFOLK Street, Waterford
House$569,000
$2,612/yr taxListing Courtesy of RE/MAX Erie Shores Realty Inc. Brokerage

32 NICHOL Street W, Waterford
House$549,900
$4,060/yr taxListing Courtesy of RE/MAX Erie Shores Realty Inc. Brokerage

66 - 2235 BLACKWATER ROAD, London North (North B)
Condo - Row / Townhouse$572,000
$4,442/yr taxListing Courtesy of EXP REALTY

509 - 470 GORDON KRANTZ AVENUE, Milton (Walker)
Condo - Apartment$572,000
$3,268/yr taxListing Courtesy of HOMELIFE/MIRACLE REALTY LTD

716 KEAST PLACE, Innisfil
Row / Townhouse$571,939
Listing Courtesy of RE/MAX HALLMARK REALTY LTD.

1513 DEMETER STREET, Ottawa
Row / Townhouse$572,750
$3,666/yr taxListing Courtesy of EXP REALTY

105 CREIGHTON(LOT 63) DRIVE, Loyalist (Lennox and Addington - South)
House$572,900
Listing Courtesy of CENTURY 21 HERITAGE GROUP LTD., BROKERAGE

117 STYLES DRIVE, St. Thomas
House$572,946
Listing Courtesy of ROYAL LEPAGE TRILAND REALTY

511 - 741 SHEPPARD AVENUE W, Toronto (Clanton Park)
Condo - Apartment$573,000
$2,624/yr taxListing Courtesy of NU STREAM REALTY (TORONTO) INC.

105 - 12 CLARA DRIVE, Prince Edward County (Picton Ward)
Condo - Apartment$573,248
Listing Courtesy of RE/MAX QUINTE LTD.

23L HARRISON CRESCENT, Loyalist (Lennox and Addington - South)
House$573,600
Listing Courtesy of RE/MAX RISE EXECUTIVES, BROKERAGE

23R HARRISON CRESCENT, Loyalist (Lennox and Addington - South)
House$573,600
Listing Courtesy of RE/MAX RISE EXECUTIVES, BROKERAGE

1220 FLYCATCHER PRIVATE, Ottawa
Row / Townhouse$573,694
Listing Courtesy of ROYAL LEPAGE PERFORMANCE REALTY

7 JAMES STREET, Kawartha Lakes (Lindsay)
House$573,888
$3,284/yr taxListing Courtesy of FENELON FALLS REAL ESTATE LTD.
Similar Properties ?Active Comparables — Search CriteriaSearch Radius2 kmPrice Range±5%Match Home TypeYesMatch BedroomsYes

51 NORFOLK Street, Waterford
House$574,600
Listing Courtesy of COLDWELL BANKER BIG CREEK REALTY LTD. BROKERAGE

65 NORFOLK Street, Waterford
House$569,000
$2,612/yr taxListing Courtesy of RE/MAX Erie Shores Realty Inc. Brokerage

32 NICHOL Street W, Waterford
House$549,900
$4,060/yr taxListing Courtesy of RE/MAX Erie Shores Realty Inc. Brokerage
No rental comparables found in this area.
Sold Comparables
Access to sold property data requires a registered and verified account with TRREB DDF integration.
Coming SoonRented Comparables
Access to rented property data requires a registered and verified account with TRREB DDF integration.
Coming SoonBook a Viewing
55 NORFOLK Street, Waterford, Ontario, N0E1Y0
