540 PLAINS Road E Unit# 100, Burlington, Ontario, L7T2E3
MLS: 40817220 | Retail
$3,250,000











































Property Description
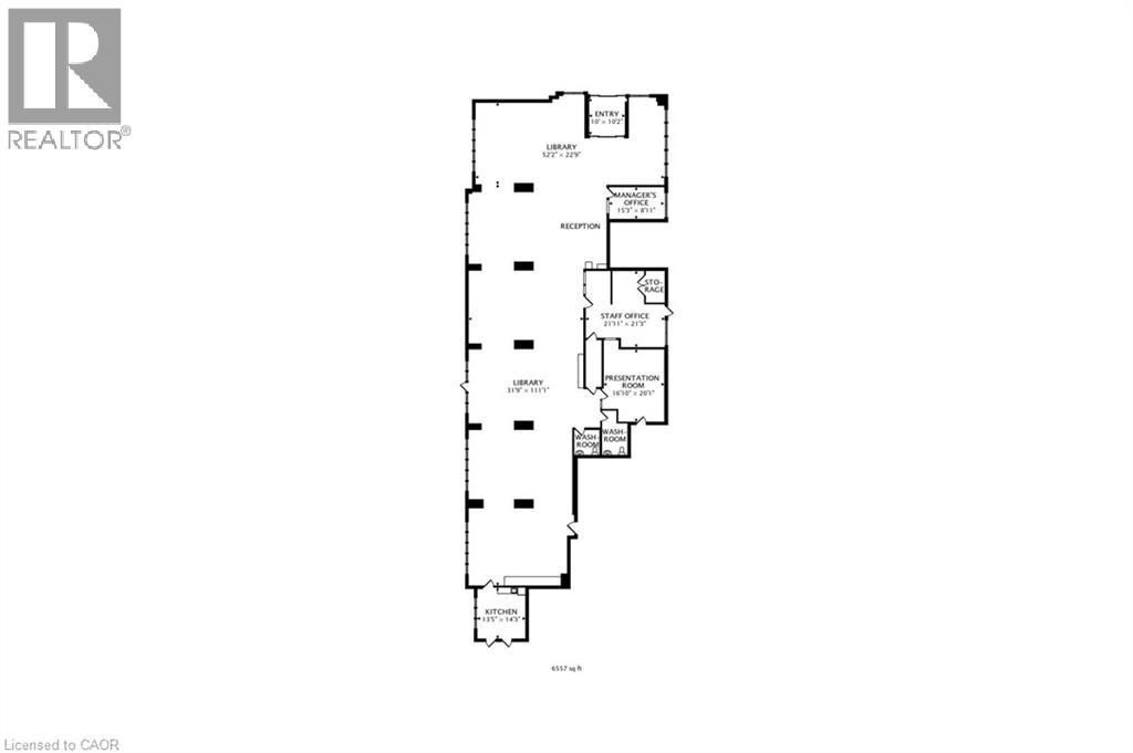
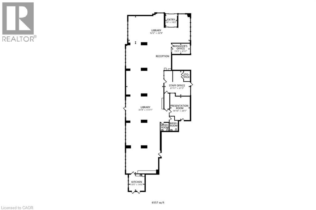
7000 +/- sf of MXG zoned office/retail space at the base of a modern 6 storey condo building in the heart of Aldershot. Solid lease in place with a government covenant. Keep this AAA Tenant in place for the long term or convert the space to suit your business needs when the lease comes due. Solid Cap rate with next to no landlord involvement, excellent quality finishes, mechanically solid - Long-term Net lease in place coming due Oct 31, 2031, with the opportunity to extend it another 20 years. Top quality buildouts including administrations offices, lunchroom, multiple washrooms, accessible auto-doors and openers, terrific natural lighting and excellent exposure make this a quality asset to add to your portfolio. MXG zoning permits a wide range of uses allowing possible future uses to include medical office, professional office, retail, daycare, dental, and more. (id:64974)
Quick Facts
- Property Type: Retail
- Bedrooms: None
- Bathrooms: None
- Living Area: 7,000 sq ft (650.3 m²)
- Year Built: 2012
- Ownership: Condo/Strata
- Frontage: 169 ft (51.5 m)
Costs
- Annual Taxes: $1.00
- Condo/HOA Fee: $1.00 / monthly
Listing Provided by: RE/MAX Escarpment Realty Inc.
Board: Cornerstone Association of REALTORS®
Data provided via CREA DDF®.
Detailed Features
Interior & Systems
- Basement: None
Exterior & Construction
- Sewer: Municipal sewage system
- Water: Municipal water
Lot & Land
- Frontage: 169 ft (51.5 m)
- Zoning: MXG
Community & Neighbourhood
- Subdivision: 303 - Aldershot South
Listing Information
Listing History
MLS listing activity for 540 PLAINS Road E Unit# 100, Burlington, Ontario, L7T2E3 — dates reflect when changes were recorded in the DDF
🚗 Travel times
Neighborhood Walkability
Mortgage & Cost Calculators
Nearby Homes ?Nearby Homes — Search CriteriaSearch Radius1 kmPrice Range±5%Match BedroomsYesMatch BathroomsYes

100 - 540 PLAINS ROAD E, Burlington (LaSalle)
Retail$3,250,000
Listing Courtesy of RE/MAX ESCARPMENT REALTY INC.

414 PLAINS ROAD E, Burlington (LaSalle)
Retail$3,250,000
$16,915/yr taxListing Courtesy of CENTRAL HOME REALTY INC.

418 PLAINS ROAD E, Burlington (LaSalle)
Retail$4,400/mo
Listing Courtesy of RE/MAX MILLENNIUM REAL ESTATE
Similar Homes ?Similar Homes — Search CriteriaSearch Radius5 kmPrice Range±5%Match Home TypeYesMatch BedroomsYes

414 PLAINS ROAD E, Burlington (LaSalle)
Retail$3,250,000
$16,915/yr taxListing Courtesy of CENTRAL HOME REALTY INC.

100 - 540 PLAINS ROAD E, Burlington (LaSalle)
Retail$3,250,000
Listing Courtesy of RE/MAX ESCARPMENT REALTY INC.

102 - 277 DAVENPORT ROAD, Toronto (Annex)
Retail$3,250,000
$52,800/yr taxListing Courtesy of INTERCITY REALTY INC.

796-800 EGLINTON AVENUE E, Toronto (Leaside)
Residential Commercial Mix$3,245,000
$36,400/yr taxListing Courtesy of INTERNATIONAL REALTY FIRM, INC.

796-800 EGLINTON AVENUE E, Toronto (Leaside)
Retail$3,245,000
$36,400/yr taxListing Courtesy of INTERNATIONAL REALTY FIRM, INC.

1594 LAKESHORE DRIVE N, Shuniah
Retail$3,200,000
$20,993/yr taxListing Courtesy of RE/MAX ADVANTAGE REALTY LTD.

1662 & 1664 DUFFERIN STREET, Toronto (Corso Italia-Davenport)
Retail$3,300,000
$37,039/yr taxListing Courtesy of ROYAL LEPAGE TERREQUITY GOLD REALTY

42 KING STREET N, Waterloo
Retail$3,199,000
$29,913/yr taxListing Courtesy of CENTURY 21 UNITED REALTY INC.

3217 YONGE STREET, Toronto (Lawrence Park North)
Retail$3,195,000
$39,900/yr taxListing Courtesy of PROPERTY.CA INC.

2963 DUNDAS STREET W, Toronto (Junction Area)
Retail$3,175,000
$8,672/yr taxListing Courtesy of BOSLEY REAL ESTATE LTD.

512 QUEEN STREET W, Toronto (Kensington-Chinatown)
Retail$3,150,000
$42,284/yr taxListing Courtesy of EASY LIST REALTY LTD.

47 ONTARIO STREET N, Lambton Shores (Grand Bend)
Retail$3,100,000
$16,742/yr taxListing Courtesy of SUTTON GROUP - SELECT REALTY
Similar Properties ?Active Comparables — Search CriteriaSearch Radius2 kmPrice Range±5%Match Home TypeYesMatch BedroomsYes

414 PLAINS ROAD E, Burlington (LaSalle)
Retail$3,250,000
$16,915/yr taxListing Courtesy of CENTRAL HOME REALTY INC.

100 - 540 PLAINS ROAD E, Burlington (LaSalle)
Retail$3,250,000
Listing Courtesy of RE/MAX ESCARPMENT REALTY INC.
Sold Comparables
Access to sold property data requires a registered and verified account with TRREB DDF integration.
Coming SoonRented Comparables
Access to rented property data requires a registered and verified account with TRREB DDF integration.
Coming SoonBook a Viewing
540 PLAINS Road E Unit# 100, Burlington, Ontario, L7T2E3
