5327 EIGHTH LINE, Milton (TR Rural Trafalgar), Ontario, L0P1E0
MLS: W12977800 | House
$9,750,000

















Property Description
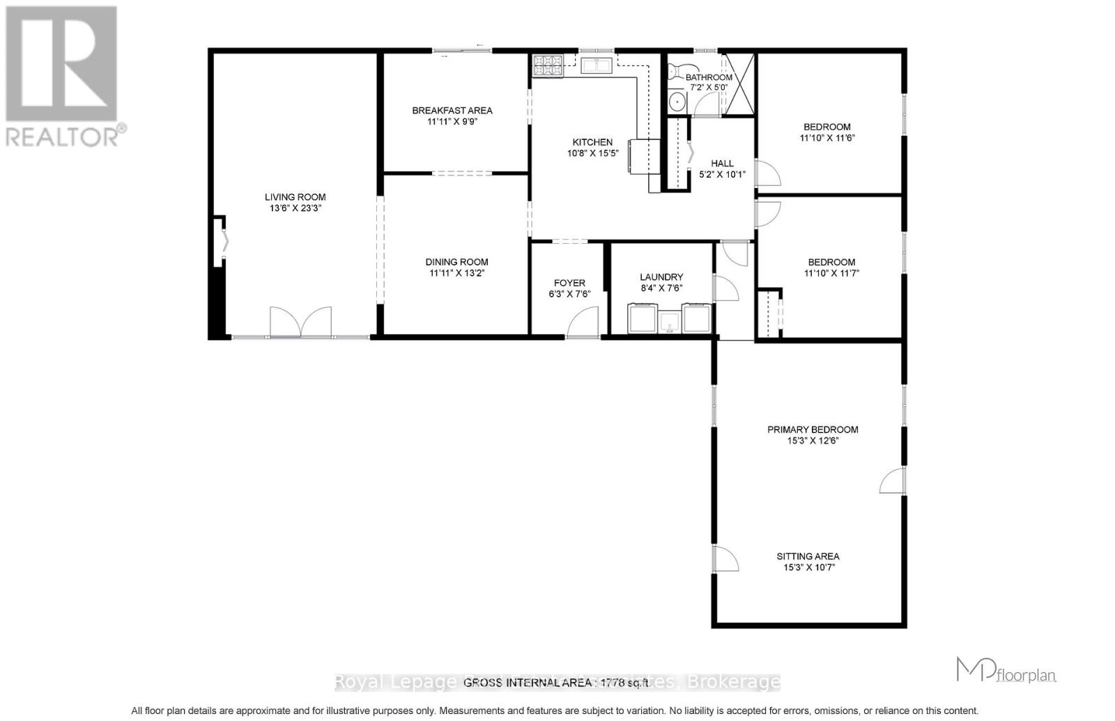
Prime 15 Acre Parcel Ideally Located Between Milton And Mississauga Offering Exceptional Long-Term Potential. Currently Zoned A1, This Property Falls Within The Town Of Milton's Urban Area And Is Identified As Future Employment Area In The Town's Planning Documents (Schedule 2: Growth Phases And Planning Policy Areas). A Rare Opportunity For Investors, End Users, Or Land Bank Buyers Looking To Secure A Strategic Parcel In A Rapidly Expanding Corridor.The Property Features A Well-Maintained 1 Storey Bungalow Built On A Slab Foundation, Offering Over 1,900 Sq Ft Of Living Space With 3 Bedrooms And A Functional Layout. A Greenhouse Is Also Located On The Property, Providing Added Utility For Agricultural Use Or Hobby Farming.The Land Is Generally Flat And Open, Providing Flexible Outdoor Space For Uses Permitted Under Current Zoning While Offering Long-Term Potential.Conveniently Located With Easy Access To Major Highways, Surrounding Employment Lands, And Ongoing Development In The Area. (id:64974)
Quick Facts
- Property Type: House
- Bedrooms: 3 (3 above)
- Bathrooms: 1
- Parking: 80.0 spaces (No Garage)
- Frontage: 297 ft (90.6 m)
Costs
- Annual Taxes: $2,046.00 (2025)
Listing Provided by: Royal Lepage Real Estate Associates
Board: Toronto Regional Real Estate Board
Data provided via CREA DDF®.
Detailed Features
Interior & Systems
- Heating: Baseboard heaters, Electric
- Cooling: Wall unit
- Basement: None
- Appliances: Window Coverings
- Utilities: Electricity
Exterior & Construction
- Exterior: Wood
- Foundation: Concrete, Slab
- Sewer: Septic System
Lot & Land
- Frontage: 297 ft (90.6 m)
- Features: Country residential
- Zoning: A1
Community & Neighbourhood
- Neighbourhood: 1044 - TR Rural Trafalgar
Listing Information
Listing History
MLS listing activity for 5327 EIGHTH LINE, Milton (TR Rural Trafalgar), Ontario, L0P1E0 — dates reflect when changes were recorded in the DDF
🚗 Travel times
Neighborhood Walkability
Mortgage & Cost Calculators
Similar Homes ?Similar Homes — Search CriteriaSearch Radius5 kmPrice Range±5%Match Home TypeYesMatch BedroomsYes

31 THORNBANK ROAD, Vaughan (Uplands)
House$9,790,000
$33,572/yr taxListing Courtesy of RE/MAX REALTRON BARRY COHEN HOMES INC.

1114 GOSHEN ROAD E, Innisfil (Alcona)
House$9,800,000
$6,028/yr taxListing Courtesy of RE/MAX HALLMARK CHAY REALTY

149 HIGHLAND CRESCENT, Toronto (Bridle Path-Sunnybrook-York Mills)
House$9,800,000
Listing Courtesy of THE AGENCY

4 SAINT LUKES COURT, Brampton (Toronto Gore Rural Estate)
House$9,800,000
$50,799/yr taxListing Courtesy of SAM MCDADI REAL ESTATE INC.

192 LORD SEATON ROAD, Toronto (St. Andrew-Windfields)
House$9,888,000
$31,905/yr taxListing Courtesy of RE/MAX REALTRON BARRY COHEN HOMES INC.

12068 MCCOWAN ROAD, Whitchurch-Stouffville
House$9,888,000
$6,576/yr taxListing Courtesy of ROYAL LEPAGE SIGNATURE REALTY

300 WEST BROWNS ROAD, Huntsville (Brunel)
House$9,900,000
$31,065/yr taxListing Courtesy of Attainable Realty Inc.

287 RUSSELL HILL ROAD, Toronto (Casa Loma)
House$9,900,000
$27,760/yr taxListing Courtesy of RIGHT AT HOME REALTY

11 ORMSBY CRESCENT, Toronto (Forest Hill South)
House$9,900,000
$38,775/yr taxListing Courtesy of RE/MAX REALTRON BARRY COHEN HOMES INC.

91 FAIRFIELD DRIVE, King
House$9,980,000
$30,750/yr taxListing Courtesy of RE/MAX REALTRON BARRY COHEN HOMES INC.

76 ARJAY CRESCENT, Toronto (Bridle Path-Sunnybrook-York Mills)
House$9,980,000
$58,267/yr taxListing Courtesy of RE/MAX REALTRON BARRY COHEN HOMES INC.

55 THORNBANK ROAD, Vaughan (Uplands)
House$9,980,000
$33,413/yr taxListing Courtesy of RE/MAX REALTRON BARRY COHEN HOMES INC.

33 STRATHEDEN ROAD, Toronto (Bridle Path-Sunnybrook-York Mills)
House$9,980,000
$37,591/yr taxListing Courtesy of RE/MAX REALTRON BARRY COHEN HOMES INC.

2701 EMBLETON ROAD, Brampton (Bram West)
House$9,988,000
$13,387/yr taxListing Courtesy of HOUSESIGMA INC.

1016 KEELER ROAD, Muskoka Lakes (Wood (Muskoka Lakes))
House$9,988,888
$26,822/yr taxListing Courtesy of Century 21 Miller Real Estate Ltd.
Similar Properties ?Active Comparables — Search CriteriaSearch Radius2 kmPrice Range±5%Match Home TypeYesMatch BedroomsYes
No active comparables found in this area.
No rental comparables found in this area.
Sold Comparables
Access to sold property data requires a registered and verified account with TRREB DDF integration.
Coming SoonRented Comparables
Access to rented property data requires a registered and verified account with TRREB DDF integration.
Coming SoonBook a Viewing
5327 EIGHTH LINE, Milton (TR Rural Trafalgar), Ontario, L0P1E0
