532 ROSECLIFFE TERRACE, London South (South C), Ontario, N6K4H6
MLS: X12850008 | House (Freehold)
$949,900



















































Property Description
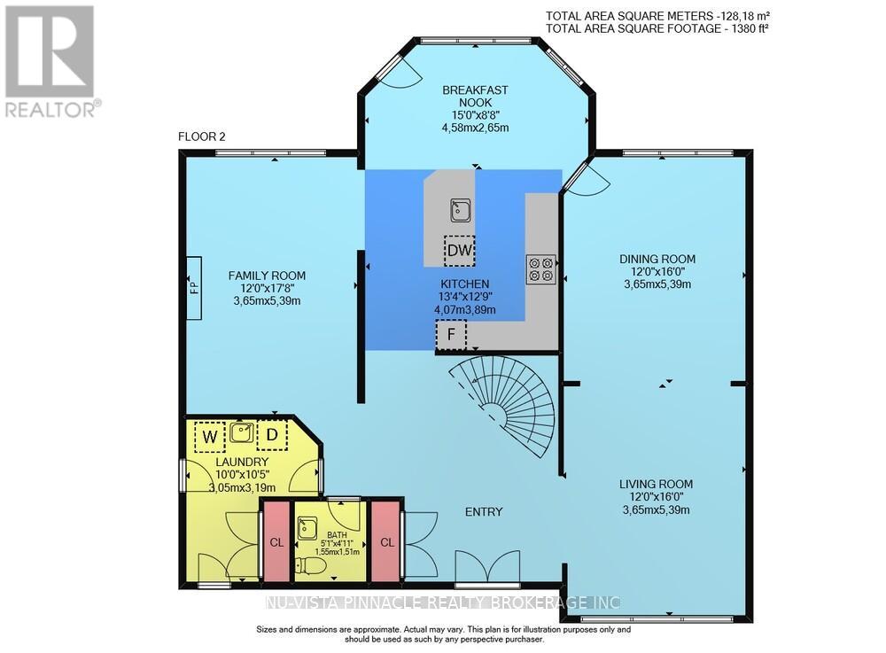
EXTREMELY WELL PRICED - Exceptional Value in Rosecliffe Estates! Welcome to this stunning executive residence in prestigious Rosecliffe Estates, where timeless elegance meets modern comfort. Immaculately maintained and thoughtfully updated, this impressive 4+2 bedroom home offers the perfect blend of sophistication, space, & functionality. Step into the grand foyer, highlighted by a dramatic curved oak staircase that immediately sets the tone for the refined interior. The main floor features a classic, well-designed layout with spacious formal living and dining rooms, a warm and inviting family room, convenient main-floor laundry & a beautifully appointed kitchen with dinette.The recently updated kitchen is truly a chef's dream, featuring a new quartz island countertop, a stylish sink and faucet, abundant cabinetry, expansive counter space & an ideal working triangle for effortless meal preparation and entertaining.Upstairs, retreat to the luxurious primary suite, a private sanctuary boasting generous proportions, a spa-inspired ensuite & an oversized walk-in closet. Three additional bedrooms are all impressively sized, offering comfort and flexibility for family or guests.The freshly updated lower level expands your living space with new paint, a renovated 3-piece bathroom, a large recreation room, two additional bedrooms & a dedicated office, perfect for extended family, guests, or working from home.Extensive upgrades provide peace of mind & efficiency, including: Energy Star-rated windows throughout the first & second floors, recently replaced front doors and foyer window hardwood flooring in the family, dining, & living rooms, updated ceramic tile in the foyer and kitchen, upgraded trim and interior doors, energy-efficient furnace and central air conditioning. This exceptional home offers all the quality finishes and thoughtful details you would expect in a property of this calibre & at an incredible price point. See documents for list of upgrades! (id:64974)
Quick Facts
- Property Type: House (Freehold)
- Bedrooms: 6 (4 above, 2 below)
- Bathrooms: 4 (1 half)
- Ownership: Freehold
- Attached: No
- Fireplaces: 1
- Parking: 4 spaces (Attached Garage, Garage)
- Frontage: 66 ft (20.1 m)
Costs
- Annual Taxes: $6,840.00 (2026)
Listing Provided by: NU-VISTA PINNACLE REALTY BROKERAGE INC
Board: London and St. Thomas Association of REALTORS®
Data provided via CREA DDF®.
Detailed Features
Interior & Systems
- Heating: Forced air, Natural gas
- Cooling: Central air conditioning
- Basement: Finished, Full
- Appliances: Washer, Refrigerator, Water meter, Dishwasher, Stove, Dryer, Microwave, Garage door opener remote(s), Water Heater
- Flooring: Hardwood, Carpeted, Ceramic
- Utilities: Sewer, Electricity, Cable
- Security: Smoke Detectors
Exterior & Construction
- Exterior: Brick, Aluminum siding
- Foundation: Concrete
- Fencing: Fenced yard, Fully Fenced
- Sewer: Sanitary sewer
- Water: Municipal water
Lot & Land
- Frontage: 66 ft (20.1 m)
- Features: Irregular lot size, Rolling, Sump Pump
- View: City view
- Zoning: R1-9
Community & Neighbourhood
- Building: Fireplace(s)
- Neighbourhood: South C
Room Details (16 rooms)
Listing Information
Listing History
Buy/Sell/Terminated/Expired listing history for 532 ROSECLIFFE TERRACE, London South (South C), Ontario, N6K4H6
Location & Neighborhood
🚗 Travel times
Neighborhood Walkability
Mortgage & Cost Calculators
Nearby Homes (Within 2km)
Similar Homes
Similar Properties
No rental comparables found in this area.
Sold Comparables
Access to sold property data requires a registered and verified account with TRREB DDF integration.
Coming SoonRented Comparables
Access to rented property data requires a registered and verified account with TRREB DDF integration.
Coming Soon
























