532 - 150 SUDBURY STREET, Toronto (Little Portugal), Ontario, M6J3S8
MLS: C12900022 | Apartment (Condo)
$719,000




















Property Description
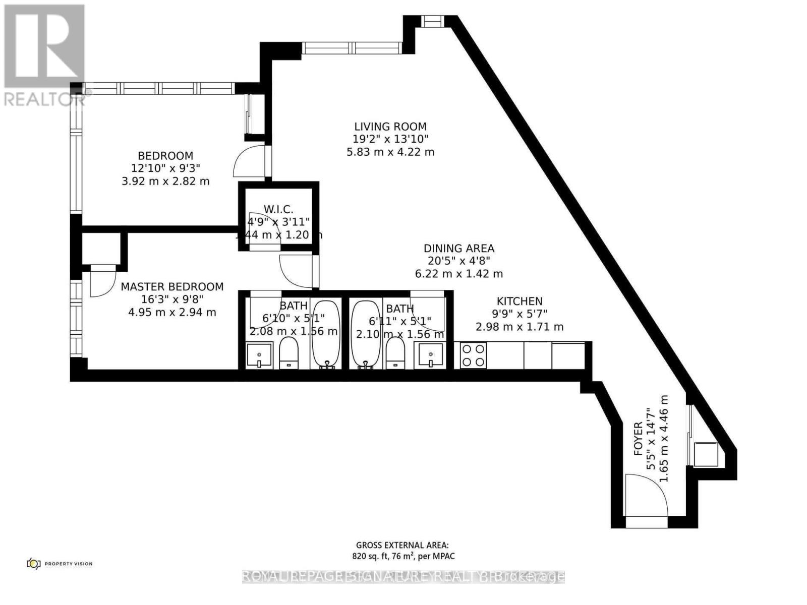
Welcome to 150 Sudbury St! The perfect soft loft for those who enjoy condo amenities and aloft-style layout. This corner unit features 820 square feet, upgraded engineered hardwood herringbone floors, bright floor to ceiling windows, custom controlled blinds, high ceilings,tons of natural light, and Southwest views for incredible sunsets. The open concept layout is great for those who like to be creative with their space. The building has great accessibility to public transit and a new GO station being built right outside the building that will give added convenience for your travels. The building is a quick walk to grocery stores, the Ossington strip, Queen West shops, restaurants, Trinity Bellwoods and more. (id:64974)
Quick Facts
- Property Type: Apartment (Condo)
- Bedrooms: 2 (2 above)
- Bathrooms: 2
- Ownership: Condo/Strata
- Attached: Yes
- Parking: 1.0 space (Garage, Underground)
Costs
- Annual Taxes: $2,971.10
- Condo/HOA Fee: $563.38 / monthly
- Corp: Westside Gallery Lofts
- Includes: Common Area Maintenance, Heat, Water, Insurance, Parking
Listing Provided by: ROYAL LEPAGE SIGNATURE REALTY
Board: Toronto Regional Real Estate Board
Data provided via CREA DDF®.
Detailed Features
Interior & Systems
- Heating: Forced air, Natural gas
- Cooling: Central air conditioning
- Basement: None
- Appliances: Washer, Refrigerator, Dishwasher, Stove, Oven, Dryer, Microwave, Window Coverings
- Flooring: Hardwood
Exterior & Construction
- Exterior: Concrete, Brick
Lot & Land
- Features: Elevator, Balcony, Carpet Free
- View: View
Community & Neighbourhood
- Community: Pets Allowed With Restrictions
- Building: Exercise Centre, Party Room
- Neighbourhood: Little Portugal
Room Details (5 rooms)
Listing Information
Listing History
MLS listing activity for 532 - 150 SUDBURY STREET, Toronto (Little Portugal), Ontario, M6J3S8 — dates reflect when changes were recorded in the DDF
🚗 Travel times
Neighborhood Walkability
Mortgage & Cost Calculators
Nearby Homes ?Nearby Homes — Search CriteriaSearch Radius1 kmPrice Range±5%Match BedroomsYesMatch BathroomsYes

2106 - 100 WESTERN BATTERY ROAD, Toronto (Niagara)
Condo - Apartment$749,000
$3,431/yr taxListing Courtesy of REAL ESTATE HOMEWARD

718 - 1005 KING STREET W, Toronto (Niagara)
Condo - Apartment$719,000
$3,408/yr taxListing Courtesy of ROYAL LEPAGE SIGNATURE REALTY

TH 111 - 59 EAST LIBERTY STREET, Toronto (Niagara)
Condo - Row / Townhouse$740,000
$3,476/yr taxListing Courtesy of ROYAL LEPAGE SIGNATURE REALTY

1913 - 150 SUDBURY STREET, Toronto (Palmerston-Little Italy)
Condo - Apartment$2,400/mo
Listing Courtesy of ROYAL LEPAGE SIGNATURE REALTY

425 - 150 SUDBURY STREET, Toronto (Little Portugal)
Condo - Apartment$2,500/mo
Listing Courtesy of EXP REALTY

406 - 150 SUDBURY STREET, Toronto (Little Portugal)
Condo - Apartment$2,400/mo
Listing Courtesy of BOSLEY REAL ESTATE LTD.

1806 - 150 SUDBURY STREET, Toronto (Little Portugal)
Condo - Apartment$2,300/mo
Listing Courtesy of PMT REALTY INC.

1014 - 150 SUDBURY STREET, Toronto (Little Portugal)
Condo - Apartment$2,700/mo
Listing Courtesy of PMT REALTY INC.

916 - 150 SUDBURY STREET, Toronto (Little Portugal)
Condo - Apartment$548,000
$2,398/yr taxListing Courtesy of SOTHEBY'S INTERNATIONAL REALTY CANADA

909 - 150 SUDBURY STREET, Toronto (Little Portugal)
Condo - Apartment$2,700/mo
Listing Courtesy of FOREST HILL REAL ESTATE INC.

1009E - 36 LISGAR STREET, Toronto (Little Portugal)
Condo - Apartment$2,080/mo
Listing Courtesy of HC REALTY GROUP INC.

1507 - 36 LISGAR STREET, Toronto (Little Portugal)
Condo - Apartment$2,500/mo
Listing Courtesy of AIMHOME REALTY INC.

828E - 36 LISGAR STREET, Toronto (Little Portugal)
Condo - Apartment$2,000/mo
Listing Courtesy of REMAX YOUR COMMUNITY REALTY

1202E - 36 LISGAR STREET, Toronto (Little Portugal)
Condo - Apartment$2,845/mo
Listing Courtesy of ROYAL LEPAGE SIGNATURE REALTY

PH01 - 36 LISGAR STREET, Toronto (Little Portugal)
Condo - Apartment$2,050/mo
Listing Courtesy of RIGHT AT HOME REALTY
Similar Homes ?Similar Homes — Search CriteriaSearch Radius5 kmPrice Range±5%Match Home TypeYesMatch BedroomsYes

718 - 1005 KING STREET W, Toronto (Niagara)
Condo - Apartment$719,000
$3,408/yr taxListing Courtesy of ROYAL LEPAGE SIGNATURE REALTY

408 - 88 CUMBERLAND STREET, Toronto (Annex)
Condo - Apartment$719,000
$4,102/yr taxListing Courtesy of RIGHT AT HOME REALTY

1713 - 103 THE QUEENSWAY AVENUE, Toronto (High Park-Swansea)
Condo - Apartment$719,000
$2,918/yr taxListing Courtesy of KELLER WILLIAMS PORTFOLIO REALTY

1205 - 125 BLUE JAYS WAY, Toronto (Waterfront Communities)
Condo - Apartment$720,000
$4,364/yr taxListing Courtesy of NEW TIMES REALTY INC.

703 - 560 KING STREET W, Toronto (Waterfront Communities)
Condo - Apartment$720,000
$3,951/yr taxListing Courtesy of REMAX YOUR COMMUNITY REALTY

1023 - 20 MINOWAN MIIKAN LANE, Toronto (Little Portugal)
Condo - Apartment$715,000
$2,669/yr taxListing Courtesy of SKYBOUND REALTY

705 - 2111 LAKE SHORE BOULEVARD W, Toronto (Mimico)
Condo - Apartment$715,000
$3,182/yr taxListing Courtesy of RE/MAX HALLMARK FIRST GROUP REALTY LTD.

2904 - 2240 LAKE SHORE BOULEVARD W, Toronto (Mimico)
Condo - Apartment$724,900
$3,083/yr taxListing Courtesy of CENTURY 21 KING'S QUAY REAL ESTATE INC.

201 - 15 MCMURRICH STREET, Toronto (Annex)
Condo - Apartment$724,900
$4,821/yr taxListing Courtesy of CENTURY 21 LEADING EDGE REALTY INC.

LPH3802 - 33 SHORE BREEZE DRIVE, Toronto (Mimico)
Condo - Apartment$725,000
$3,672/yr taxListing Courtesy of HOMELIFE/MIRACLE REALTY LTD

503 - 500 SHERBOURNE STREET, Toronto (North St. James Town)
Condo - Apartment$725,000
$3,645/yr taxListing Courtesy of REAL ESTATE HOMEWARD

712 - 438 KING STREET W, Toronto (Waterfront Communities)
Condo - Apartment$725,000
$3,710/yr taxListing Courtesy of ROYAL LEPAGE SIGNATURE REALTY

1404 - 438 KING STREET W, Toronto (Waterfront Communities)
Condo$725,000
$3,808/yr taxListing Courtesy of CENTURY 21 LEADING EDGE REALTY INC.

1206 - 100 HAYDEN STREET, Toronto (Church-Yonge Corridor)
Condo - Apartment$725,000
$3,507/yr taxListing Courtesy of SAGE REAL ESTATE LIMITED

1605 - 85 BLOOR STREET E, Toronto (Church-Yonge Corridor)
Condo - Apartment$728,000
$4,102/yr taxListing Courtesy of TIMES REALTY GROUP INC.
Similar Properties ?Active Comparables — Search CriteriaSearch Radius2 kmPrice Range±5%Match Home TypeYesMatch BedroomsYes

718 - 1005 KING STREET W, Toronto (Niagara)
Condo - Apartment$719,000
$3,408/yr taxListing Courtesy of ROYAL LEPAGE SIGNATURE REALTY

1023 - 20 MINOWAN MIIKAN LANE, Toronto (Little Portugal)
Condo - Apartment$715,000
$2,669/yr taxListing Courtesy of SKYBOUND REALTY

2107 - 19 WESTERN BATTERY ROAD, Toronto (Niagara)
Condo - Apartment$729,000
$3,635/yr taxListing Courtesy of RE/MAX WEST REALTY INC.

712 - 42 WESTERN BATTERY ROAD, Toronto (Niagara)
Condo - Row / Townhouse$699,999
$3,356/yr taxListing Courtesy of ROYAL LEPAGE SIGNATURE REALTY

202 - 18 STAFFORD STREET, Toronto (Niagara)
Single Family$699,900
$2,964/yr taxListing Courtesy of RE/MAX WEST REALTY INC.

610 - 66 PORTLAND STREET, Toronto (Waterfront Communities)
Condo - Apartment$699,900
$3,243/yr taxListing Courtesy of ROYAL LEPAGE SIGNATURE REALTY

132 - 28 STADIUM ROAD, Toronto (Niagara)
Condo - Row / Townhouse$699,000
$3,318/yr taxListing Courtesy of TEAM PANAG REAL ESTATE INC.

28 STADIUM Road Unit# 132, Toronto
Condo - Row / Townhouse$699,000
$3,318/yr taxListing Courtesy of Keller Williams Edge Realty

1120 - 231 FORT YORK BOULEVARD, Toronto (Niagara)
Condo - Apartment$699,000
$3,102/yr taxListing Courtesy of RE/MAX HALLMARK REALTY LTD.

2206 - 19 WESTERN BATTERY ROAD, Toronto (Niagara)
Condo - Apartment$699,000
$3,861/yr taxListing Courtesy of RETREND REALTY LTD

TH 111 - 59 EAST LIBERTY STREET, Toronto (Niagara)
Condo - Row / Townhouse$740,000
$3,476/yr taxListing Courtesy of ROYAL LEPAGE SIGNATURE REALTY

2106 - 100 WESTERN BATTERY ROAD, Toronto (Niagara)
Condo - Apartment$749,000
$3,431/yr taxListing Courtesy of REAL ESTATE HOMEWARD

802 - 66 PORTLAND STREET, Toronto (Waterfront Communities)
Condo - Apartment$749,000
$4,969/yr taxListing Courtesy of RARE REAL ESTATE

711 - 219 FORT YORK BOULEVARD, Toronto (Niagara)
Condo - Apartment$750,000
$3,650/yr taxListing Courtesy of HOMELIFE/CIMERMAN REAL ESTATE LIMITED

UPPER - 899 DUNDAS STREET W, Toronto (Trinity-Bellwoods)
Residential Commercial Mix$6,000/mo
Listing Courtesy of HC REALTY GROUP INC.

534 - 43 HANNA AVENUE, Toronto (Niagara)
Condo - Apartment$5,295/mo
Listing Courtesy of RE/MAX HALLMARK REALTY LTD.

331 - 629 KING STREET W, Toronto (Waterfront Communities)
Condo - Apartment$4,995/mo
Listing Courtesy of THE REAL ESTATE OFFICE INC.

806 - 505 RICHMOND STREET W, Toronto (Waterfront Communities)
Condo - Apartment$4,650/mo
Listing Courtesy of CHESTNUT PARK REAL ESTATE LIMITED

204 - 484 SPADINA AVENUE, Toronto (University)
Condo - Apartment$4,425/mo
Listing Courtesy of SOTHEBY'S INTERNATIONAL REALTY CANADA

4 - 114 OSSINGTON AVENUE, Toronto (Trinity-Bellwoods)
Residential Commercial Mix$4,300/mo
Listing Courtesy of PSR

914 - 628 FLEET STREET, Toronto (Niagara)
Condo - Apartment$4,200/mo
Listing Courtesy of ROYAL LEPAGE SIGNATURE REALTY

109 - 95 BATHURST STREET, Toronto (Waterfront Communities)
Condo - Apartment$4,200/mo
Listing Courtesy of ROYAL LEPAGE SIGNATURE REALTY

611 - 219 FORT YORK BOULEVARD, Toronto (Niagara)
Condo - Apartment$4,200/mo
Listing Courtesy of ICI SOURCE REAL ASSET SERVICES INC.

311 - 484 SPADINA AVENUE, Toronto (University)
Condo - Apartment$4,050/mo
Listing Courtesy of SOTHEBY'S INTERNATIONAL REALTY CANADA

511 - 484 SPADINA AVENUE, Toronto (University)
Condo - Apartment$4,050/mo
Listing Courtesy of SOTHEBY'S INTERNATIONAL REALTY CANADA

803 - 200 SUDBURY STREET, Toronto (Little Portugal)
Condo - Apartment$3,800/mo
Listing Courtesy of RE/MAX ABOUTOWNE REALTY CORP.

1835 - 525 ADELAIDE STREET W, Toronto (Waterfront Communities)
Condo - Apartment$3,800/mo
Listing Courtesy of THE NOOK REALTY INC.

A - 1118 QUEEN STREET W, Toronto (Trinity-Bellwoods)
Other$3,700/mo
Listing Courtesy of RE/MAX WEST REALTY INC.

906 - 203 COLLEGE STREET, Toronto (Kensington-Chinatown)
Condo - Apartment$3,700/mo
Listing Courtesy of HOMELIFE NEW WORLD REALTY INC.
Sold Comparables
Access to sold property data requires a registered and verified account with TRREB DDF integration.
Coming SoonRented Comparables
Access to rented property data requires a registered and verified account with TRREB DDF integration.
Coming SoonBook a Viewing
532 - 150 SUDBURY STREET, Toronto (Little Portugal), Ontario, M6J3S8
