531 Notre Dame Avenue, Greater Sudbury, Ontario, P3C5L1
MLS: 2127082 | Commercial Mix (Freehold)
$2,200,000








































Property Description
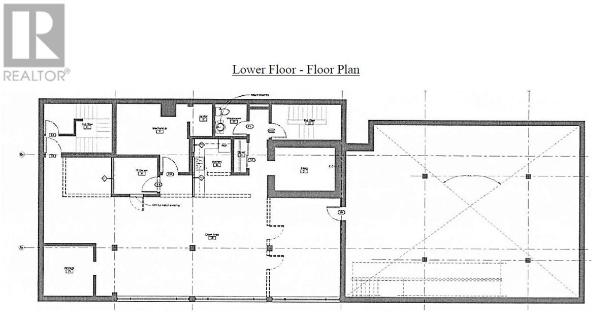
This commercial building offers 8,854 sq. ft. of income-generating space in a high-traffic, high-visibility corner location at Notre Dame Avenue and St. George Street. The property consists of 6,446 sq. ft. across the main and second floors, plus an additional 1995 sq. ft. in a high, bright basement. C2 zoning provides a flexible space suitable for professional offices, medical, retail, or mixed commercial uses. The main floor is fully accessible, with ramp access from St. George Street, enhancing tenant appeal and usability. A major renovation was completed on the main and second floors (2022-2023), including new electrical, plumbing, communications infrastructure, and mechanical systems. The basement level features excellent ceiling height and natural light, accommodating meeting areas, staff amenities and a large storage component. A major asset is the rear private on-site parking lot with capacity for approximately 30 vehicles (an increasingly scarce feature). This is a turnkey commercial investment in a well-established corridor offering strong exposure, accessibility, and long-term hold potential. Property sale includes both 531 Notre Dame Avenue and the dedicated parking lot at 251 St. George Street. (id:64974)
Quick Facts
- Property Type: Commercial Mix (Freehold)
- Bedrooms: None
- Bathrooms: None
- Ownership: Freehold
Listing Provided by: RE/MAX SUDBURY INC., BROKERAGE
Board: Sudbury Real Estate Board
Data provided via CREA DDF®.
Detailed Features
Interior & Systems
- Cooling: Central air conditioning
- Flooring: Tile, Carpeted, Linoleum
- Security: Security system
Exterior & Construction
- Roof: Tar & gravel, Unknown
- Foundation: Poured Concrete
- Sewer: Municipal sewage system
- Water: Municipal water
- Road Surface: Paved road
Lot & Land
- Zoning: C2
Listing Information
Listing History
MLS listing activity for 531 Notre Dame Avenue, Greater Sudbury, Ontario, P3C5L1 — dates reflect when changes were recorded in the DDF
🚗 Travel times
Neighborhood Walkability
Mortgage & Cost Calculators
Nearby Homes ?Nearby Homes — Search CriteriaSearch Radius1 kmPrice Range±5%Match BedroomsYesMatch BathroomsYes
Similar Homes ?Similar Homes — Search CriteriaSearch Radius5 kmPrice Range±5%Match Home TypeYesMatch BedroomsYes

24 - 3920 EGLINTON AVENUE W, Mississauga (Churchill Meadows)
Retail$2,199,000
$11,569/yr taxListing Courtesy of RE/MAX ESCARPMENT REALTY INC.

389-391 KERR STREET, Oakville (CO Central)
Residential Commercial Mix$2,198,000
$17,579/yr taxListing Courtesy of RE/MAX ULTIMATE REALTY INC.

350-352 QUEEN STREET E, Toronto (Regent Park)
Residential Commercial Mix$2,150,000
$27,406/yr taxListing Courtesy of RE/MAX HALLMARK REALTY LTD.

673-675 SOMERSET STREET W, Ottawa
Retail$2,150,000
$12,782/yr taxListing Courtesy of ROYAL LEPAGE INTEGRITY REALTY

675 BROADVIEW AVENUE, Toronto (North Riverdale)
Retail$2,290,000
$11,806/yr taxListing Courtesy of RE/MAX HALLMARK REALTY LTD.

850-858 KING STREET W, Hamilton (Westdale)
Retail$2,298,900
$27,966/yr taxListing Courtesy of ROYAL LEPAGE STATE REALTY

13 MILL STREET E, Centre Wellington (Elora/Salem)
Retail$2,299,000
$8,048/yr taxListing Courtesy of RE/MAX Real Estate Centre Inc

843-839 SOMERSET STREET W, Ottawa
Retail$2,100,000
$39,106/yr taxListing Courtesy of RE/MAX HALLMARK REALTY GROUP

16524 HURONTARIO STREET, Caledon
Retail$2,300,000
$19,691/yr taxListing Courtesy of RE/MAX REAL ESTATE CENTRE INC.

654 BLOOR STREET W, Toronto (Annex)
Retail$2,099,900
$23,439/yr taxListing Courtesy of Royal Lepage Real Estate Associates

10138 HIGHWAY 26 E, Collingwood
Retail$2,095,000
$8,506/yr taxListing Courtesy of ROYAL LEPAGE SIGNATURE REALTY
Similar Properties ?Active Comparables — Search CriteriaSearch Radius2 kmPrice Range±5%Match Home TypeYesMatch BedroomsYes
No active comparables found in this area.
Sold Comparables
Access to sold property data requires a registered and verified account with TRREB DDF integration.
Coming SoonRented Comparables
Access to rented property data requires a registered and verified account with TRREB DDF integration.
Coming SoonBook a Viewing
531 Notre Dame Avenue, Greater Sudbury, Ontario, P3C5L1


