530 ROOSEVELT DRIVE, Kingston (City SouthWest), Ontario, K7M4B1
MLS: X13003336 | House (Freehold)
$399,900


















































Property Description
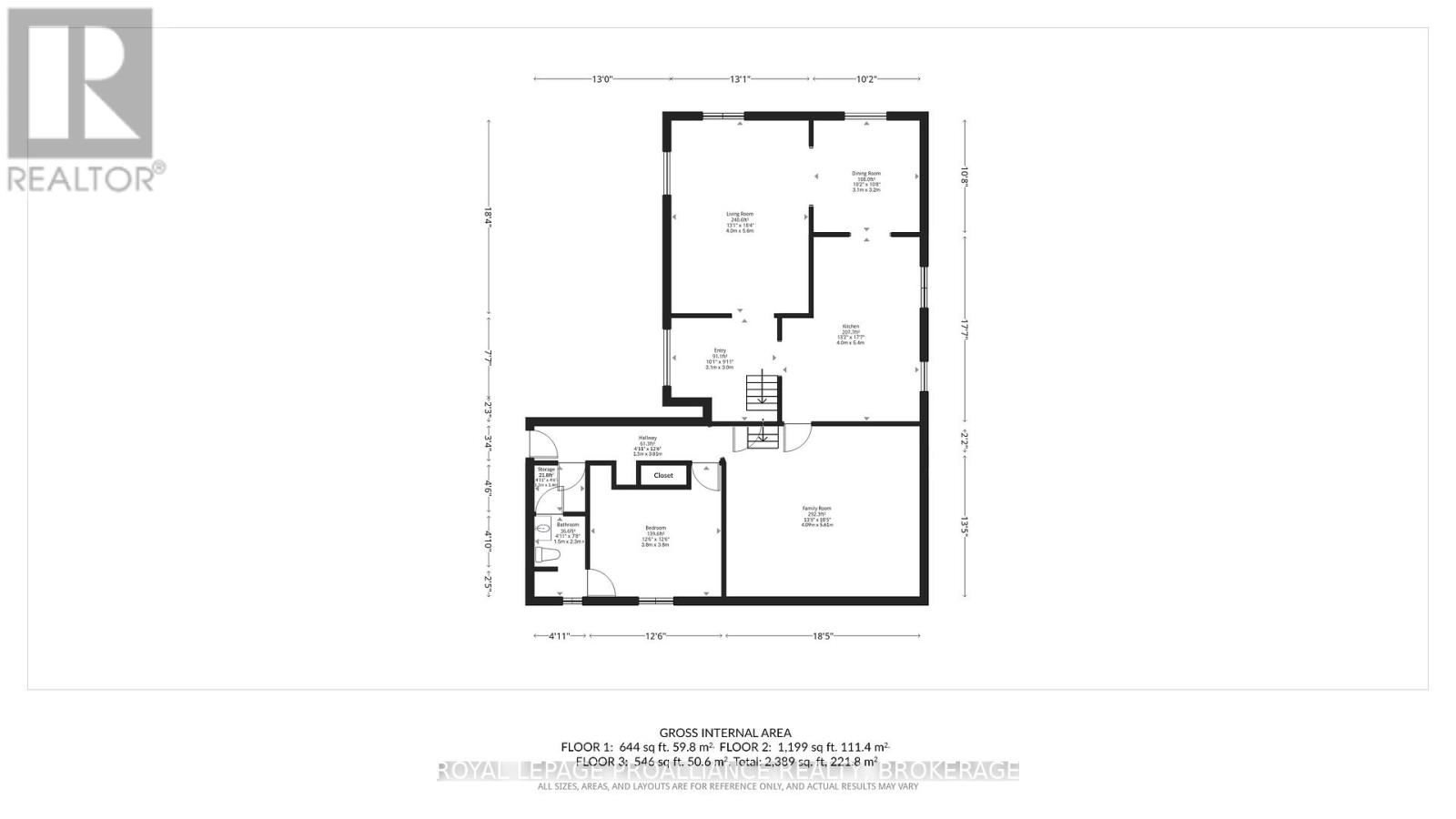
A contractor and renovator's special awaits in Auden Park! Discover 530 Roosevelt Drive, a sturdy brick and siding back split home with outstanding potential in one of Kingston's most family friendly and sought after communities. Situated on a rare, oversized lot measuring 65 ft x 115 ft, offering a large, fully fenced backyard, a covered front veranda for relaxing, and a convenient oversized 1.5 car garage. The thoughtfully laid out main floor features a formal living room, a separate formal dining room, a functional gallery kitchen with its own eating area, and a family room with angel stone wood burning fireplace complete with sliding patio doors that open directly to the large, fully fenced backyard. The property features 3+1 bedrooms. Upstairs you'll find three generously sized bedrooms, including a spacious primary suite complete with a walk in closet and private 4 piece ensuite bathroom. An additional 4 piece bathroom also serves the upper level, while a convenient 3 piece bath with standing shower is located on the main floor, with a private entrance from the 4th bedroom. The property features a large, dry unfinished basement complete with a sump pump, owned hot water tank, 100 amp fuse panel. The property requires extensive renovations, is an Estate and is offered in "As is, where is" condition for $399,900. This is a tremendous opportunity on one of the best lots in a quality neighbourhood. (id:64974)
Quick Facts
- Property Type: House (Freehold)
- Bedrooms: 4 (3 above, 1 below)
- Bathrooms: 3
- Ownership: Freehold
- Attached: No
- Fireplaces: 1
- Parking: 3.0 spaces (Attached Garage, Garage)
- Frontage: 65 ft (19.8 m)
Costs
- Annual Taxes: $5,437.24 (2025)
Listing Provided by: ROYAL LEPAGE PROALLIANCE REALTY, BROKERAGE
Board: Kingston & Area Real Estate Association
Data provided via CREA DDF®.
Detailed Features
Interior & Systems
- Heating: Forced air, Oil
- Cooling: None
- Basement: Full, None
- Appliances: Washer, Water Heater
- Utilities: Sewer, Electricity
- Security: Smoke Detectors, Monitored Alarm
Exterior & Construction
- Exterior: Brick
- Foundation: Block
- Sewer: Sanitary sewer
- Water: Municipal water
Lot & Land
- Frontage: 65 ft (19.8 m)
- Features: Flat site, Sump Pump
- Zoning: R1-3
Community & Neighbourhood
- Building: Fireplace(s)
- Neighbourhood: 28 - City SouthWest
Room Details (9 rooms)
Listing Information
Listing History
MLS listing activity for 530 ROOSEVELT DRIVE, Kingston (City SouthWest), Ontario, K7M4B1 — dates reflect when changes were recorded in the DDF
🚗 Travel times
Neighborhood Walkability
Mortgage & Cost Calculators
Nearby Homes ?Nearby Homes — Search CriteriaSearch Radius1 kmPrice Range±5%Match BedroomsYesMatch BathroomsYes

568 ROOSEVELT DRIVE, Kingston (City SouthWest)
House$639,000
$4,388/yr taxListing Courtesy of SUTTON GROUP-MASTERS REALTY INC., BROKERAGE

361 BRIMLEY COURT, Kingston (City SouthWest)
House$998,500
$7,831/yr taxListing Courtesy of RE/MAX FINEST REALTY INC., BROKERAGE

660 ROOSEVELT DRIVE, Kingston (City SouthWest)
House$624,900
$4,344/yr taxListing Courtesy of ROYAL LEPAGE PROALLIANCE REALTY, BROKERAGE

500 CONSERVATORY DRIVE, Kingston (City SouthWest)
House$799,900
$6,102/yr taxListing Courtesy of ROYAL LEPAGE PROALLIANCE REALTY, BROKERAGE

2018 GEOLOGY TRAIL, Kingston (City SouthWest)
House$719,900
$6,146/yr taxListing Courtesy of RE/MAX FINEST REALTY INC., BROKERAGE

105 - 809 DEVELOPMENT DRIVE, Kingston (South of Taylor-Kidd Blvd)
Condo - Row / Townhouse$399,900
$3,538/yr taxListing Courtesy of ROYAL LEPAGE PROALLIANCE REALTY, BROKERAGE

597 TRUEDELL ROAD, Kingston (South of Taylor-Kidd Blvd)
House$350,000
$4,684/yr taxListing Courtesy of ROYAL LEPAGE PROALLIANCE REALTY, BROKERAGE

296 OLYMPUS AVENUE, Kingston (City SouthWest)
House$624,900
$4,181/yr taxListing Courtesy of ROYAL LEPAGE PROALLIANCE REALTY, BROKERAGE

628 STANFORD STREET, Kingston (South of Taylor-Kidd Blvd)
House$515,900
$3,945/yr taxListing Courtesy of RE/MAX FINEST REALTY INC., BROKERAGE

386 MCEWEN DRIVE, Kingston (City SouthWest)
House$539,000
$3,324/yr taxListing Courtesy of ROYAL LEPAGE PROALLIANCE REALTY, BROKERAGE

331 MEADOWCREST ROAD, Kingston (City SouthWest)
House$469,900
$3,236/yr taxListing Courtesy of Rock Star Real Estate Inc., Brokerage

1076 LINCOLN DRIVE, Kingston (South of Taylor-Kidd Blvd)
House$540,000
$3,546/yr taxListing Courtesy of RE/MAX FINEST REALTY INC., BROKERAGE
Similar Homes ?Similar Homes — Search CriteriaSearch Radius5 kmPrice Range±5%Match Home TypeYesMatch BedroomsYes

16 ROSEMUND CRESCENT, Kingston (West of Sir John A. Blvd)
Condo - Row / Townhouse$389,900
$2,350/yr taxListing Courtesy of ROYAL LEPAGE PROALLIANCE REALTY, BROKERAGE

3499 UPPER MIDDLE Road Unit# 211, Burlington
Condo - Apartment$399,900
$2,283/yr taxListing Courtesy of RE/MAX Escarpment Realty Inc.

1003 - 2885 BAYVIEW AVENUE, Toronto (Bayview Village)
Condo - Apartment$399,900
$1,908/yr taxListing Courtesy of RIGHT AT HOME REALTY

1714 - 1035 SOUTHDOWN ROAD, Mississauga (Clarkson)
Condo - Apartment$399,900
Listing Courtesy of HODGINS REALTY GROUP INC.

685 REID STREET, Innisfil (Alcona)
House$399,900
$3,398/yr taxListing Courtesy of RIGHT AT HOME REALTY

503 - 6720 GLEN ERIN DRIVE, Mississauga (Meadowvale)
Condo - Apartment$399,900
$1,923/yr taxListing Courtesy of KINGSWAY REAL ESTATE

187 BARTON STREET W, Hamilton (Central)
House$399,900
$2,575/yr taxListing Courtesy of RE/MAX ESCARPMENT REALTY INC.

2901 - 117 MCMAHON DRIVE, Toronto (Bayview Village)
Condo - Apartment$399,900
$2,232/yr taxListing Courtesy of HOMELIFE NEW WORLD REALTY INC.

27 ELM STREET, Puslinch
House$399,900
$1,667/yr taxListing Courtesy of RE/MAX TWIN CITY REALTY INC.

10 MALLARD Trail Unit# 434, Waterdown
Condo - Apartment$399,900
$2,869/yr taxListing Courtesy of Royal LePage State Realty Inc.

27 ELM Street, Puslinch
Modular$399,900
$1,667/yr taxListing Courtesy of Re/Max Twin City Realty Inc

C-103 - 182 D'ARCY STREET, Cobourg
Condo - Row / Townhouse$399,900
$2,277/yr taxListing Courtesy of RE/MAX ROUGE RIVER REALTY LTD.

111 - 100 THE PROMENADE, Central Elgin (Port Stanley)
Condo - Apartment$399,900
$2,946/yr taxListing Courtesy of BLUE FOREST REALTY INC.

3804 - 50 CHARLES STREET E, Toronto (Church-Yonge Corridor)
Condo - Apartment$399,900
$2,240/yr taxListing Courtesy of HOMELIFE LANDMARK REALTY INC.

201 - 300 LISGAR STREET, Ottawa
Condo - Apartment$399,900
$4,032/yr taxListing Courtesy of RE/MAX HALLMARK REALTY GROUP
Similar Properties ?Active Comparables — Search CriteriaSearch Radius2 kmPrice Range±5%Match Home TypeYesMatch BedroomsYes
No active comparables found in this area.
No rental comparables found in this area.
Sold Comparables
Access to sold property data requires a registered and verified account with TRREB DDF integration.
Coming SoonRented Comparables
Access to rented property data requires a registered and verified account with TRREB DDF integration.
Coming SoonBook a Viewing
530 ROOSEVELT DRIVE, Kingston (City SouthWest), Ontario, K7M4B1
