53 HANCOCK CRESCENT, Kawartha Lakes (Lindsay), Ontario, K9V0P4
MLS: X12897028 | House (Freehold)
$799,900













































Property Description
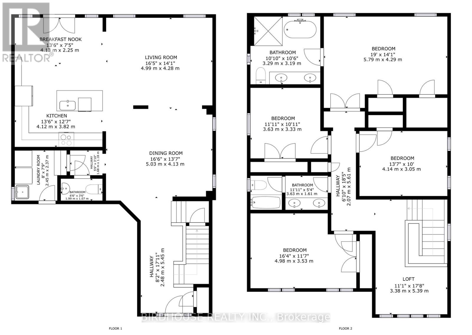
This stunning two-storey corner lot home offers 4 bedrooms and 2.5 bathrooms, thoughtfully designed for modern family living. The main floor boasts a bright, open-concept layout featuring an eat-in kitchen with elegant quartz countertops, a centre island, and seamless flow into the spacious living and dining areas-perfect for both everyday living and entertaining. Enjoy soaring ceilings and a convenient walkout from the kitchen to a fully fenced backyard, complete with a wooden gazebo. Added convenience comes with main floor laundry, a 2-piece powder room, and direct access from the attached two-car garage. Upstairs, a versatile loft space provides the perfect setting for a home office or cozy reading nook. The second level also features 4 generously sized bedrooms, including a beautiful primary suite with a luxurious 5-piece ensuite. An additional full bathroom serves the remaining bedrooms. The unfinished basement offers excellent potential, featuring a rough-in for an additional bathroom-ready for your future customization. Home is also equipped with 200 AMP electrical service. This home is close to all amenities, offering an exceptional blend of comfort, style, and convenience. (id:64974)
Quick Facts
- Property Type: House (Freehold)
- Bedrooms: 4 (4 above)
- Bathrooms: 3 (1 half)
- Ownership: Freehold
- Attached: No
- Parking: 4.0 spaces (Attached Garage, Garage)
- Frontage: 44 ft (13.5 m)
Costs
- Annual Taxes: $5,868.20 (2025)
Listing Provided by: BIRDHOUSE REALTY INC.
Board: Central Lakes Association of REALTORS®
Data provided via CREA DDF®.
Detailed Features
Interior & Systems
- Heating: Forced air, Natural gas
- Cooling: Central air conditioning, Air exchanger
- Basement: Unfinished, Full
- Appliances: Washer, Refrigerator, Water meter, Dishwasher, Stove, Dryer, Microwave, Window Coverings
- Utilities: Sewer, Electricity, Cable
Exterior & Construction
- Exterior: Vinyl siding
- Foundation: Poured Concrete
- Fencing: Fenced yard, Fully Fenced
- Sewer: Sanitary sewer
- Water: Municipal water
Lot & Land
- Frontage: 44 ft (13.5 m)
- Features: Level lot, Level, Gazebo
- Zoning: R2-S37
Community & Neighbourhood
- Neighbourhood: Lindsay
Room Details (14 rooms)
Listing Information
Listing History
MLS listing activity for 53 HANCOCK CRESCENT, Kawartha Lakes (Lindsay), Ontario, K9V0P4 — dates reflect when changes were recorded in the DDF
🚗 Travel times
Neighborhood Walkability
Mortgage & Cost Calculators
Nearby Homes ?Nearby Homes — Search CriteriaSearch Radius1 kmPrice Range±5%Match BedroomsYesMatch BathroomsYes

60 HENNESSEY CRESCENT, Kawartha Lakes (Lindsay)
House$1,099,999
$7,644/yr taxListing Courtesy of ROYAL LEPAGE FRANK REAL ESTATE

17 RICHARD AVENUE, Kawartha Lakes (Lindsay)
House$664,900
$3,691/yr taxListing Courtesy of AFFINITY GROUP PINNACLE REALTY LTD.

3 DAVID DRIVE, Kawartha Lakes (Lindsay)
House$749,900
$4,727/yr taxListing Courtesy of AFFINITY GROUP PINNACLE REALTY LTD.

52 CLAXTON CRESCENT, Kawartha Lakes (Lindsay)
House$869,488
$5,529/yr taxListing Courtesy of ZOLO REALTY

26 APPLEWOOD CRESCENT, Kawartha Lakes (Lindsay)
House$699,000
$4,085/yr taxListing Courtesy of RE/MAX ALL-STARS REALTY INC.

147 SPRINGDALE DRIVE, Kawartha Lakes (Lindsay)
House$671,999
$4,683/yr taxListing Courtesy of Bowes & Cocks Limited

269 ST. JOSEPH ROAD, Kawartha Lakes (Lindsay)
House$499,900
$2,816/yr taxListing Courtesy of BIRDHOUSE REALTY INC.

291 ANGELINE STREET N, Kawartha Lakes (Lindsay)
House$749,900
$4,990/yr taxListing Courtesy of RE/MAX ALL-STARS REALTY INC.

6 PURDY COURT, Kawartha Lakes (Lindsay)
House$685,000
$5,004/yr taxListing Courtesy of BIRDHOUSE REALTY INC.

1 BURROWS Court, Lindsay
House$699,000
$7,280/yr taxListing Courtesy of Coldwell Banker Community Professionals

1 BURROWS COURT, Kawartha Lakes (Ops)
House$699,000
$7,280/yr taxListing Courtesy of COLDWELL BANKER COMMUNITY PROFESSIONALS

65 LIAM STREET, Kawartha Lakes (Lindsay)
House$899,000
$4,873/yr taxListing Courtesy of RE/MAX ALL-STARS REALTY INC.

142 SANDERLING CRESCENT N, Kawartha Lakes (Lindsay)
House$549,990
$3,540/yr taxListing Courtesy of SOTHEBY'S INTERNATIONAL REALTY CANADA

34 CEDAR COURT, Kawartha Lakes (Lindsay)
House$624,900
$4,070/yr taxListing Courtesy of RE/MAX ROUGE RIVER REALTY LTD.

9 DON COURT, Kawartha Lakes (Lindsay)
House$649,900
$4,187/yr taxListing Courtesy of RE/MAX ALL-STARS REALTY INC.
Similar Homes ?Similar Homes — Search CriteriaSearch Radius5 kmPrice Range±5%Match Home TypeYesMatch BedroomsYes

22 MCKAY AVENUE, Kawartha Lakes (Lindsay)
House$799,999
$5,544/yr taxListing Courtesy of HOMELIFE/FUTURE REALTY INC.

6 FISHER ROAD, Kawartha Lakes (Lindsay)
House$792,000
$235/yr taxListing Courtesy of COLDWELL BANKER THE REAL ESTATE CENTRE

8 KYLE COURT, Kawartha Lakes (Lindsay)
House$789,000
$6,375/yr taxListing Courtesy of ROYAL LEPAGE FRANK REAL ESTATE

874 MONARCH ROAD, Kawartha Lakes (Lindsay)
House$819,900
$3,547/yr taxListing Courtesy of RE/MAX ALL-STARS REALTY INC.
Similar Properties ?Active Comparables — Search CriteriaSearch Radius2 kmPrice Range±5%Match Home TypeYesMatch BedroomsYes

108 SANDERSON DRIVE, Kawartha Lakes (Lindsay)
Row / Townhouse$2,650/mo
Listing Courtesy of RIGHT AT HOME REALTY

53 BUTLER BOULEVARD, Kawartha Lakes (Lindsay)
Row / Townhouse$2,600/mo
Listing Courtesy of THE AGENCY
Sold Comparables
Access to sold property data requires a registered and verified account with TRREB DDF integration.
Coming SoonRented Comparables
Access to rented property data requires a registered and verified account with TRREB DDF integration.
Coming SoonBook a Viewing
53 HANCOCK CRESCENT, Kawartha Lakes (Lindsay), Ontario, K9V0P4
