5225 AIDEN AVENUE, Tecumseh, Ontario, N0R1K0
MLS: 26008088 | House (Freehold)
$819,999


Property Description
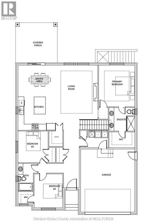
Now building in Oldcastle Heights by Sleiman Homes. This well-appointed ranch offers approximately 1718 sq. ft. of finished living space and features 3 bedrooms and 2 full bathrooms, including an ensuite bath & walk-in closet. The home boasts a spacious living room with fireplace, dining area with an elegant, functional layout and finished hardwood flooring throughout. The gourmet kitchen includes granite countertops, an island, a pantry and high end finishes using only top-quality materials. The lower level features a grade entrance and offers excellent potential for additional living space, and can be finished with a large family room, 2 additional bedrooms, a full bath, and a second kitchen for those seeking more space. Inquire about basement layout options and pricing. Exterior highlights include brick, stucco, and stone finishes, a double car garage, outdoor pot lights, and a 10' x 10' covered porch. Situated on a large lot in one of Windsor’s hottest new subdivisions, Oldcastle heights - 7-Year Tarion Warranty. The listed price already reflects the HST rebate for the period of April 1, 2026 through March 31, 2027, with all rebate amounts assigned to the builder. The discounted price is conditional upon the buyer qualifying for the applicable rebates. Additional lots available. Contact today for the builder’s package. Buyer to verify zoning, taxes, and measurements. 3d renderings for illustration purposes only. (id:64974)
Quick Facts
- Property Type: House (Freehold)
- Style: Bungalow, Ranch
- Bedrooms: 3 (3 above)
- Bathrooms: 2
- Living Area: 1,718 sq ft (159.6 m²)
- Above Grade: 1,718 sq ft (159.6 m²)
- Ownership: Freehold
- Attached: No
- Fireplaces: 1
Listing Provided by: REMAX CAPITAL DIAMOND REALTY
Board: Windsor-Essex County Association of REALTORS®
Data provided via CREA DDF®.
Detailed Features
Interior & Systems
- Heating: Forced air, Natural gas, Furnace
- Cooling: Central air conditioning
- Flooring: Hardwood, Ceramic/Porcelain
- Fireplace Features: Insert, Electric
Exterior & Construction
- Style: Bungalow, Ranch
- Exterior: Brick, Stone, Concrete/Stucco
- Foundation: Concrete
Lot & Land
- Features: Double width or more driveway, Concrete Driveway, Finished Driveway
- Zoning: RES
Room Details (11 rooms)
Listing Information
Listing History
MLS listing activity for 5225 AIDEN AVENUE, Tecumseh, Ontario, N0R1K0 — dates reflect when changes were recorded in the DDF
🚗 Travel times
Neighborhood Walkability
Mortgage & Cost Calculators
Nearby Homes ?Nearby Homes — Search CriteriaSearch Radius1 kmPrice Range±5%Match BedroomsYesMatch BathroomsYes

5232 AIDEN AVENUE, Tecumseh
House$799,000
Listing Courtesy of REMAX CAPITAL DIAMOND REALTY

5232 AIDEN AVENUE, Tecumseh
House$799,000
Listing Courtesy of REMAX CAPITAL DIAMOND REALTY

5248 AIDEN AVENUE, Tecumseh
House$929,000
Listing Courtesy of REMAX CAPITAL DIAMOND REALTY

5245 AIDEN AVENUE, Tecumseh
House$899,000
Listing Courtesy of REMAX CAPITAL DIAMOND REALTY

5248 AIDEN AVENUE, Tecumseh
House$929,000
Listing Courtesy of REMAX CAPITAL DIAMOND REALTY

5204 AIDEN AVENUE, Tecumseh
House$899,000
Listing Courtesy of REMAX CAPITAL DIAMOND REALTY

5204 AIDEN AVENUE, Tecumseh
House$899,000
Listing Courtesy of REMAX CAPITAL DIAMOND REALTY

5205 AIDEN AVENUE, Tecumseh
House$869,000
Listing Courtesy of REMAX CAPITAL DIAMOND REALTY

5205 AIDEN AVENUE, Tecumseh
House$869,000
Listing Courtesy of REMAX CAPITAL DIAMOND REALTY

5209 AIDEN AVENUE, Tecumseh
House$859,000
Listing Courtesy of REMAX CAPITAL DIAMOND REALTY

5209 AIDEN AVENUE, Tecumseh
House$859,000
Listing Courtesy of REMAX CAPITAL DIAMOND REALTY
Similar Homes ?Similar Homes — Search CriteriaSearch Radius5 kmPrice Range±5%Match Home TypeYesMatch BedroomsYes

5232 AIDEN AVENUE, Tecumseh
House$799,000
Listing Courtesy of REMAX CAPITAL DIAMOND REALTY

5232 AIDEN AVENUE, Tecumseh
House$799,000
Listing Courtesy of REMAX CAPITAL DIAMOND REALTY

1901 - 18 HARBOUR STREET, Toronto (Waterfront Communities)
Condo - Apartment$819,999
$3,823/yr taxListing Courtesy of CITYSCAPE REAL ESTATE LTD.

22 - 1245 BAYLY STREET, Pickering (Bay Ridges)
Condo - Row / Townhouse$819,999
$7,433/yr taxListing Courtesy of RIGHT AT HOME REALTY

127 STONEY POND COURT, Ottawa
House$819,999
$6,151/yr taxListing Courtesy of ROYAL LEPAGE INTEGRITY REALTY

312 RAMAGE ROAD, Clarence-Rockland
House$819,999
$5,464/yr taxListing Courtesy of RIGHT AT HOME REALTY

3336 KODIAK STREET, Ottawa
House$819,999
$4,316/yr taxListing Courtesy of H. Bullock Realty Inc.

505 - 1880 GORDON STREET, Guelph (Pineridge/Westminster Woods)
Condo - Apartment$819,999
$6,765/yr taxListing Courtesy of Royal LePage Royal City Realty

1037 FOREMAN ROAD, Muskoka Lakes (Medora)
House$819,999
$2,101/yr taxListing Courtesy of Sotheby's International Realty Canada

96 GRAF STREET, Harrow
House$819,999
Listing Courtesy of DEERBROOK REALTY INC.

607 - 129 SOUTH STREET, Gananoque
Condo - Apartment$820,000
$8,603/yr taxListing Courtesy of CENTURY 21 HERITAGE GROUP LTD., BROKERAGE

153 ADELAIDE STREET, Essex
House$820,000
Listing Courtesy of REALTY ONE GROUP ICONIC BROKERAGE

1901 - 2330 BRIDLETOWNE CIRCLE, Toronto (L'Amoreaux)
Condo - Apartment$820,000
$2,948/yr taxListing Courtesy of RIGHT AT HOME REALTY

30 LAKEVIEW DRIVE, South Dundas
House$820,000
$806/yr taxListing Courtesy of SOLID ROCK REALTY

4808 - 386 YONGE STREET, Toronto (Bay Street Corridor)
Condo - Apartment$820,000
$5,143/yr taxListing Courtesy of MASTER'S CHOICE REALTY INC.
Similar Properties ?Active Comparables — Search CriteriaSearch Radius2 kmPrice Range±5%Match Home TypeYesMatch BedroomsYes
No rental comparables found in this area.
Sold Comparables
Access to sold property data requires a registered and verified account with TRREB DDF integration.
Coming SoonRented Comparables
Access to rented property data requires a registered and verified account with TRREB DDF integration.
Coming SoonBook a Viewing
5225 AIDEN AVENUE, Tecumseh, Ontario, N0R1K0
