520 HAMILTON ROAD, London East (East L), Ontario, N5Z1S4
MLS: X12935990 | Retail
$1,199,900



















































Property Description
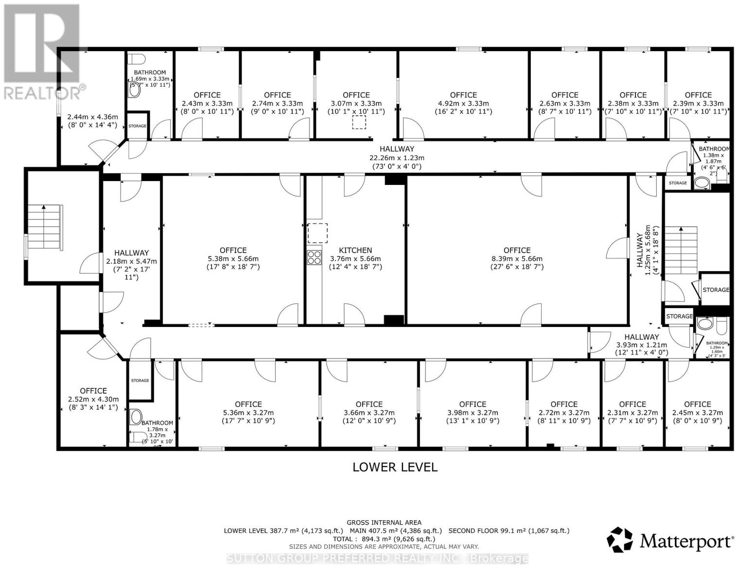
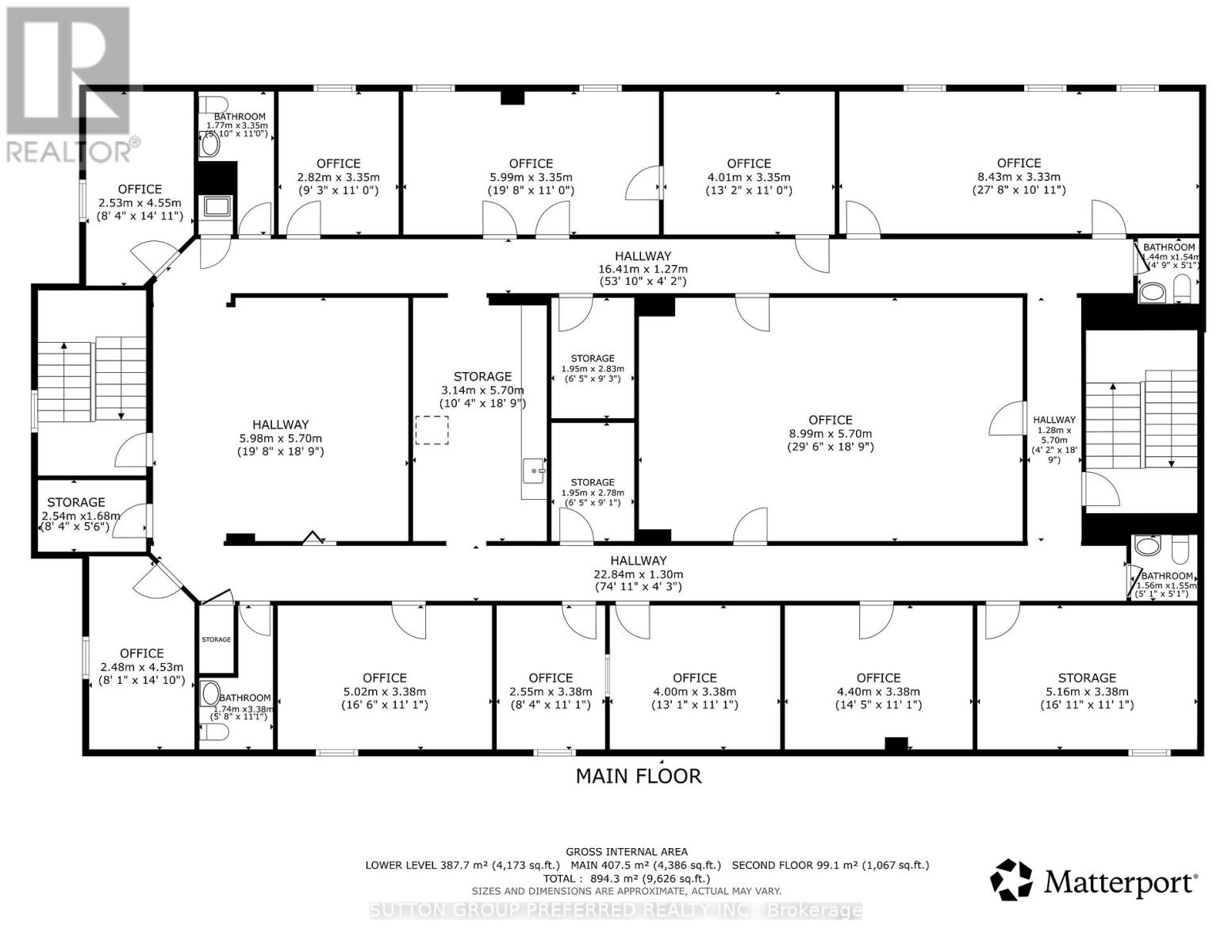
Fantastic office building that is brick to the eaves & very well cared for. 9 washrooms, boardroom, training/class rooms + individual or shared offices. Approx. 9000 sq ft of space available. Many offices have 1-way viewing windows, ideal for focus groups etc. All appointments via showing system & listing realtor will be present at seller's direction. Excellent location. (id:64974)
Quick Facts
- Property Type: Retail
- Bedrooms: None
- Bathrooms: 9
- Living Area: 9,626 sq ft (894.3 m²)
- Frontage: 89 ft (27.2 m)
Costs
- Annual Taxes: $11,282.13 (2025)
Listing Provided by: SUTTON GROUP PREFERRED REALTY INC.
Board: London and St. Thomas Association of REALTORS®
Data provided via CREA DDF®.
Detailed Features
Interior & Systems
- Heating: Forced air, Natural gas
- Cooling: Fully air conditioned
- Appliances: Furniture
Exterior & Construction
- Water: Municipal water
Lot & Land
- Frontage: 89 ft (27.2 m)
- Zoning: BDC (36) H13
Community & Neighbourhood
- Neighbourhood: East L
Listing Information
Listing History
MLS listing activity for 520 HAMILTON ROAD, London East (East L), Ontario, N5Z1S4 — dates reflect when changes were recorded in the DDF
🚗 Travel times
Neighborhood Walkability
Mortgage & Cost Calculators
Nearby Homes ?Nearby Homes — Search CriteriaSearch Radius1 kmPrice Range±5%Match BedroomsYesMatch BathroomsYes

420 HAMILTON ROAD, London East (East L)
Retail$599,900
$7,461/yr taxListing Courtesy of PINHEIRO REALTY LTD

414 HAMILTON ROAD, London East (East L)
Retail$1,449,000
$14,812/yr taxListing Courtesy of CENTURY 21 FIRST CANADIAN CORP
Similar Homes ?Similar Homes — Search CriteriaSearch Radius5 kmPrice Range±5%Match Home TypeYesMatch BedroomsYes

75 MANITOBA STREET, Bracebridge (Macaulay)
Residential Commercial Mix$1,199,900
$7,820/yr taxListing Courtesy of REVEL Realty Inc., Brokerage

1079 WELLINGTON STREET W, Ottawa
Retail$1,199,900
$13,924/yr taxListing Courtesy of EXP REALTY

1281 DAVENPORT ROAD, Toronto (Dovercourt-Wallace Emerson-Junction)
Retail$1,199,900
$8,539/yr taxListing Courtesy of HOMELIFE LANDMARK REALTY INC.

71 VICTORIA STREET W, New Tecumseth (Alliston)
Retail$1,200,000
$5,582/yr taxListing Courtesy of Sotheby's International Realty Canada

113 MURRAY STREET, Ottawa
Retail$1,200,000
$32,000/yr taxListing Courtesy of RE/MAX HALLMARK REALTY GROUP

15 - 264 BRONTE STREET S, Milton (OM Old Milton)
Retail$1,200,000
$6,670/yr taxListing Courtesy of ROYAL LEPAGE MEADOWTOWNE REALTY

16 -18 ONTARIO STREET N, Lambton Shores (Grand Bend)
Retail$1,200,000
$8,358/yr taxListing Courtesy of RE/MAX BLUEWATER REALTY INC.

610 DUNDAS STREET W, Toronto (Kensington-Chinatown)
Residential Commercial Mix$1,200,000
$10,103/yr taxListing Courtesy of CENTURY 21 LANDUNION REALTY INC.

688 GERRARD STREET, Toronto (North Riverdale)
Retail$1,200,000
$9,176/yr taxListing Courtesy of NU STREAM REALTY (TORONTO) INC.

330-334 CHARLOTTE STREET W, Peterborough (Town Ward 3)
Residential Commercial Mix$1,199,560
$9,483/yr taxListing Courtesy of CENTURY 21 UNITED REALTY INC.

431 DOUGALL AVENUE, Caledon
Retail$1,199,300
$6,227/yr taxListing Courtesy of ROYAL LEPAGE SIGNATURE REALTY

127-129 - 4750 YONGE STREET, Toronto (Lansing-Westgate)
Retail$1,199,000
$16,777/yr taxListing Courtesy of CENTURY 21 HERITAGE GROUP LTD.

1346 KENNEDY ROAD, Toronto (Dorset Park)
Residential Commercial Mix$1,199,000
$5,800/yr taxListing Courtesy of CENTURY 21 KING'S QUAY REAL ESTATE INC.

1048 GERRARD STREET E, Toronto (South Riverdale)
Residential Commercial Mix$1,199,000
$9,769/yr taxListing Courtesy of CENTURY 21 LEADING EDGE REALTY INC.

1268 MAIN STREET E, Milton (DE Dempsey)
Retail$1,199,000
$7,489/yr taxListing Courtesy of RIGHT AT HOME REALTY
Similar Properties ?Active Comparables — Search CriteriaSearch Radius2 kmPrice Range±5%Match Home TypeYesMatch BedroomsYes
No active comparables found in this area.
No rental comparables found in this area.
Sold Comparables
Access to sold property data requires a registered and verified account with TRREB DDF integration.
Coming SoonRented Comparables
Access to rented property data requires a registered and verified account with TRREB DDF integration.
Coming SoonBook a Viewing
520 HAMILTON ROAD, London East (East L), Ontario, N5Z1S4
