516 - 15 QUEENS QUAY E, Toronto (Waterfront Communities), Ontario, M5E0A4
MLS: C12980680 | Apartment (Condo)
$2,850 / monthly


















Property Description
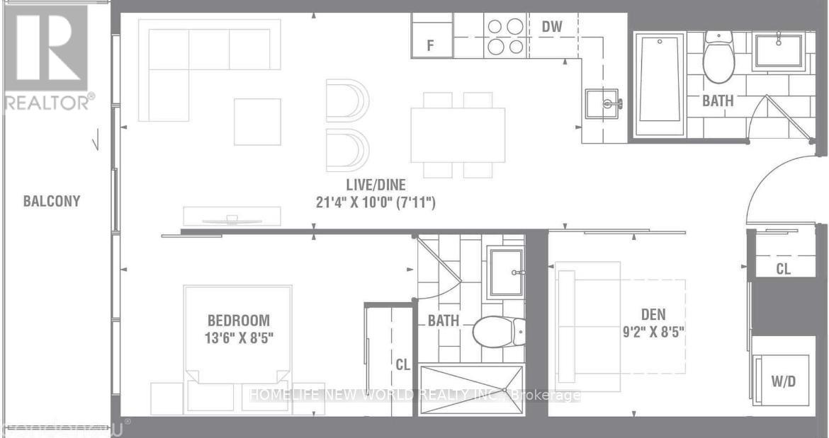
Welcome to Pier 27, where resort-style living meets the heart of the city. This beautifully designed suite features a functional split-bedroom layout with two spacious bedrooms, each with windows, and two full bathrooms. Offering 1 plus one , den curently used as second bedroom, thoughtfully planned interior space , the unit is complemented by 9-foot ceilings that enhance the bright and airy feel throughout.Enjoy premium finishes and modern appliances, along with an extra-wide, functional balcony-perfect for relaxing or entertaining outdoors. One parking space is included for added convenience.Residents benefit from an in-suite security system and 24-hour concierge service, providing both comfort and peace of mind. Ideally located just steps to the waterfront and within walking distance to Union Station, this is urban living at its finest.At Foot Of Yonge St In Heart Of Toronto In World Class Pier 27 Condo. Open-Concept Kitchen ,Spacious and Functional Layout! Better Privacy With Separated 1 bedroom and larch size den, Must See! Steps To Supermarket, Banks, Lcbo, Financial District, Community Ctr, Transit, Subway & Go Trains, Harbourfront Ctr, Scotiabank Arena, St Lawrence Market & Union Station. Fabulous Access To Dining & Entertainment. (id:64974)
Quick Facts
- Property Type: Apartment (Condo)
- Bedrooms: 2 (1 above, 1 below)
- Bathrooms: 2
- Ownership: Condo/Strata
- Attached: Yes
- Parking: 1.0 space (Garage, Underground)
Listing Provided by: HOMELIFE NEW WORLD REALTY INC.
Board: Toronto Regional Real Estate Board
Data provided via CREA DDF®.
Detailed Features
Interior & Systems
- Heating: Forced air, Natural gas
- Cooling: Central air conditioning
- Basement: None
- Flooring: Laminate
Exterior & Construction
- Exterior: Concrete
Lot & Land
- Features: Balcony, Carpet Free
- View: Direct Water View
- Pool: Indoor pool, Outdoor pool
- Waterfront: Waterfront
- Water Body: Lake Ontario
Community & Neighbourhood
- Community: Pets Allowed With Restrictions
- Building: Exercise Centre, Sauna, Security/Concierge
- Neighbourhood: Waterfront Communities C1
Room Details (5 rooms)
Listing Information
Listing History
MLS listing activity for 516 - 15 QUEENS QUAY E, Toronto (Waterfront Communities), Ontario, M5E0A4 — dates reflect when changes were recorded in the DDF
🚗 Travel times
Neighborhood Walkability
Mortgage & Cost Calculators
Nearby Homes ?Nearby Homes — Search CriteriaSearch Radius1 kmPrice Range±5%Match BedroomsYesMatch BathroomsYes

222 - 15 QUEENS QUAY E, Toronto (Waterfront Communities)
Condo - Apartment$2,900/mo
Listing Courtesy of REMAX YOUR COMMUNITY REALTY

2608 - 15 QUEENS QUAY E, Toronto (Waterfront Communities)
Condo - Apartment$2,800/mo
Listing Courtesy of REAL BROKER ONTARIO LTD.

1805 - 12 YONGE STREET, Toronto (Waterfront Communities)
Condo - Apartment$2,950/mo
Listing Courtesy of RE/MAX ADVANCE REALTY

515 - 15 RICHARDSON STREET, Toronto (Waterfront Communities)
Condo - Apartment$2,850/mo
Listing Courtesy of TFN REALTY INC.

1122 - 15 RICHARDSON STREET, Toronto (Waterfront Communities)
Condo - Apartment$2,850/mo
Listing Courtesy of HOMELIFE NEW WORLD REALTY INC.

5201 - 10 YORK STREET, Toronto (Waterfront Communities)
Condo - Apartment$2,850/mo
Listing Courtesy of EASY LIST REALTY LTD.

509 - 19 GRAND TRUNK CRESCENT, Toronto (Waterfront Communities)
Condo - Apartment$2,900/mo
Listing Courtesy of LOYALTY REAL ESTATE

917 - 180 FRONT STREET E, Toronto (Moss Park)
Condo - Apartment$2,800/mo
Listing Courtesy of HOMELIFE/MIRACLE REALTY LTD

1015 - 180 FRONT STREET E, Toronto (Moss Park)
Condo - Apartment$2,888/mo
Listing Courtesy of FOREST HILL REAL ESTATE INC.

2702 - 35 PARLIAMENT STREET, Toronto (Waterfront Communities)
Condo - Apartment$2,825/mo
Listing Courtesy of CENTURY 21 ATRIA REALTY INC.
Similar Homes ?Similar Homes — Search CriteriaSearch Radius5 kmPrice Range±5%Match Home TypeYesMatch BedroomsYes

712 - 106 DOVERCOURT ROAD, Toronto (Trinity-Bellwoods)
Condo - Apartment$2,750/mo
Listing Courtesy of RIGHT AT HOME REALTY

907 - 55 REGENT PARK BOULEVARD, Toronto (Regent Park)
Condo - Apartment$2,750/mo
Listing Courtesy of HOMELIFE MAPLE LEAF REALTY LTD.

321 - 51 LOWER SIMCOE STREET, Toronto (Waterfront Communities)
Condo - Apartment$2,750/mo
Listing Courtesy of RE/MAX METROPOLIS REALTY

402 - 200 SUDBURY STREET, Toronto (Little Portugal)
Condo - Apartment$2,750/mo
Listing Courtesy of SUTTON GROUP-ADMIRAL REALTY INC.

339 - 32 STADIUM ROAD, Toronto (Niagara)
Condo - Row / Townhouse$2,750/mo
Listing Courtesy of CENTURY 21 HERITAGE GROUP LTD.

239 - 28 STADIUM ROAD, Toronto (Niagara)
Condo - Row / Townhouse$2,750/mo
Listing Courtesy of CENTURY 21 HERITAGE GROUP LTD.

721E - 576 FRONT STREET W, Toronto (Waterfront Communities)
Condo - Apartment$2,750/mo
Listing Courtesy of CHESTNUT PARK REAL ESTATE LIMITED

2515 - 55 MERCER STREET, Toronto (Waterfront Communities)
Condo - Apartment$2,750/mo
Listing Courtesy of BAY STREET GROUP INC.

309 - 8 MERCER STREET, Toronto (Waterfront Communities)
Condo - Apartment$2,750/mo
Listing Courtesy of BAY STREET GROUP INC.

225 - 4K SPADINA AVENUE, Toronto (Waterfront Communities)
Condo - Apartment$2,750/mo
Listing Courtesy of HOMELIFE LANDMARK REALTY INC.

#533 - 150 LOGAN AVENUE, Toronto (South Riverdale)
Condo - Apartment$2,750/mo
Listing Courtesy of AIMHOME REALTY INC.

#2310 - 319 JARVIS STREET, Toronto (Moss Park)
Condo - Apartment$2,750/mo
Listing Courtesy of RE/MAX REALTRON REAL REALTY TEAM

2115 - 400 ADELAIDE STREET E, Toronto (Moss Park)
Condo - Apartment$2,750/mo
Listing Courtesy of CONDOWONG REAL ESTATE INC.

2808 - 38 DAN LECKIE WAY, Toronto (Waterfront Communities)
Condo - Apartment$2,750/mo
Listing Courtesy of KELLER WILLIAMS REALTY CENTRES

1516 - 7 CARLTON STREET, Toronto (Church-Yonge Corridor)
Condo - Apartment$2,750/mo
Listing Courtesy of RE/MAX METROPOLIS REALTY
Similar Properties ?Active Comparables — Search CriteriaSearch Radius2 kmPrice Range±5%Match Home TypeYesMatch BedroomsYes

712 - 106 DOVERCOURT ROAD, Toronto (Trinity-Bellwoods)
Condo - Apartment$2,750/mo
Listing Courtesy of RIGHT AT HOME REALTY

907 - 55 REGENT PARK BOULEVARD, Toronto (Regent Park)
Condo - Apartment$2,750/mo
Listing Courtesy of HOMELIFE MAPLE LEAF REALTY LTD.

321 - 51 LOWER SIMCOE STREET, Toronto (Waterfront Communities)
Condo - Apartment$2,750/mo
Listing Courtesy of RE/MAX METROPOLIS REALTY

402 - 200 SUDBURY STREET, Toronto (Little Portugal)
Condo - Apartment$2,750/mo
Listing Courtesy of SUTTON GROUP-ADMIRAL REALTY INC.

339 - 32 STADIUM ROAD, Toronto (Niagara)
Condo - Row / Townhouse$2,750/mo
Listing Courtesy of CENTURY 21 HERITAGE GROUP LTD.

239 - 28 STADIUM ROAD, Toronto (Niagara)
Condo - Row / Townhouse$2,750/mo
Listing Courtesy of CENTURY 21 HERITAGE GROUP LTD.

721E - 576 FRONT STREET W, Toronto (Waterfront Communities)
Condo - Apartment$2,750/mo
Listing Courtesy of CHESTNUT PARK REAL ESTATE LIMITED

2515 - 55 MERCER STREET, Toronto (Waterfront Communities)
Condo - Apartment$2,750/mo
Listing Courtesy of BAY STREET GROUP INC.

309 - 8 MERCER STREET, Toronto (Waterfront Communities)
Condo - Apartment$2,750/mo
Listing Courtesy of BAY STREET GROUP INC.

225 - 4K SPADINA AVENUE, Toronto (Waterfront Communities)
Condo - Apartment$2,750/mo
Listing Courtesy of HOMELIFE LANDMARK REALTY INC.

#533 - 150 LOGAN AVENUE, Toronto (South Riverdale)
Condo - Apartment$2,750/mo
Listing Courtesy of AIMHOME REALTY INC.

#2310 - 319 JARVIS STREET, Toronto (Moss Park)
Condo - Apartment$2,750/mo
Listing Courtesy of RE/MAX REALTRON REAL REALTY TEAM

2115 - 400 ADELAIDE STREET E, Toronto (Moss Park)
Condo - Apartment$2,750/mo
Listing Courtesy of CONDOWONG REAL ESTATE INC.

2808 - 38 DAN LECKIE WAY, Toronto (Waterfront Communities)
Condo - Apartment$2,750/mo
Listing Courtesy of KELLER WILLIAMS REALTY CENTRES

1516 - 7 CARLTON STREET, Toronto (Church-Yonge Corridor)
Condo - Apartment$2,750/mo
Listing Courtesy of RE/MAX METROPOLIS REALTY

907 - 55 REGENT PARK BOULEVARD, Toronto (Regent Park)
Condo - Apartment$2,750/mo
Listing Courtesy of HOMELIFE MAPLE LEAF REALTY LTD.

2515 - 55 MERCER STREET, Toronto (Waterfront Communities)
Condo - Apartment$2,750/mo
Listing Courtesy of BAY STREET GROUP INC.

309 - 8 MERCER STREET, Toronto (Waterfront Communities)
Condo - Apartment$2,750/mo
Listing Courtesy of BAY STREET GROUP INC.

225 - 4K SPADINA AVENUE, Toronto (Waterfront Communities)
Condo - Apartment$2,750/mo
Listing Courtesy of HOMELIFE LANDMARK REALTY INC.

#2310 - 319 JARVIS STREET, Toronto (Moss Park)
Condo - Apartment$2,750/mo
Listing Courtesy of RE/MAX REALTRON REAL REALTY TEAM

2115 - 400 ADELAIDE STREET E, Toronto (Moss Park)
Condo - Apartment$2,750/mo
Listing Courtesy of CONDOWONG REAL ESTATE INC.

2011 - 252 CHURCH STREET, Toronto (Church-Yonge Corridor)
Condo - Apartment$2,790/mo
Listing Courtesy of RE/MAX WEST REALTY INC.

1405 - 284 KING STREET E, Toronto (Moss Park)
Condo - Apartment$2,800/mo
Listing Courtesy of SUTTON GROUP QUANTUM REALTY INC.

804 - 100 DALHOUSIE STREET, Toronto (Church-Yonge Corridor)
Condo - Apartment$2,800/mo
Listing Courtesy of RIGHT AT HOME REALTY

1305 - 284 KING STREET E, Toronto (Moss Park)
Condo - Apartment$2,800/mo
Listing Courtesy of RE/MAX PLUS CITY TEAM INC.

2606 - 159 DUNDAS STREET E, Toronto (Church-Yonge Corridor)
Condo - Apartment$2,800/mo
Listing Courtesy of RE/MAX REALTY SERVICES INC.

2608 - 15 QUEENS QUAY E, Toronto (Waterfront Communities)
Condo - Apartment$2,800/mo
Listing Courtesy of REAL BROKER ONTARIO LTD.

1803 - 47 MUTUAL STREET, Toronto (Church-Yonge Corridor)
Condo - Apartment$2,800/mo
Listing Courtesy of BAY STREET GROUP INC.

501 - 47 MUTUAL STREET, Toronto (Church-Yonge Corridor)
Condo - Apartment$2,800/mo
Listing Courtesy of BRAD J. LAMB REALTY 2016 INC.

917 - 180 FRONT STREET E, Toronto (Moss Park)
Condo - Apartment$2,800/mo
Listing Courtesy of HOMELIFE/MIRACLE REALTY LTD
Sold Comparables
Access to sold property data requires a registered and verified account with TRREB DDF integration.
Coming SoonRented Comparables
Access to rented property data requires a registered and verified account with TRREB DDF integration.
Coming SoonBook a Viewing
516 - 15 QUEENS QUAY E, Toronto (Waterfront Communities), Ontario, M5E0A4
