507 MISSISSAGUA STREET, Niagara-on-the-Lake (Town), Ontario, L0S1J0
MLS: X12945070 | House (Freehold)
$1,679,000


















































Property Description
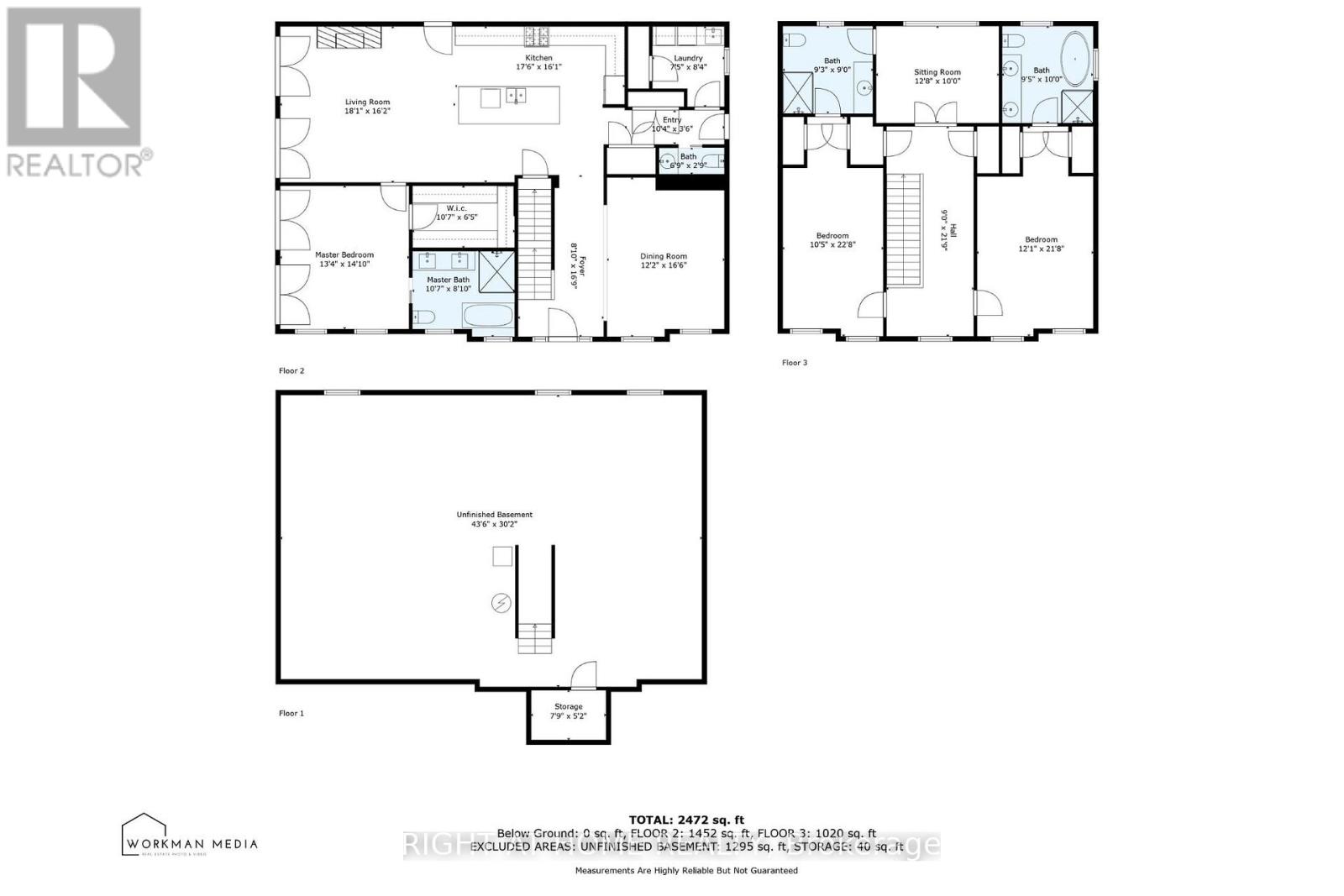
ALL DRESSED UP & WAITING! Located in the heart of wine country, a true custom-built home crafted by local high-end Builder, DFB Designs. Every inch offers the perfect blend of sophistication, charm, & space. Perfectly situated on Mississagua Street, bringing you straight into the heart of Old Town NOTL in just 2 mins. This 2-storey home has a reproduction exterior look suitable for several possibilities FAMILY HOME, B+B (FURNISHINGS CAN BE INCLUDED), RETIRED COUPLE W/ MF BEDROOM! The mf welcomes you with stunning hardwood floors & abundance of natural light. Chef's kitchen - a show-stopper designed w/ quartz countertops, custom blt tall cabinets, high-end appliances including double wide chef's refrigerator/freezer & 11ft island perfect for entertaining. Primary suite on the main level offers vaulted ceilings, W/I closet, generous 5-pc ensuite w/ dbl vanity. Living rm features architecturally detailed vaulted ceilings, cozy high-end gas fireplace, several walk-outs to the garden, while a separate dining area is spacious inviting for family gatherings. Powder rm & laundry complete main level. Upstairs, 2 adtl over-sized bedrooms w/ their own ensuites. 2nd-level den/office. Basement feat. 9-ft ceilings, framed, insulated exterior walls w/ rough-in plumbing for full bathrm, electric & gravity sump pump - plenty of potential, promising a personalized space for you & potential to bring sqft to 4300 (easy to complete - drawings available). Home is surrounded by professionally landscaped gardens & double-car garage w/ space for 6 cars. Stone interlock rear patio is crowned by a covered gazebo, w/ gas line for BBQ. Live the dream in Niagara-on-the-Lake mins to restaurants, world-class theatre, wineries, boutiques, golf & sailing club! With peaceful, small-town feel & so much to explore within walking distance, Old Town - perfect neighbourhood for history, heritage, culture, the arts, and foodies that enjoy Michelin-star type restaurants. SHOW WITH PRIDE! (id:64974)
Quick Facts
- Property Type: House (Freehold)
- Bedrooms: 3 (3 above)
- Bathrooms: 4 (1 half)
- Ownership: Freehold
- Attached: No
- Fireplaces: Yes
- Parking: 5.0 spaces (Attached Garage, Garage)
- Frontage: 49 ft (15 m)
Costs
- Annual Taxes: $8,528.58
Listing Provided by: RIGHT AT HOME REALTY
Board: Toronto Regional Real Estate Board
Data provided via CREA DDF®.
Detailed Features
Interior & Systems
- Heating: Forced air, Natural gas
- Cooling: Central air conditioning
- Basement: Unfinished, N/A
- Appliances: Washer, Refrigerator, Dishwasher, Stove, Dryer, Hood Fan, Furniture, Window Coverings, Garage door opener, Water Heater
- Flooring: Hardwood
Exterior & Construction
- Foundation: Poured Concrete
- Sewer: Sanitary sewer
- Water: Municipal water
Lot & Land
- Frontage: 49 ft (15 m)
- Features: Sump Pump
Community & Neighbourhood
- Community: Community Centre
- Neighbourhood: 101 - Town
Room Details (11 rooms)
Listing Information
Listing History
MLS listing activity for 507 MISSISSAGUA STREET, Niagara-on-the-Lake (Town), Ontario, L0S1J0 — dates reflect when changes were recorded in the DDF
🚗 Travel times
Neighborhood Walkability
Mortgage & Cost Calculators
Nearby Homes ?Nearby Homes — Search CriteriaSearch Radius1 kmPrice Range±5%Match BedroomsYesMatch BathroomsYes

507 MISSISSAGUA Street, Niagara-on-the-Lake
House$1,679,000
$8,529/yr taxListing Courtesy of Right at Home Realty

522 MISSISSAGUA ROAD, Niagara-on-the-Lake (Town)
House$900,000
$4,373/yr taxListing Courtesy of REVEL Realty Inc., Brokerage

225 ANNE STREET, Niagara-on-the-Lake (Town)
House$899,000
$5,159/yr taxListing Courtesy of RIGHT AT HOME REALTY

209 JOHN STREET, Niagara-on-the-Lake (Town)
House$2,195,000
$9,716/yr taxListing Courtesy of REVEL Realty Inc., Brokerage

UNIT 10 - 242 MARY STREET, Niagara-on-the-Lake (Town)
Other$2,000/mo
Listing Courtesy of BOSLEY REAL ESTATE LTD.,

214 MARY STREET, Niagara-on-the-Lake (Town)
House$1,190,000
$5,384/yr taxListing Courtesy of RE/MAX NIAGARA REALTY LTD, BROKERAGE

474 SIMCOE STREET, Niagara-on-the-Lake (Town)
House$2,150,000
Listing Courtesy of REVEL Realty Inc., Brokerage

158 ANNE STREET, Niagara-on-the-Lake (Town)
Row / Townhouse$900,000
$5,650/yr taxListing Courtesy of RE/MAX WEST REALTY INC.

7 WINDSOR Circle, Niagara-on-the-Lake
Condo - Row / Townhouse$799,000
$5,257/yr taxListing Courtesy of Right at Home Realty

7 WINDSOR CIRCLE, Niagara-on-the-Lake (Town)
Row / Townhouse$799,000
$5,257/yr taxListing Courtesy of RIGHT AT HOME REALTY

132 ANNE STREET, Niagara-on-the-Lake (Town)
Row / Townhouse$3,100/mo
Listing Courtesy of BOSLEY REAL ESTATE LTD.,

A7 - 7 ABERDEEN LANE S, Niagara-on-the-Lake (Town)
Condo - Row / Townhouse$1,049,000
$7,212/yr taxListing Courtesy of REVEL Realty Inc., Brokerage

35 WINDSOR CIRCLE, Niagara-on-the-Lake (Town)
Row / Townhouse$899,900
$5,097/yr taxListing Courtesy of FOREST HILL REAL ESTATE INC.

47 WINDSOR CIRCLE, Niagara-on-the-Lake (Town)
Row / Townhouse$849,999
$5,171/yr taxListing Courtesy of ROYAL LEPAGE SIGNATURE REALTY

47 WINDSOR Circle, Niagara-on-the-Lake
Row / Townhouse$849,999
$5,171/yr taxListing Courtesy of ROYAL LEPAGE SIGNATURE REALTY
Similar Homes ?Similar Homes — Search CriteriaSearch Radius5 kmPrice Range±5%Match Home TypeYesMatch BedroomsYes

507 MISSISSAGUA Street, Niagara-on-the-Lake
House$1,679,000
$8,529/yr taxListing Courtesy of Right at Home Realty

15414 NIAGARA PARKWAY, Niagara-on-the-Lake (River)
House$1,649,000
$6,600/yr taxListing Courtesy of Right At Home Realty, Brokerage

139 HATTON GARDEN ROAD, Vaughan (Vellore Village)
House$1,679,000
$7,451/yr taxListing Courtesy of RE/MAX WEST REALTY INC.

3 CHICOPEE TERRACE, Kitchener
House$1,679,000
$9,714/yr taxListing Courtesy of RE/MAX REALTY SERVICES INC.

736 GLENCAIRN AVENUE, Toronto (Englemount-Lawrence)
House$1,679,000
$8,884/yr taxListing Courtesy of CHESTNUT PARK REAL ESTATE LIMITED

7 TRISTAN COURT, Brampton (Bram West)
House$1,679,000
$12,439/yr taxListing Courtesy of GET SOLD REALTY INC.

31 PALMERSTON GARDENS, Toronto (Annex)
House$1,679,000
$7,458/yr taxListing Courtesy of CHESTNUT PARK REAL ESTATE LIMITED

3 GLENROY AVENUE, Toronto (Stonegate-Queensway)
House$1,679,000
$7,639/yr taxListing Courtesy of RE/MAX WEST REALTY INC.

3 CHICOPEE Terrace, Kitchener
House$1,679,000
$9,714/yr taxListing Courtesy of Re/Max REALTY SERVICES INC

4076 ST. FRANCIS, LaSalle
House$1,679,900
Listing Courtesy of ROYAL LEPAGE BINDER REAL ESTATE

3588 13 LINE N, Oro-Medonte
House$1,679,999
Listing Courtesy of CENTURY 21 B.J. ROTH REALTY LTD.

2 DOLBY CRESCENT, Ajax (Northeast Ajax)
House$1,679,999
$10,590/yr taxListing Courtesy of RE/MAX COMMUNITY REALTY INC.

204 IVY JAY CRESCENT, Aurora
House$1,678,000
$7,598/yr taxListing Courtesy of CENTURY 21 LEADING EDGE REALTY INC.

935545 AIRPORT ROAD, Mono
House$1,680,000
$4,500/yr taxListing Courtesy of HOMELIFE MAPLE LEAF REALTY LTD.

18 - 11 BERCZY CREEK WAY, Markham (Cachet)
Row / Townhouse$1,678,000
$7,955/yr taxListing Courtesy of RE/MAX PRIME PROPERTIES
Similar Properties ?Active Comparables — Search CriteriaSearch Radius2 kmPrice Range±5%Match Home TypeYesMatch BedroomsYes
Sold Comparables
Access to sold property data requires a registered and verified account with TRREB DDF integration.
Coming SoonRented Comparables
Access to rented property data requires a registered and verified account with TRREB DDF integration.
Coming SoonRequest a Tour
507 MISSISSAGUA STREET, Niagara-on-the-Lake (Town), Ontario, L0S1J0
