504240 GREY ROAD 1 ROAD W, Georgian Bluffs, Ontario, N0H2T0
MLS: X12932538 | House (Freehold)
$990,000

















































Property Description
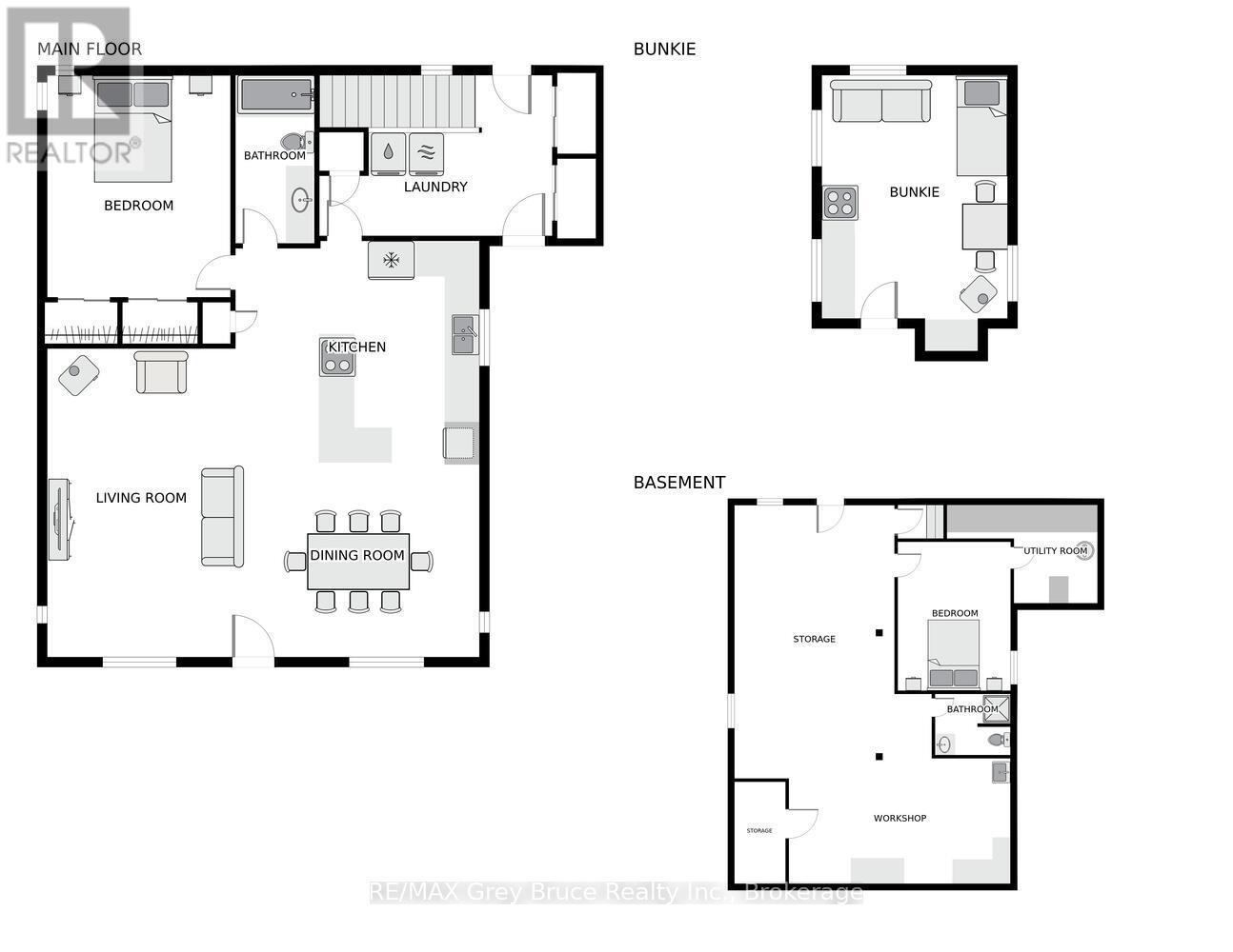
A VIEW OF GEORGIAN BAY THAT GOES FOR MILES. The panoramic views from this property are incredible, The VIEW OF ALL 3 ISLANDS. The property has so much to offer, gardens, storage sheds, trails, wildlife, is all here to be enjoyed. The home has the principal bedroom on the main floor, open concept Living room dining and kitchen area. Large walk out basement with another bedroom. There is a fully equiped Bunkie, a large storage garage area, out door firepit, pond for fishing, as well as plenty of room for family campers to come and stay. If your looking for Privacy, and your own slice of nature you must check this out! (id:64974)
Quick Facts
- Property Type: House (Freehold)
- Style: Raised bungalow
- Bedrooms: 2 (1 above, 1 below)
- Bathrooms: 2
- Ownership: Freehold
- Attached: No
- Fireplaces: Yes
- Parking: 30.0 spaces (Garage, Carport)
- Frontage: 1,442 ft (439.5 m)
Costs
- Annual Taxes: $4,384.00 (2025)
Listing Provided by: RE/MAX Grey Bruce Realty Inc.
Board: OnePoint Association of REALTORS®
Data provided via CREA DDF®.
Detailed Features
Interior & Systems
- Heating: Forced air, Not known, Not known, Oil, Wood
- Cooling: Central air conditioning
- Basement: Partial, Walk out, N/A
- Appliances: Washer, Refrigerator, Dishwasher, Stove, Oven, Dryer, Microwave
Exterior & Construction
- Style: Raised bungalow
- Exterior: Vinyl siding
- Foundation: Poured Concrete
Lot & Land
- Frontage: 1,442 ft (439.5 m)
- Features: Rolling, Guest Suite
- View: View of water
- Zoning: RU/EP
Community & Neighbourhood
- Community: Fishing
- Building: Fireplace(s)
- Neighbourhood: Georgian Bluffs
Room Details (11 rooms)
Listing Information
Listing History
MLS listing activity for 504240 GREY ROAD 1 ROAD W, Georgian Bluffs, Ontario, N0H2T0 — dates reflect when changes were recorded in the DDF
🚗 Travel times
Neighborhood Walkability
Mortgage & Cost Calculators
Similar Homes ?Similar Homes — Search CriteriaSearch Radius5 kmPrice Range±5%Match Home TypeYesMatch BedroomsYes

32 CHRISTINA Crescent, Scarborough
House$990,000
$4,675/yr taxListing Courtesy of Real Broker Ontario Ltd

1420 OAKMONT COMMON, Burlington (Tyandaga)
Row / Townhouse$990,000
$5,345/yr taxListing Courtesy of HOMELIFE/MIRACLE REALTY LTD

58 SEINE LANE, Richmond Hill
Row / Townhouse$990,000
Listing Courtesy of RE/MAX PROHOME REALTY

61 HILTON COURT, Amherstburg
House$990,000
Listing Courtesy of REMAX CAPITAL DIAMOND REALTY

6039 CASTLEGROVE COURT, Mississauga (Lisgar)
House$990,000
$5,552/yr taxListing Courtesy of ROYAL LEPAGE TERREQUITY REALTY

2874 WESTON ROAD S, Toronto (Humberlea-Pelmo Park)
House$990,000
$3,951/yr taxListing Courtesy of Royal Lepage Real Estate Associates

1109 - 100 HAYDEN STREET, Toronto (Church-Yonge Corridor)
Condo - Apartment$990,000
$4,502/yr taxListing Courtesy of RIGHT AT HOME REALTY

32 CHRISTINA CRESCENT, Toronto (Wexford-Maryvale)
House$990,000
$4,675/yr taxListing Courtesy of REAL BROKER ONTARIO LTD.

21 IVY CRESCENT, Thorold (Confederation Heights)
House$990,000
$8,508/yr taxListing Courtesy of RE/MAX NIAGARA REALTY LTD, BROKERAGE

73 BEAVERTON ROAD S, Richmond Hill (Crosby)
House$990,000
$5,358/yr taxListing Courtesy of SUTTON GROUP INCENTIVE REALTY INC.

15 AMULET CRESCENT, Richmond Hill (Rouge Woods)
Row / Townhouse$990,000
$4,990/yr taxListing Courtesy of HOMELIFE GOLCONDA REALTY INC.

2987 BUR OAK AVENUE, Markham (Cornell)
Row / Townhouse$990,000
$4,167/yr taxListing Courtesy of FIRST CLASS REALTY INC.

855A CROW LAKE ROAD, Frontenac (Frontenac Centre)
House$990,000
$7,286/yr taxListing Courtesy of RE/MAX FINEST REALTY INC., BROKERAGE

7 WEST PARK AVENUE, Bradford West Gwillimbury (Bradford)
House$990,000
$5,962/yr taxListing Courtesy of ROYAL LEPAGE REALTY PLUS

151 RIVEREDGE DRIVE, Georgina (Keswick North)
House$990,000
$5,599/yr taxListing Courtesy of AIMHOME REALTY INC.
Similar Properties ?Active Comparables — Search CriteriaSearch Radius2 kmPrice Range±5%Match Home TypeYesMatch BedroomsYes
No active comparables found in this area.
No rental comparables found in this area.
Sold Comparables
Access to sold property data requires a registered and verified account with TRREB DDF integration.
Coming SoonRented Comparables
Access to rented property data requires a registered and verified account with TRREB DDF integration.
Coming SoonBook a Viewing
504240 GREY ROAD 1 ROAD W, Georgian Bluffs, Ontario, N0H2T0
