50 HILLSIDE DRIVE, Georgian Bay (Baxter), Ontario, L0K1S0
MLS: X12539122 | House (Freehold)
$1,350,000










Property Description
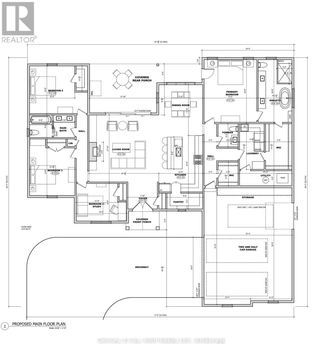
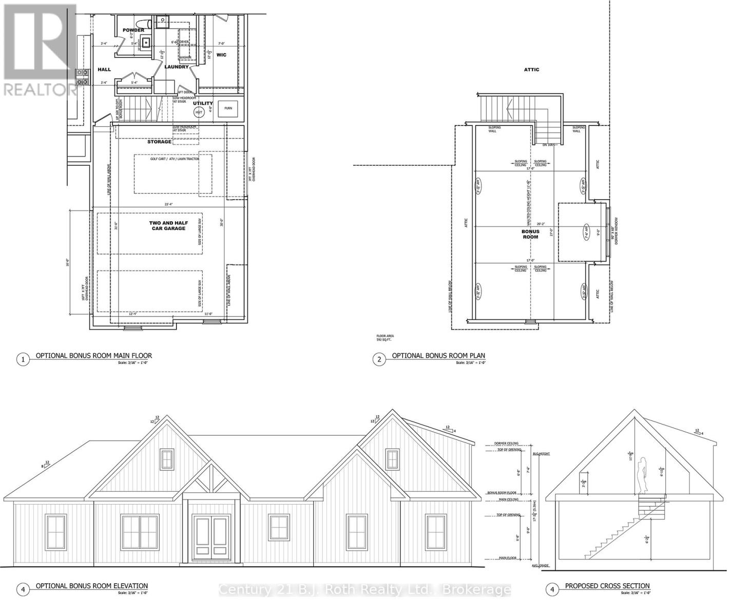
It's time to live where you play, where luxury meets leisure, perfectly situated in a growing executive Port Severn community. Full of custom features with modern architecture design on a generous lot, this to-be-built ranch home offers the ideal blend of sophisticated and active living, perfect for young families or couples seeking to downsize. Step through a welcoming, covered entrance into the spacious foyer to a home designed for comfort and elegance. The open-concept living room, kitchen, and dining area boast vaulted ceilings throughout, creating an airy and expansive feel, perfect for entertaining or relaxing with loved ones. Beyond the interior, walk out from the living and dining areas to an impressive covered back outdoor lounge, offering a private sanctuary for al fresco dining or simply unwinding amidst the tranquility of your expansive yard. Car enthusiasts and hobbyists will appreciate the 2.5-car garage, complete with a convenient single overhead door leading directly to the backyard, providing easy access for all your toys and tools.Built for ultimate comfort and efficiency, you'll enjoy in-floor radiant heating in the concrete slab foundation, plus superior insulation for year-round comfort. Enjoy Port Severn's dynamic lifestyle at the local beaches, boating in Georgian Bay and the Trent Severn, pickleball in Honey Harbour, exploring the nearby Trans-Canada Trail, skiing, and snowmobile trails. You're also within walking distance to the Oak Bay Golf Course, dining and community centre. Shop and dine locally, in Midland, Orillia, or Port Carling, or take a 1.5-hour drive to the GTA. Don't miss this rare opportunity to secure your dream home and start living your best life in 2026! (id:64974)
Quick Facts
- Property Type: House (Freehold)
- Style: Bungalow
- Bedrooms: 3 (3 above)
- Bathrooms: 4 (2 half)
- Ownership: Freehold
- Attached: No
- Fireplaces: 1
- Parking: 8 spaces (Attached Garage, Garage)
- Frontage: 175 ft (53.3 m)
Costs
- Annual Taxes: $210.00 (2024)
Listing Provided by: Century 21 B.J. Roth Realty Ltd.
Board: OnePoint Association of REALTORS®
Data provided via CREA DDF®.
Detailed Features
Interior & Systems
- Heating: Radiant heat, Other
- Cooling: Central air conditioning
- Basement: None
- Appliances: Garage door opener remote(s)
Exterior & Construction
- Style: Bungalow
- Exterior: Wood
- Foundation: Slab
- Sewer: Septic System
- Water: Drilled Well
Lot & Land
- Frontage: 175 ft (53.3 m)
- Features: Level lot, Level
- Zoning: R1
Community & Neighbourhood
- Community: Community Centre
- Neighbourhood: Baxter
Room Details (13 rooms)
Listing Information
Listing History
Buy/Sell/Terminated/Expired listing history for 50 HILLSIDE DRIVE, Georgian Bay (Baxter), Ontario, L0K1S0
Location & Neighborhood
🚗 Travel times
Neighborhood Walkability
Mortgage & Cost Calculators
Nearby Homes (Within 2km)
Similar Homes
Similar Properties
No rental comparables found in this area.
Sold Comparables
Access to sold property data requires a registered and verified account with TRREB DDF integration.
Coming SoonRented Comparables
Access to rented property data requires a registered and verified account with TRREB DDF integration.
Coming Soon
























