5 ISLAND CREEK PRIVATE, Ottawa, Ontario, K1Z1C5
MLS: X12956314 | Townhouse (Freehold)
$879,000































Property Description
Discover the freedom of owning this beautifully maintained freehold home in the heart of sought-after Westboro-perfect for buyers looking for space, style, and an unbeatable location. Step inside to a tiled entryway that opens into a spacious family room with direct access to your own private yard-ideal for relaxing or entertaining. Upstairs, enjoy a bright and airy open-concept living and dining area featuring gleaming hardwood floors, a cozy gas fireplace, and a balcony off the living room-perfect for morning coffee or evening unwinding.The sun-filled, eat-in kitchen offers plenty of space for everyday living and hosting, newer stainless steel appliances. On the third level, you'll find two generously sized bedrooms, each with its own full ensuite and ample closet space-offering comfort and privacy for everyone. A full-height basement provides abundant storage or the potential for a recreation space to suit your lifestyle. Located just minutes from Westboro Beach, the vibrant shopping strip, the Ottawa River, transit, and all the amenities this highly desirable neighbourhood has to offer-this home truly delivers on convenience and lifestyle.Don't miss your chance to live in one of the city's most coveted communities-this is Westboro living at its best! Some photos are virtually staged. (id:64974)
Quick Facts
- Property Type: Townhouse (Freehold)
- Bedrooms: 2 (2 above)
- Bathrooms: 3 (1 half)
- Ownership: Freehold
- Attached: Yes
- Fireplaces: Yes
- Parking: 1.0 space (Attached Garage, Garage)
- Frontage: 18 ft (5.5 m)
Costs
- Annual Taxes: $6,712.00 (2025)
Listing Provided by: ROYAL LEPAGE TEAM REALTY
Board: Ottawa Real Estate Board
Data provided via CREA DDF®.
Detailed Features
Interior & Systems
- Heating: Forced air, Natural gas
- Cooling: Central air conditioning
- Basement: Finished, N/A
- Appliances: Washer, Refrigerator, Dishwasher, Stove, Dryer, Garage door opener, Garage door opener remote(s)
Exterior & Construction
- Exterior: Brick
- Foundation: Poured Concrete
- Sewer: Sanitary sewer
- Water: Municipal water
Lot & Land
- Frontage: 18 ft (5.5 m)
Community & Neighbourhood
- Building: Fireplace(s)
- Neighbourhood: 5001 - Westboro North
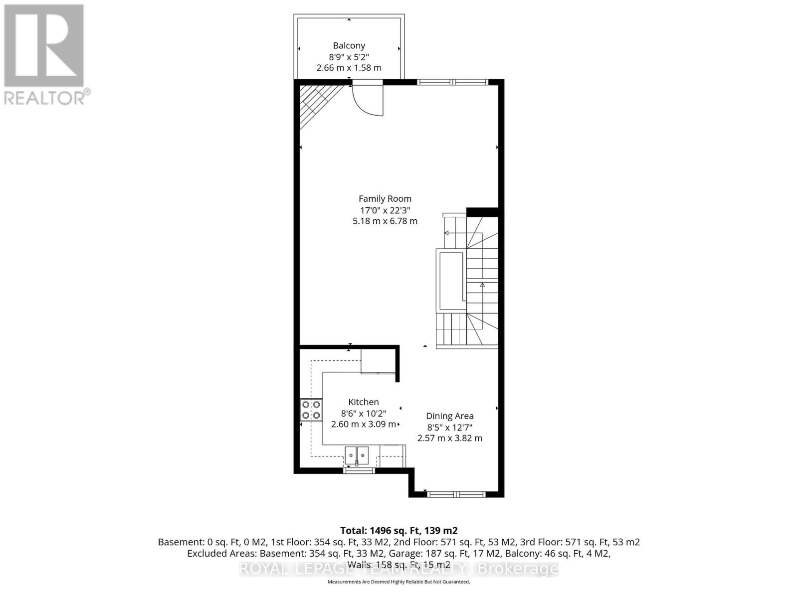
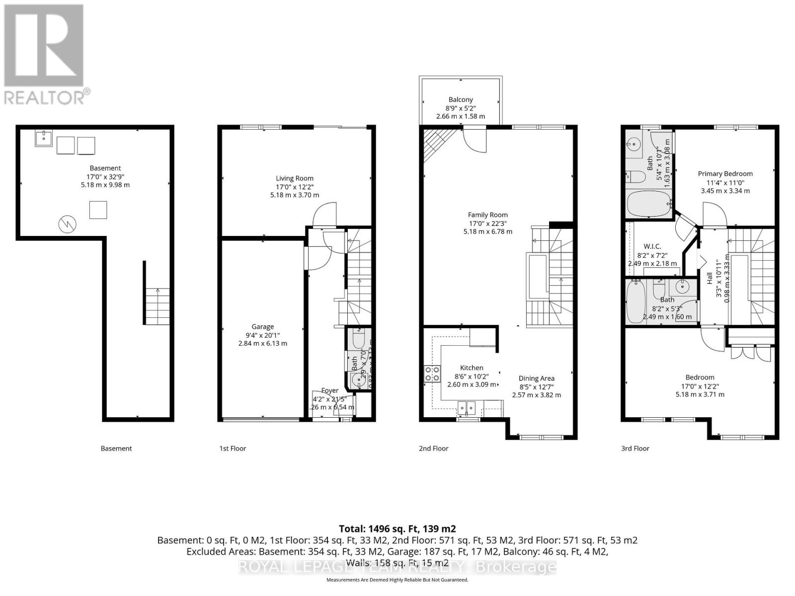
Room Details (8 rooms)
Listing Information
Listing History
MLS listing activity for 5 ISLAND CREEK PRIVATE, Ottawa, Ontario, K1Z1C5 — dates reflect when changes were recorded in the DDF
🚗 Travel times
Neighborhood Walkability
Mortgage & Cost Calculators
Nearby Homes ?Nearby Homes — Search CriteriaSearch Radius1 kmPrice Range±5%Match BedroomsYesMatch BathroomsYes

180 LANARK AVENUE, Ottawa
Condo - Row / Townhouse$1,080,000
$6,759/yr taxListing Courtesy of ENGEL & VOLKERS OTTAWA

345 TWEEDSMUIR AVENUE, Ottawa
House$1,249,900
$6,185/yr taxListing Courtesy of ROYAL LEPAGE PERFORMANCE REALTY

103 - 360 PATRICIA AVENUE, Ottawa
Condo - Apartment$349,900
$3,240/yr taxListing Courtesy of RE/MAX HALLMARK REALTY GROUP

204 - 323 WINONA AVENUE, Ottawa
Condo - Apartment$539,900
$4,904/yr taxListing Courtesy of ENGEL & VOLKERS OTTAWA

509 - 101 RICHMOND ROAD, Ottawa
Condo - Apartment$2,700/mo
Listing Courtesy of ENGEL & VOLKERS OTTAWA

208 - 101 RICHMOND ROAD, Ottawa
Condo - Apartment$329,900
$3,000/yr taxListing Courtesy of SOLID ROCK REALTY

218 - 101 RICHMOND ROAD, Ottawa
Condo - Apartment$424,800
$4,069/yr taxListing Courtesy of ENGEL & VOLKERS OTTAWA

509 - 101 RICHMOND ROAD, Ottawa
Condo - Apartment$524,900
$4,523/yr taxListing Courtesy of ENGEL & VOLKERS OTTAWA

284 CHURCHILL AVENUE N, Ottawa
House$950,000
$7,142/yr taxListing Courtesy of RIGHT AT HOME REALTY

410 - 108 RICHMOND ROAD, Ottawa
Condo - Apartment$2,000/mo
Listing Courtesy of EXP REALTY

507 - 108 RICHMOND ROAD, Ottawa
Condo - Apartment$469,000
$4,867/yr taxListing Courtesy of RE/MAX HALLMARK REALTY GROUP

206 - 98 RICHMOND ROAD, Ottawa
Condo - Apartment$689,000
$6,869/yr taxListing Courtesy of ROYAL LEPAGE TEAM REALTY

807 - 88 RICHMOND ROAD, Ottawa
Condo - Apartment$595,000
$5,051/yr taxListing Courtesy of INNOVATION REALTY LTD.

413 - 88 RICHMOND ROAD, Ottawa
Condo - Apartment$2,750/mo
Listing Courtesy of ROYAL LEPAGE PERFORMANCE REALTY

712 - 88 RICHMOND ROAD, Ottawa
Condo - Apartment$3,200/mo
Listing Courtesy of RE/MAX HALLMARK REALTY GROUP
Similar Homes ?Similar Homes — Search CriteriaSearch Radius5 kmPrice Range±5%Match Home TypeYesMatch BedroomsYes

2601 - 180 GEORGE STREET, Ottawa
Condo - Apartment$880,900
Listing Courtesy of RE/MAX HALLMARK REALTY GROUP

504 - 805 CARLING AVENUE, Ottawa
Condo - Apartment$899,900
$7,434/yr taxListing Courtesy of BENNETT PROPERTY SHOP REALTY

703 - 374 COOPER STREET, Ottawa
Condo - Apartment$849,000
$6,560/yr taxListing Courtesy of ENGEL & VOLKERS OTTAWA

27 CONNOR DRIVE, Whitchurch-Stouffville
House$879,000
$4,186/yr taxListing Courtesy of UNION CAPITAL REALTY

303 - 60 BATHURST STREET, Toronto (Niagara)
Condo - Apartment$879,000
$4,110/yr taxListing Courtesy of HOMELIFE SUPERSTARS REAL ESTATE LIMITED

3087 MISTLETOE GARDENS, Oakville (GO Glenorchy)
Row / Townhouse$879,000
$3,881/yr taxListing Courtesy of ROYAL LEPAGE REALTY CENTRE

7 - 1479 O'CONNOR DRIVE, Toronto (O'Connor-Parkview)
Condo - Row / Townhouse$879,000
Listing Courtesy of BAY STREET GROUP INC.

515 - 138 PRINCESS STREET, Toronto (Moss Park)
Condo - Apartment$879,000
$5,196/yr taxListing Courtesy of CENTURY 21 LEADING EDGE REALTY INC.

410 - 7440 BATHURST STREET, Vaughan (Brownridge)
Condo - Apartment$879,000
$3,052/yr taxListing Courtesy of RE/MAX PLUS CITY TEAM INC.

3202 - 8 YORK STREET, Toronto (Waterfront Communities)
Condo - Apartment$879,000
$3,777/yr taxListing Courtesy of RIGHT AT HOME REALTY

60 BROWNLEY LANE, Essa (Angus)
House$879,000
$3,194/yr taxListing Courtesy of RE/MAX HALLMARK CHAY REALTY

41 HARKINS ROAD, Northern Bruce Peninsula
House$879,000
$3,848/yr taxListing Courtesy of Ron Hopper Real Estate Ltd.

1912 - 8 YORK STREET, Toronto (Waterfront Communities)
Condo - Apartment$879,000
$4,751/yr taxListing Courtesy of RIGHT AT HOME REALTY

55 - 6108 CURTIS POINT ROAD, Alnwick/Haldimand
House$879,000
$4,583/yr taxListing Courtesy of RE/MAX ROUGE RIVER REALTY LTD.

13 BOOTHILL DRIVE N, Brampton (Northwest Brampton)
House$879,000
$5,847/yr taxListing Courtesy of CENTURY 21 PROPERTY ZONE REALTY INC.
Similar Properties ?Active Comparables — Search CriteriaSearch Radius2 kmPrice Range±5%Match Home TypeYesMatch BedroomsYes
No active comparables found in this area.
Sold Comparables
Access to sold property data requires a registered and verified account with TRREB DDF integration.
Coming SoonRented Comparables
Access to rented property data requires a registered and verified account with TRREB DDF integration.
Coming SoonBook a Viewing
5 ISLAND CREEK PRIVATE, Ottawa, Ontario, K1Z1C5

