5 HYLAND DRIVE, Blenheim, Ontario, N0P1A0
MLS: 25025028 | Warehouse (Freehold)
$8.00 / square feet
























Property Description
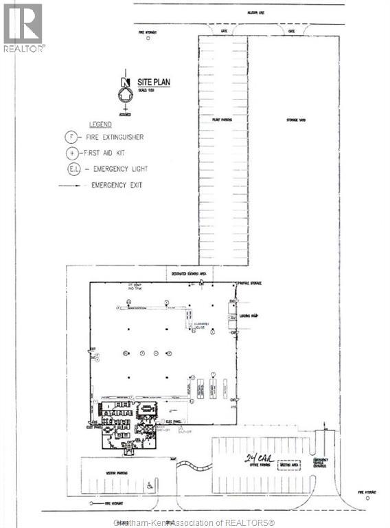
For Lease – Prime Industrial Facility in Blenheim. This outstanding property offers over 38,000 sq. ft. of versatile space, featuring 6,400 sq. ft. of office area and more than 32,000 sq. ft. of shop and warehouse space. Situated on 3.55 acres, the site includes a fully fenced and paved laydown yard, ideal for secure outdoor storage and heavy vehicle maneuvering. The building boasts 20–24 ft. ceiling heights, 2 truck-level docks, and 4 grade-level doors to ensure efficient operations. With 400-amp electrical service, the facility is well equipped to handle demanding industrial requirements. Conveniently located in the Town of Blenheim, the property provides easy access to Highway 401 and major arterial routes, making it an excellent choice for a wide range of industrial and commercial uses. This is a rare opportunity to lease a high-quality industrial space in a prime Southwestern Ontario location. Seller will sub-divide office space from warehouse area. (id:64974)
Quick Facts
- Property Type: Warehouse (Freehold)
- Bedrooms: None
- Bathrooms: None
- Year Built: 2001
- Ownership: Freehold
Costs
- Annual Taxes: $53,472.48 (2025)
Listing Provided by: RE/MAX PREFERRED REALTY LTD.
Board: Chatham Kent Association of REALTORS®
Data provided via CREA DDF®.
Detailed Features
Interior & Systems
- Heating: Forced air, Natural gas
- Cooling: Central air conditioning
Lot & Land
- Zoning: M1
Listing Information
Listing History
Buy/Sell/Terminated/Expired listing history for 5 HYLAND DRIVE, Blenheim, Ontario, N0P1A0
Location & Neighborhood
🚗 Travel times
Neighborhood Walkability
Mortgage & Cost Calculators
Similar Properties
No active comparables found in this area.
Sold Comparables
Access to sold property data requires a registered and verified account with TRREB DDF integration.
Coming SoonRented Comparables
Access to rented property data requires a registered and verified account with TRREB DDF integration.
Coming Soon














