5 - 2303 MARINE DRIVE, Oakville (BR Bronte), Ontario, L6L1C2
MLS: W12988120 | Townhouse (Freehold)
$1,249,999

















































Property Description
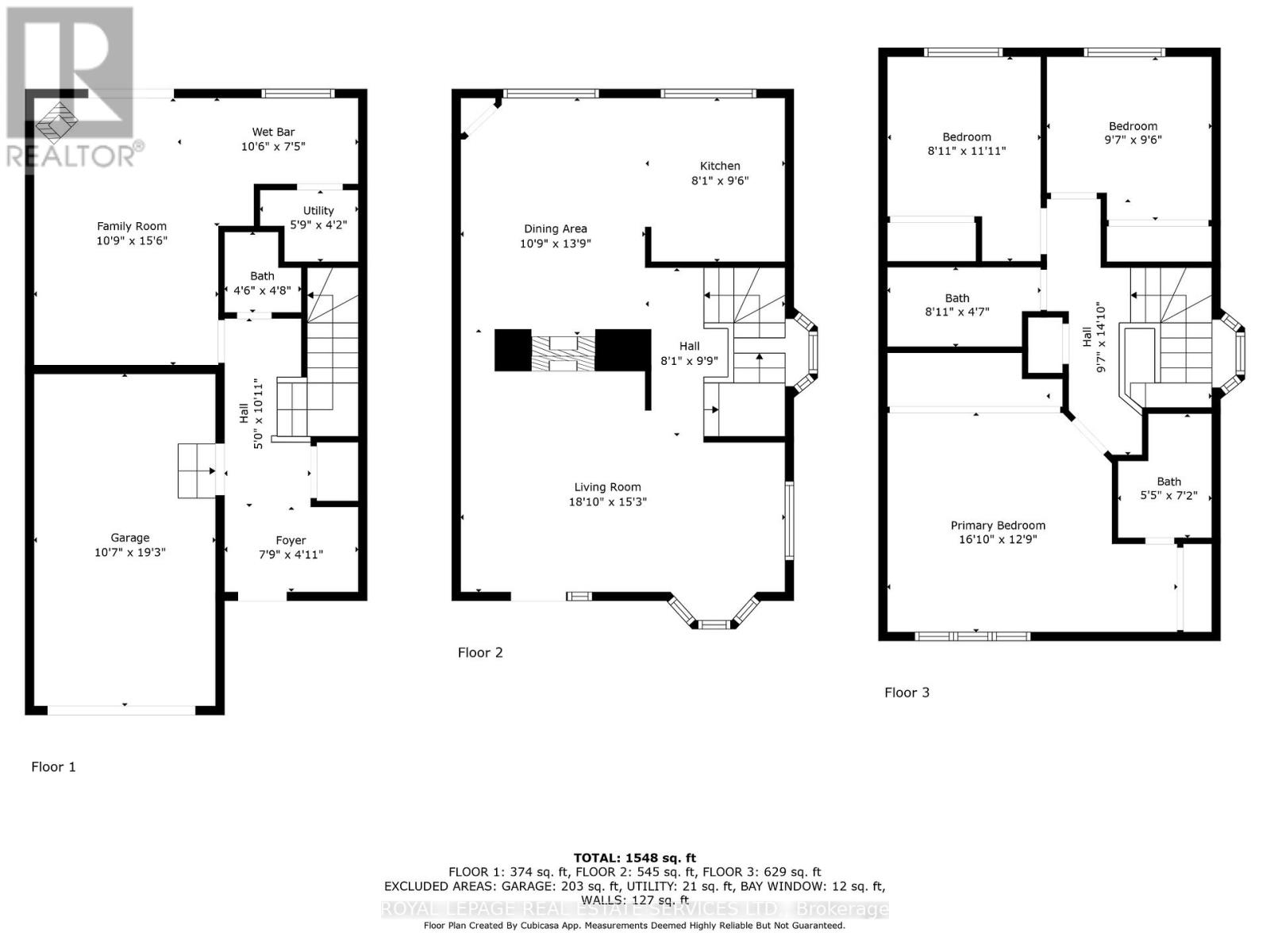
Beautiful Freehold End Unit Townhome in the Heart of Bronte. Welcome to 2303 Marine Drive, Unit5, a rare freehold end-unit townhome in the heart of Bronte Village. Just steps from the lake, marina, & the vibrant shops & restaurants of Bronte, this home offers a lifestyle that is both relaxing & connected. Unique from all the other units in the complex, this home has been extensively updated with stylish finishes & thoughtful design. A custom wood staircase, shiplap detailing, & a striking double-sided fireplace, accessible from both the living and dining rooms create warmth & character that truly set this property apart. A skylight floods the upper level with natural light, enhancing the bright, airy feel throughout. The updated kitchen (2023) features granite countertops & backsplash, while the primary suite is a true retreat with custom built-in double closets, additional storage, & a spa-inspired ensuite with heated floors. The family room is designed for entertaining with a custom bar, &the extended foyer offers an impressive welcome. Hardwood flooring, elegant window coverings, central vacuum, and an inground sprinkler system add both convenience & style. This home also offers two outdoor living spaces: a private back patio perfect for summer gatherings (2024), and a second patio above the garage with walkout access from the living room, the ideal spot for morning coffee, evening cocktails, or simply enjoying the breeze from the lake. Additional highlights include two fireplaces, quality appliances (2023), professional landscaping, an attached garage with inside entry, plus the peace of mind of a new furnace(2022), A/C (2022), tankless water heater (2022), windows (2022) and roof (2017). With just a $120/month maintenance fee, this property combines low-cost ownership with premium living. Dare to compare, this end-unit is truly one of a kind in Bronte. (id:64974)
Quick Facts
- Property Type: Townhouse (Freehold)
- Bedrooms: 3 (3 above)
- Bathrooms: 3 (1 half)
- Ownership: Freehold
- Attached: Yes
- Fireplaces: Yes
- Parking: 2.0 spaces (Garage)
- Frontage: 20 ft (6 m)
Costs
- Annual Taxes: $4,181.51
Listing Provided by: ROYAL LEPAGE REAL ESTATE SERVICES LTD.
Board: Toronto Regional Real Estate Board
Data provided via CREA DDF®.
Detailed Features
Interior & Systems
- Heating: Forced air, Natural gas
- Cooling: Central air conditioning
- Basement: Walk out, N/A
- Appliances: Washer, Refrigerator, Central Vacuum, Dishwasher, Stove, Dryer, Microwave, Window Coverings, Garage door opener, Garage door opener remote(s), Water Heater - Tankless
- Flooring: Hardwood
Exterior & Construction
- Exterior: Brick, Aluminum siding
- Foundation: Slab
- Fencing: Fenced yard
- Sewer: Sanitary sewer
- Water: Municipal water
Lot & Land
- Frontage: 20 ft (6 m)
Community & Neighbourhood
- Neighbourhood: 1001 - BR Bronte
Room Details (11 rooms)
Listing Information
Listing History
MLS listing activity for 5 - 2303 MARINE DRIVE, Oakville (BR Bronte), Ontario, L6L1C2 — dates reflect when changes were recorded in the DDF
🚗 Travel times
Neighborhood Walkability
Mortgage & Cost Calculators
Nearby Homes ?Nearby Homes — Search CriteriaSearch Radius1 kmPrice Range±5%Match BedroomsYesMatch BathroomsYes

19 - 2299 MARINE DRIVE, Oakville (BR Bronte)
Row / Townhouse$3,300/mo
Listing Courtesy of RE/MAX WEST REALTY INC.

2263 MARINE Drive Unit# 1203, Oakville
Condo - Apartment$446,000
$1,870/yr taxListing Courtesy of ROYAL LEPAGE SIGNATURE REALTY

47 NELSON STREET, Oakville (BR Bronte)
House$5,500/mo
Listing Courtesy of SUTTON GROUP REALTY SYSTEMS INC.

1203 - 2263 MARINE DRIVE, Oakville (BR Bronte)
Condo - Apartment$446,000
$1,870/yr taxListing Courtesy of ROYAL LEPAGE SIGNATURE REALTY

2224 MARINE DRIVE, Oakville (BR Bronte)
Condo - Row / Townhouse$1,084,900
$4,624/yr taxListing Courtesy of ROYAL LEPAGE REALTY PLUS OAKVILLE

1107 - 2180 MARINE DRIVE, Oakville (BR Bronte)
Condo - Apartment$1,750,000
$6,653/yr taxListing Courtesy of Sotheby's International Realty Canada, Brokerage

2386 SOVEREIGN STREET, Oakville (BR Bronte)
House$1,675,000
$4,999/yr taxListing Courtesy of ROYAL LEPAGE REAL ESTATE SERVICES LTD.

105 - 2185 MARINE DRIVE, Oakville (BR Bronte)
Condo$3,100/mo
Listing Courtesy of Royal LePage Real Estate Services Ltd., Brokerage

105 - 2185 MARINE DRIVE, Oakville (BR Bronte)
Condo$828,800
$3,856/yr taxListing Courtesy of Royal LePage Real Estate Services Ltd., Brokerage

2170 MARINE Drive Unit# 2008, Oakville
Condo - Apartment$1,688,000
$7,195/yr taxListing Courtesy of Royal LePage Burloak Real Estate Services

11 BRONTE Road Unit# 703, Oakville
Condo - Apartment$839,900
$4,382/yr taxListing Courtesy of RE/MAX Escarpment Realty Inc.

422 - 11 BRONTE ROAD, Oakville (BR Bronte)
Condo - Apartment$709,000
$3,622/yr taxListing Courtesy of PSR

201 - 11 BRONTE ROAD, Oakville (BR Bronte)
Condo - Apartment$739,000
$4,207/yr taxListing Courtesy of Right At Home Realty, Brokerage

202 - 11 BRONTE ROAD, Oakville (BR Bronte)
Condo - Apartment$2,995/mo
Listing Courtesy of ROYAL LEPAGE REALTY PLUS OAKVILLE

2170 MARINE Drive Unit# 1808, Oakville
Condo - Apartment$1,600,000
$7,111/yr taxListing Courtesy of Keller Williams Edge Realty
Similar Homes ?Similar Homes — Search CriteriaSearch Radius5 kmPrice Range±5%Match Home TypeYesMatch BedroomsYes

512 PINEDALE AVENUE, Burlington (Appleby)
House$1,249,900
$5,373/yr taxListing Courtesy of ROYAL LEPAGE REALTY PLUS OAKVILLE

431 WALKER'S LINE, Burlington (Shoreacres)
House$1,290,000
$5,752/yr taxListing Courtesy of HOMELIFE LANDMARK REALTY INC.

487 WELLINGTON CRESCENT, Oakville (WO West)
House$1,299,000
$6,143/yr taxListing Courtesy of RE/MAX ESCARPMENT REALTY INC.

339 WEIGHTON DRIVE, Oakville (WO West)
House$1,299,500
$4,000/yr taxListing Courtesy of Royal LePage Real Estate Services Ltd., Brokerage

411 BRONTE ROAD, Oakville (WO West)
House$1,299,999
$5,200/yr taxListing Courtesy of HOMELIFE/PARAMOUNT REALTY

1175 PINEGROVE Road, Oakville
House$1,199,900
$5,216/yr taxListing Courtesy of Coldwell Banker-Burnhill Realty

19 - 2019 TRAWDEN WAY, Oakville (BC Bronte Creek)
Row / Townhouse$1,199,900
$5,283/yr taxListing Courtesy of HOMELIFE SUPERSTARS REAL ESTATE LIMITED

557 TRAFFORD Crescent, Oakville
House$1,199,000
$5,024/yr taxListing Courtesy of Century 21 Miller Real Estate Ltd.

557 TRAFFORD CRESCENT, Oakville (WO West)
House$1,199,000
$5,024/yr taxListing Courtesy of CENTURY 21 MILLER REAL ESTATE LTD.

557 STONECLIFFE ROAD, Oakville (WO West)
House$1,189,000
$5,041/yr taxListing Courtesy of Royal LePage Real Estate Services Ltd., Brokerage

531 FOTHERGILL BOULEVARD, Burlington (Appleby)
House$1,188,888
$5,500/yr taxListing Courtesy of Toronto Regional Real Estate Board

531 FOTHERGILL Boulevard, Burlington
House$1,188,888
$5,500/yr taxListing Courtesy of RIGHT AT HOME REALTY BROKERAGE
Similar Properties ?Active Comparables — Search CriteriaSearch Radius2 kmPrice Range±5%Match Home TypeYesMatch BedroomsYes

411 BRONTE ROAD, Oakville (WO West)
House$1,299,999
$5,200/yr taxListing Courtesy of HOMELIFE/PARAMOUNT REALTY

557 TRAFFORD Crescent, Oakville
House$1,199,000
$5,024/yr taxListing Courtesy of Century 21 Miller Real Estate Ltd.

557 TRAFFORD CRESCENT, Oakville (WO West)
House$1,199,000
$5,024/yr taxListing Courtesy of CENTURY 21 MILLER REAL ESTATE LTD.

47 NELSON STREET, Oakville (BR Bronte)
House$5,500/mo
Listing Courtesy of SUTTON GROUP REALTY SYSTEMS INC.

19 - 2299 MARINE DRIVE, Oakville (BR Bronte)
Row / Townhouse$3,300/mo
Listing Courtesy of RE/MAX WEST REALTY INC.
Sold Comparables
Access to sold property data requires a registered and verified account with TRREB DDF integration.
Coming SoonRented Comparables
Access to rented property data requires a registered and verified account with TRREB DDF integration.
Coming SoonRequest a Tour
5 - 2303 MARINE DRIVE, Oakville (BR Bronte), Ontario, L6L1C2
