5 - 180 PORT ROBINSON ROAD, Pelham (Fonthill), Ontario, L0S1E6
MLS: X12980448 | Other (Condo)
$949,900










































Property Description
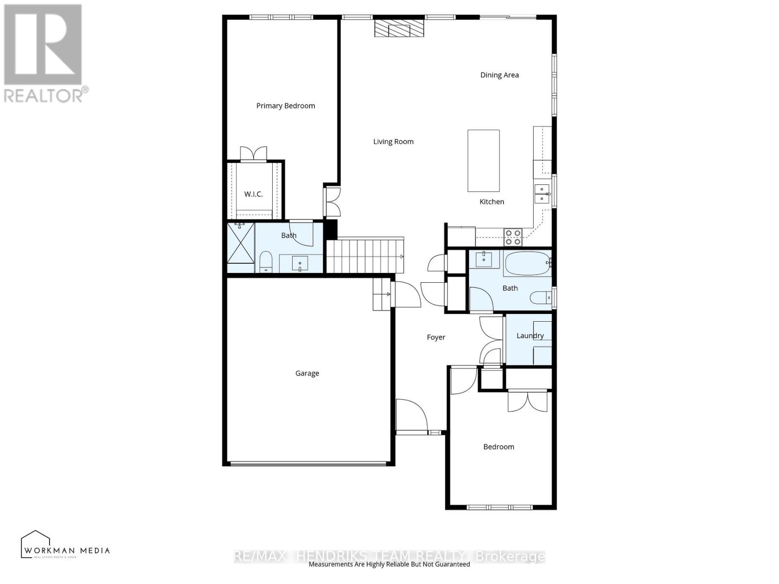
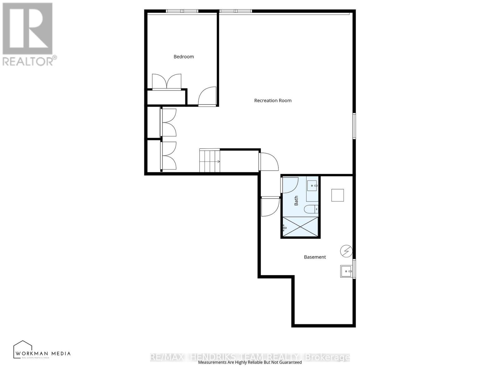
Beautifully upgraded end unit bungalow townhome by Grey Forest Homes in sought-after Fonthill. A covered porch leads into a bright foyer with coffered 10 foot ceilings, while the main floor showcases impressive 9 to 12 ft ceiling heights, wide plank engineered hardwood, high-end ceiling fans and light fixtures, and dual-function sheer blinds throughout. The front hall offers direct access into the double car garage with insulated door and LiftMaster opener.The guest bedroom, currently used as an office, features a cathedral ceiling and transom windows. Nearby is a stunningly upgraded 3pc bath with freestanding soaker tub, beautiful floor-to-ceiling tiled feature walls, and waterfall-edge vanity, along with a convenient oversized laundry closet. The living room impresses with vaulted ceilings, pot lighting, and a floor-to-ceiling stone gas fireplace. The extended kitchen features quartz counters, a waterfall island, tiled backsplash, valance lighting, and upgraded Samsung graphite appliances. Step out from the dining area to a 16x12 composite deck with power awning and gas bbq line, overlooking a lower patio area. The primary suite offers coffered ceilings, walk-in closet, and a private ensuite with quartz counters, towel storage shelving, and a glass/tiled shower with bench. An open railing staircase leads to a bright lower level featuring oversized windows, luxury vinyl plank flooring, a huge family room with home office area, a large 3rd bedroom with double closet, 3pc bath with step-in shower, and a storage room. Includes 200amp service, C/A, HRV and superior wood I-beam floor joists. Enjoy a "lock & leave" lifestyle with low-maintenance living and a minimal condo fee covering landscaping and snow removal - offering strong value compared to traditional condo fees. Visitor parking is conveniently located across from the home. A rare blend of quality construction, thoughtful upgrades, and easy living in one of Niagara's most desirable small town feel communities! (id:64974)
Quick Facts
- Property Type: Other (Condo)
- Style: Bungalow
- Bedrooms: 3 (2 above, 1 below)
- Bathrooms: 3
- Ownership: Condo/Strata
- Fireplaces: 1
- Parking: 4.0 spaces (Attached Garage, Garage)
Costs
- Annual Taxes: $7,014.00 (2026)
- Condo/HOA Fee: $297.00 / monthly
- Corp: Greenbelt Property Management Ltd.
- Includes: Common Area Maintenance, Water, Parking
Listing Provided by: RE/MAX HENDRIKS TEAM REALTY
Board: Niagara Association of REALTORS®
Data provided via CREA DDF®.
Detailed Features
Interior & Systems
- Heating: Forced air, Natural gas
- Cooling: Central air conditioning
- Basement: Finished, Full
- Appliances: Washer, Refrigerator, Dishwasher, Stove, Oven, Dryer, Microwave, Blinds, Window Coverings, Garage door opener remote(s)
Exterior & Construction
- Style: Bungalow
- Exterior: Wood, Hardboard
- Foundation: Poured Concrete
Lot & Land
- Zoning: RM1
Community & Neighbourhood
- Community: Pets Allowed With Restrictions
- Building: Fireplace(s)
- Neighbourhood: 662 - Fonthill
Room Details (8 rooms)
Listing Information
Listing History
MLS listing activity for 5 - 180 PORT ROBINSON ROAD, Pelham (Fonthill), Ontario, L0S1E6 — dates reflect when changes were recorded in the DDF
🚗 Travel times
Neighborhood Walkability
Mortgage & Cost Calculators
Nearby Homes ?Nearby Homes — Search CriteriaSearch Radius1 kmPrice Range±5%Match BedroomsYesMatch BathroomsYes

54 - 154 PORT ROBINSON ROAD, Pelham (Fonthill)
Condo - Row / Townhouse$939,900
$6,100/yr taxListing Courtesy of ROYAL LEPAGE NRC REALTY

93 - 154 PORT ROBINSON ROAD, Pelham (Fonthill)
Condo - Row / Townhouse$949,900
$6,421/yr taxListing Courtesy of ROYAL LEPAGE NRC REALTY

48 - 180 PORT ROBINSON ROAD, Pelham (Fonthill)
Condo - Row / Townhouse$829,900
$5,868/yr taxListing Courtesy of ROYAL LEPAGE NRC REALTY

92-154 PORT ROBINSON Road, Fonthill
Condo - Row / Townhouse$924,900
$5,650/yr taxListing Courtesy of Michael St. Jean Realty Inc.

29 BERGENSTEIN CRESCENT, Pelham (Fonthill)
House$829,000
$6,645/yr taxListing Courtesy of REVEL Realty Inc., Brokerage

9 MARISSA Street, Fonthill
House$774,900
$6,213/yr taxListing Courtesy of eXp Realty (Team Branch)

153G PORT ROBINSON ROAD, Pelham (Fonthill)
Condo - Row / Townhouse$906,106
Listing Courtesy of ROYAL LEPAGE NRC REALTY

153E PORT ROBINSON ROAD, Pelham (Fonthill)
Condo - Row / Townhouse$906,106
Listing Courtesy of ROYAL LEPAGE NRC REALTY

151A PORT ROBINSON ROAD, Pelham (Fonthill)
Condo - Row / Townhouse$3,700/mo
Listing Courtesy of FLYNN REAL ESTATE INC.

151 G PORT ROBINSON ROAD, Pelham (Fonthill)
Condo - Row / Townhouse$994,602
Listing Courtesy of ROYAL LEPAGE NRC REALTY

151A PORT ROBINSON ROAD, Pelham (Fonthill)
Condo - Row / Townhouse$939,900
$6,837/yr taxListing Courtesy of FLYNN REAL ESTATE INC.

88 MOODY STREET, Pelham (Fonthill)
Condo - Row / Townhouse$997,999
$6,677/yr taxListing Courtesy of ROYAL LEPAGE NRC REALTY

9 MARISSA STREET, Pelham (Fonthill)
House$774,900
$6,213/yr taxListing Courtesy of EXP REALTY

72 SAMUEL AVENUE, Pelham (Fonthill)
Row / Townhouse$599,000
Listing Courtesy of HOMELIFE/MIRACLE REALTY LTD

8 MYRTLE STREET, Pelham (Fonthill)
House$899,999
$6,724/yr taxListing Courtesy of RE/MAX ESCARPMENT REALTY INC.
Similar Homes ?Similar Homes — Search CriteriaSearch Radius5 kmPrice Range±5%Match Home TypeYesMatch BedroomsYes

93 - 154 PORT ROBINSON ROAD, Pelham (Fonthill)
Condo - Row / Townhouse$949,900
$6,421/yr taxListing Courtesy of ROYAL LEPAGE NRC REALTY

54 - 154 PORT ROBINSON ROAD, Pelham (Fonthill)
Condo - Row / Townhouse$939,900
$6,100/yr taxListing Courtesy of ROYAL LEPAGE NRC REALTY

151A PORT ROBINSON ROAD, Pelham (Fonthill)
Condo - Row / Townhouse$939,900
$6,837/yr taxListing Courtesy of FLYNN REAL ESTATE INC.

153E PORT ROBINSON ROAD, Pelham (Fonthill)
Condo - Row / Townhouse$906,106
Listing Courtesy of ROYAL LEPAGE NRC REALTY

153G PORT ROBINSON ROAD, Pelham (Fonthill)
Condo - Row / Townhouse$906,106
Listing Courtesy of ROYAL LEPAGE NRC REALTY

151 G PORT ROBINSON ROAD, Pelham (Fonthill)
Condo - Row / Townhouse$994,602
Listing Courtesy of ROYAL LEPAGE NRC REALTY
Similar Properties ?Active Comparables — Search CriteriaSearch Radius2 kmPrice Range±5%Match Home TypeYesMatch BedroomsYes

93 - 154 PORT ROBINSON ROAD, Pelham (Fonthill)
Condo - Row / Townhouse$949,900
$6,421/yr taxListing Courtesy of ROYAL LEPAGE NRC REALTY

54 - 154 PORT ROBINSON ROAD, Pelham (Fonthill)
Condo - Row / Townhouse$939,900
$6,100/yr taxListing Courtesy of ROYAL LEPAGE NRC REALTY

151A PORT ROBINSON ROAD, Pelham (Fonthill)
Condo - Row / Townhouse$939,900
$6,837/yr taxListing Courtesy of FLYNN REAL ESTATE INC.

153E PORT ROBINSON ROAD, Pelham (Fonthill)
Condo - Row / Townhouse$906,106
Listing Courtesy of ROYAL LEPAGE NRC REALTY

153G PORT ROBINSON ROAD, Pelham (Fonthill)
Condo - Row / Townhouse$906,106
Listing Courtesy of ROYAL LEPAGE NRC REALTY

151 G PORT ROBINSON ROAD, Pelham (Fonthill)
Condo - Row / Townhouse$994,602
Listing Courtesy of ROYAL LEPAGE NRC REALTY

87 RENFREW TRAIL, Welland (N. Welland)
Condo - Row / Townhouse$2,500/mo
Listing Courtesy of REVEL Realty Inc., Brokerage

77 RENFREW TRAIL, Welland (N. Welland)
Condo - Row / Townhouse$2,500/mo
Listing Courtesy of REVEL Realty Inc., Brokerage
Sold Comparables
Access to sold property data requires a registered and verified account with TRREB DDF integration.
Coming SoonRented Comparables
Access to rented property data requires a registered and verified account with TRREB DDF integration.
Coming SoonBook a Viewing
5 - 180 PORT ROBINSON ROAD, Pelham (Fonthill), Ontario, L0S1E6
