496 BROWN STREET N, South Bruce Peninsula, Ontario, N0H2T0
MLS: X12952242 | House (Freehold)
$489,500










































Property Description
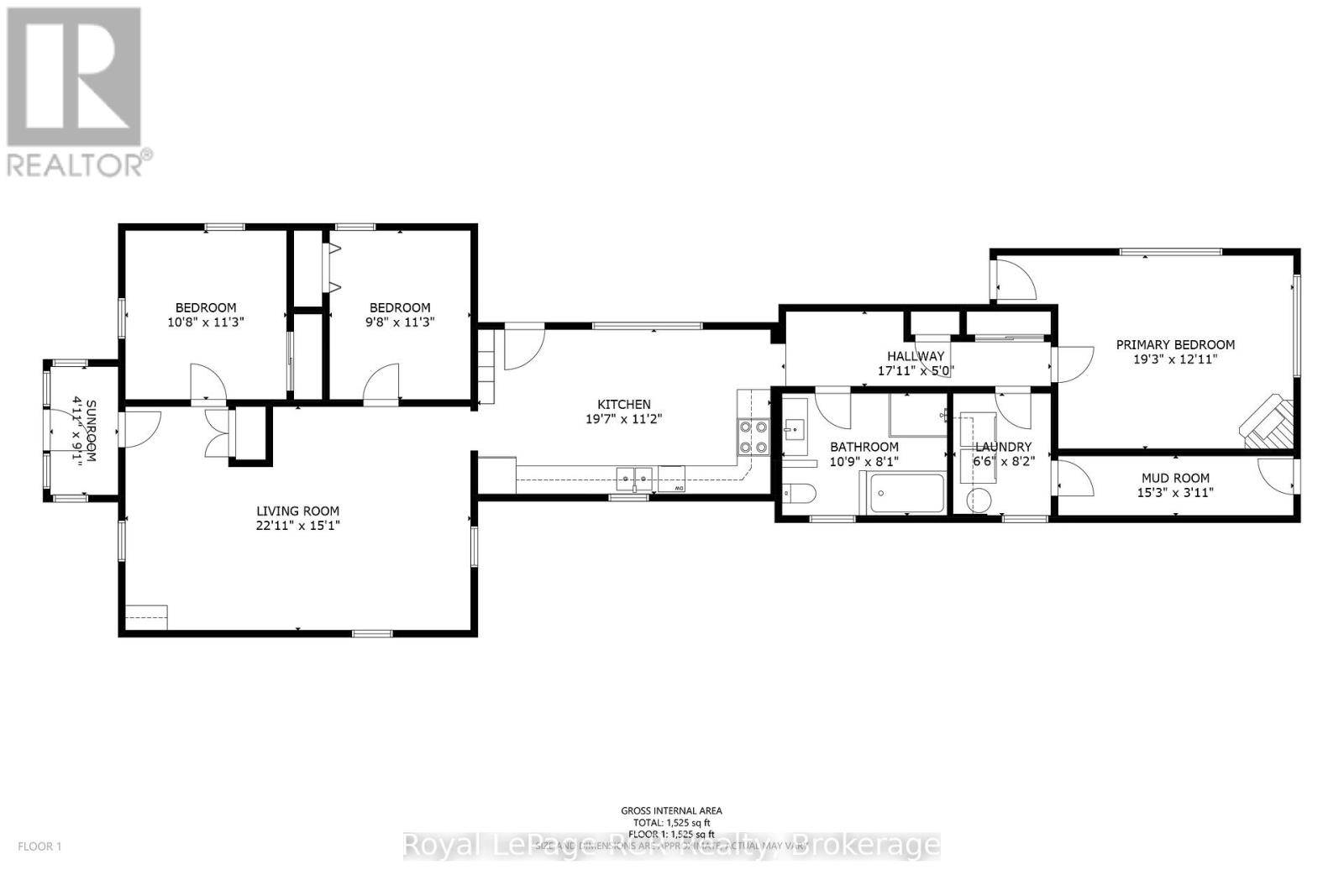
Fully Renovated & Move-In Ready: Your Wiarton Family Haven Modern Comfort Meets Bruce Peninsula Charm Step into a home where the hard work has already been done for you. This beautifully updated residence in the heart of Wiarton has been meticulously refreshed from top to bottom, offering a stylish, "turn-key" experience for the modern family. Recent Premium Upgrades & Features are a Fresh & Modern Interior: Enjoy a bright, cohesive look with new paint throughout the kitchen and living areas, complemented by new interior doors, trim, and hardware for a crisp, high-end feel and Designer Flooring: Relax in the large primary suite offering custom oak gas fireplace, brand-new luxury vinyl flooring across all living spaces-durable, waterproof, and perfect for a busy family and sandy feet from nearby Wiarton Beach. Bathroom Sanctuary: Experience a full bathroom renovation, featuring contemporary finishes that turn your morning routine into a spa-like experience. The Chef's Touch: The kitchen shines with a newly upgraded sink and faucet, plus a brand-new refrigerator, making it the true heart of the home. Energy & Comfort Upgrades: Stay cozy with upgraded baseboard heaters and enjoy the privacy of new window coverings and modern lighting throughout every room. Exterior Peace of Mind: The home is protected by brand-new eaves, soffit, and fascia, ensuring proper drainage and curb appeal. The roof is in excellent condition under 10 years old plus a Shop. Secure: Modern electronic locks on all exterior doors provide convenience and peace of mind for your family's safety. Laundry Ready: A new washer, saving you an extra trip to the appliance store. Location Highlights: Why Wiarton? Walkable Lifestyle: Stroll to the splash pad, Bluewater Park, and the shores of Colpoy's Bay also there a K-12 public School. The Bruce Trail and Sauble Beach are just minutes away. The Community: A safe, friendly environment where children can play & neighbors become lifelong friends ** This is a linked property.** (id:64974)
Quick Facts
- Property Type: House (Freehold)
- Style: Bungalow
- Bedrooms: 3 (3 above)
- Bathrooms: 1
- Ownership: Freehold
- Attached: No
- Fireplaces: Yes
- Parking: 3.0 spaces (Detached Garage, Garage)
- Frontage: 50 ft (15.2 m)
Costs
- Annual Taxes: $2,172.00 (2025)
Listing Provided by: Royal LePage RCR Realty
Board: OnePoint Association of REALTORS®
Data provided via CREA DDF®.
Detailed Features
Interior & Systems
- Heating: Baseboard heaters, Not known, Not known, Electric, Natural gas, Other
- Cooling: None
- Basement: None
- Appliances: All, Window Coverings, Water Heater
- Utilities: Sewer, Electricity, Cable
Exterior & Construction
- Style: Bungalow
- Exterior: Aluminum siding, Vinyl siding
- Foundation: Stone, Slab
- Sewer: Sanitary sewer
- Water: Municipal water
Lot & Land
- Frontage: 50 ft (15.2 m)
- View: View of water
- Zoning: R1
Community & Neighbourhood
- Community: Fishing
- Building: Separate Heating Controls
- Neighbourhood: South Bruce Peninsula
Room Details (9 rooms)
Listing Information
Listing History
MLS listing activity for 496 BROWN STREET N, South Bruce Peninsula, Ontario, N0H2T0 — dates reflect when changes were recorded in the DDF
🚗 Travel times
Neighborhood Walkability
Mortgage & Cost Calculators
Nearby Homes ?Nearby Homes — Search CriteriaSearch Radius1 kmPrice Range±5%Match BedroomsYesMatch BathroomsYes

485 BROWN STREET, South Bruce Peninsula
House$2,500/mo
Listing Courtesy of Royal Lepage Real Estate Associates

436 FRANK STREET, South Bruce Peninsula
House$349,900
$1,361/yr taxListing Courtesy of eXp Realty

514 FRANK STREET, South Bruce Peninsula
House$399,900
$1,661/yr taxListing Courtesy of ROYAL LEPAGE IGNITE REALTY

290/298 FRANK STREET, South Bruce Peninsula
House$475,000
$2,065/yr taxListing Courtesy of Lake Range Realty Ltd.

494 ISAAC STREET, South Bruce Peninsula
House$365,000
$1,962/yr taxListing Courtesy of Keller Williams Realty Centres

446 ISAAC STREET, South Bruce Peninsula
House$675,000
$1,936/yr taxListing Courtesy of Real Broker Ontario Ltd

352 BERFORD STREET, South Bruce Peninsula
House$624,900
$2,695/yr taxListing Courtesy of eXp Realty

251 WILLIAM STREET, South Bruce Peninsula
House$425,000
$1,675/yr taxListing Courtesy of Century 21 Millennium Inc.

319 GOULD STREET, South Bruce Peninsula
House$694,999
$3,624/yr taxListing Courtesy of Sutton-Sound Realty

184 DIVISION STREET, South Bruce Peninsula
House$399,000
$2,015/yr taxListing Courtesy of eXp Realty

441090 ELM STREET, Georgian Bluffs
House$765,000
$3,017/yr taxListing Courtesy of Century 21 Millennium Inc.
Similar Homes ?Similar Homes — Search CriteriaSearch Radius5 kmPrice Range±5%Match Home TypeYesMatch BedroomsYes

126 OLD MILL ROAD, Georgian Bluffs
House$479,900
$3,541/yr taxListing Courtesy of eXp Realty

290/298 FRANK STREET, South Bruce Peninsula
House$475,000
$2,065/yr taxListing Courtesy of Lake Range Realty Ltd.

1805 - 4205 SHIPP DRIVE, Mississauga (City Centre)
Condo - Apartment$489,600
$2,295/yr taxListing Courtesy of CENTURY 21 PEOPLE'S CHOICE REALTY INC.

222 - 525 NEW DUNDEE ROAD, Kitchener
Condo - Apartment$489,381
$4,097/yr taxListing Courtesy of CORCORAN HORIZON REALTY

525 NEW DUNDEE Road Unit# 222, Kitchener
Condo - Apartment$489,381
$4,097/yr taxListing Courtesy of Corcoran Horizon Realty

164 MACNAB STREET N, Hamilton (Central)
House$489,800
$4,536/yr taxListing Courtesy of REVEL REALTY INC.

164 MACNAB Street N, Hamilton
House$489,800
$4,536/yr taxListing Courtesy of Revel Realty Inc.

20 RIVEREDGE DRIVE, Georgina (Keswick North)
House$489,888
$3,348/yr taxListing Courtesy of AURA SIGNATURE REALTY INC.

530 - 21 ICEBOAT TERRACE, Toronto (Waterfront Communities)
Condo - Apartment$489,900
$3,047/yr taxListing Courtesy of RE/MAX HALLMARK FIRST GROUP REALTY LTD.

312 - 125 WILSON STREET W, Hamilton (Ancaster)
Condo - Apartment$489,900
$4,220/yr taxListing Courtesy of RE/MAX ESCARPMENT REALTY INC.

105 - 2085 APPLEBY LINE, Burlington (Uptown)
Condo - Apartment$489,900
$2,759/yr taxListing Courtesy of ROYAL LEPAGE BURLOAK REAL ESTATE SERVICES

145 COLUMBIA Street W Unit# 325, Waterloo
Condo - Apartment$489,900
$3,236/yr taxListing Courtesy of Chestnut Park Realty Southwestern Ontario Limited

402 - 69 BOYNE STREET, New Tecumseth (Alliston)
Condo - Apartment$489,900
$2,354/yr taxListing Courtesy of iCloud Realty Ltd.

1131 WRIGHT ROAD, Whitewater Region
House$489,900
$2,136/yr taxListing Courtesy of SIGNATURE TEAM REALTY LTD.

421 - 200 MANITOBA STREET, Toronto (Mimico)
Condo - Apartment$489,900
$2,345/yr taxListing Courtesy of PROPERTY.CA INC.
Similar Properties ?Active Comparables — Search CriteriaSearch Radius2 kmPrice Range±5%Match Home TypeYesMatch BedroomsYes
No rental comparables found in this area.
Sold Comparables
Access to sold property data requires a registered and verified account with TRREB DDF integration.
Coming SoonRented Comparables
Access to rented property data requires a registered and verified account with TRREB DDF integration.
Coming SoonBook a Viewing
496 BROWN STREET N, South Bruce Peninsula, Ontario, N0H2T0
