4925 TERRA BELLA DRIVE, LaSalle, Ontario, N9H0N1
MLS: X12922068 | House (Freehold)
$1,049,990






Property Description
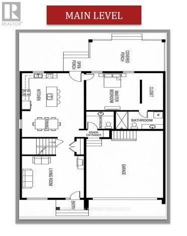
Welcome to Roseland Homes' newest design in prestigious Laurier Heights, located in LaSalle's most upscale newer neighbourhood. Surrounded by multi-million dollar homes and just steps from Seven Lakes Golf Course, this executive 2-storey semi-detached home offers approximately 2,766 sq. ft. above grade. Featuring 4 or 5 bedrooms above Grade, this thoughtfully designed layout comes with an optional 2 Spacious principal rooms W/ensuites, One being on the main floor, perfect for retires or multi-generational living. , modern finishes, and flexible living spaces make this home perfect for families seeking luxury and functionality in a prime location. Basement Fully finished With Kitchen, 2 Bedrooms and 2 bathrooms W/separate entrance. Introductory Pricing for limited time Offering 2.99% Mortgage interest rate guaranteed for 3 years. (id:64974)
Quick Facts
- Property Type: House (Freehold)
- Bedrooms: 7 (5 above, 2 below)
- Bathrooms: 6 (1 half)
- Ownership: Freehold
- Attached: Yes
- Fireplaces: Yes
- Parking: 4.0 spaces (Attached Garage, Garage)
- Frontage: 42 ft (12.8 m)
Listing Provided by: GRACE CANADA REALTY INC.
Board: Toronto Regional Real Estate Board
Data provided via CREA DDF®.
Detailed Features
Interior & Systems
- Heating: Forced air, Natural gas
- Cooling: Central air conditioning
- Basement: Finished, Full, Separate entrance, Walk-up, N/A, N/A, N/A
- Appliances: Water meter, Water Heater
Exterior & Construction
- Exterior: Brick, Stone
- Foundation: Concrete
- Sewer: Sanitary sewer
- Water: Municipal water
Lot & Land
- Frontage: 42 ft (12.8 m)
- Zoning: Residential
Community & Neighbourhood
- Community: Community Centre
- Building: Fireplace(s)
- Neighbourhood: LaSalle
Listing Information
Listing History
MLS listing activity for 4925 TERRA BELLA DRIVE, LaSalle, Ontario, N9H0N1 — dates reflect when changes were recorded in the DDF
🚗 Travel times
Neighborhood Walkability
Mortgage & Cost Calculators
Nearby Homes ?Nearby Homes — Search CriteriaSearch Radius1 kmPrice Range±5%Match BedroomsYesMatch BathroomsYes

4925 TERRA BELLA DRIVE, LaSalle
House$1,049,990
Listing Courtesy of GRACE CANADA REALTY INC.

4885 TERRA BELLA DRIVE, LaSalle
House$949,990
Listing Courtesy of GRACE CANADA REALTY INC.

4915 TERRA BELLA DRIVE, LaSalle
House$979,990
Listing Courtesy of GRACE CANADA REALTY INC.

4895 TERRA BELLA DRIVE, LaSalle
House$979,990
Listing Courtesy of GRACE CANADA REALTY INC.

4905 TERRA BELLA DRIVE, LaSalle
House$949,990
Listing Courtesy of GRACE CANADA REALTY INC.

4935 TERRA BELLA DRIVE, LaSalle
House$1,029,990
Listing Courtesy of GRACE CANADA REALTY INC.

4915 TERRA BELLA DRIVE, LaSalle
House$979,990
Listing Courtesy of GRACE CANADA REALTY INC.

4935 TERRA BELLA DRIVE, LaSalle
House$1,029,990
Listing Courtesy of GRACE CANADA REALTY INC.

4905 TERRA BELLA DRIVE, LaSalle
House$949,990
Listing Courtesy of GRACE CANADA REALTY INC.

4895 TERRA BELLA DRIVE, LaSalle
House$979,990
Listing Courtesy of GRACE CANADA REALTY INC.

4885 TERRA BELLA DRIVE, LaSalle
House$949,990
Listing Courtesy of GRACE CANADA REALTY INC.

4517 VALERIO CRESCENT, LaSalle
House$925,000
Listing Courtesy of KW SIGNATURE

4450 CATERINA CRESCENT, LaSalle
House$1,999,900
Listing Courtesy of DEERBROOK REALTY INC.

7333 MEO BLVD Unit# 111, LaSalle
Condo - Apartment$639,900
Listing Courtesy of REMAX CAPITAL DIAMOND REALTY

7333 MEO Unit# 109, LaSalle
Condo - Apartment$3,200/mo
Listing Courtesy of KEY SOLUTIONS REALTY LTD.
Similar Homes ?Similar Homes — Search CriteriaSearch Radius5 kmPrice Range±5%Match Home TypeYesMatch BedroomsYes

4925 TERRA BELLA DRIVE, LaSalle
House$1,049,990
Listing Courtesy of GRACE CANADA REALTY INC.

3851 RONALD AVENUE, Windsor
House$1,090,000
Listing Courtesy of JUMP REALTY INC.

116 WATERSHIELD RIDGE, Ottawa
House$1,049,990
$6,136/yr taxListing Courtesy of EXP REALTY

174 MAPLESIDE DRIVE, Wasaga Beach
House$1,049,990
Listing Courtesy of RE/MAX By The Bay Brokerage

1195 STIRLING TODD TERRACE, Milton (BW Bowes)
Row / Townhouse$1,049,988
Listing Courtesy of ROYAL LEPAGE FLOWER CITY REALTY

22 ASHMERE ROAD, Brampton (Fletcher's Meadow)
House$1,049,995
$5,427/yr taxListing Courtesy of RE/MAX FIND PROPERTIES

201 MCFARLANE CRESCENT, Centre Wellington (Fergus)
House$1,049,999
$7,271/yr taxListing Courtesy of RE/MAX GOLD REALTY INC.

1226 AIMEE STREET, Lakeshore
House$1,049,999
Listing Courtesy of ROYAL LEPAGE BINDER REAL ESTATE

5885 DAVEY DRIVE, Frontenac (Frontenac South)
House$1,049,999
$6,270/yr taxListing Courtesy of RE/MAX FINEST REALTY INC., BROKERAGE

1328 BUNNELL DRIVE, Burlington (Mountainside)
House$1,049,999
$5,062/yr taxListing Courtesy of RE/MAX REAL ESTATE CENTRE INC.

657 WINDHAM ROAD 14, Simcoe
House$1,049,999
$5,052/yr taxListing Courtesy of Royal LePage Trius Realty Brokerage

503 WANSBROUGH WAY, Shelburne
House$1,049,999
$6,661/yr taxListing Courtesy of ROYAL HERITAGE REALTY LTD.

5070 COUNTY RD 25, Trent Hills
House$1,049,999
$7,643/yr taxListing Courtesy of ROYAL LEPAGE PROALLIANCE REALTY

35 PLAYER DRIVE, Erin
House$1,049,999
$5,579/yr taxListing Courtesy of ROYAL LEPAGE FLOWER CITY REALTY

71 NORTH STREET, Georgina (Sutton & Jackson's Point)
House$1,049,999
$3,421/yr taxListing Courtesy of ROYAL HERITAGE REALTY LTD.
Similar Properties ?Active Comparables — Search CriteriaSearch Radius2 kmPrice Range±5%Match Home TypeYesMatch BedroomsYes
No rental comparables found in this area.
Sold Comparables
Access to sold property data requires a registered and verified account with TRREB DDF integration.
Coming SoonRented Comparables
Access to rented property data requires a registered and verified account with TRREB DDF integration.
Coming SoonRequest a Tour
4925 TERRA BELLA DRIVE, LaSalle, Ontario, N9H0N1
