49 DEREHAM DRIVE, Tillsonburg, Ontario, N4G2B1
MLS: X12830792 | House (Freehold)
$654,900
















































Property Description
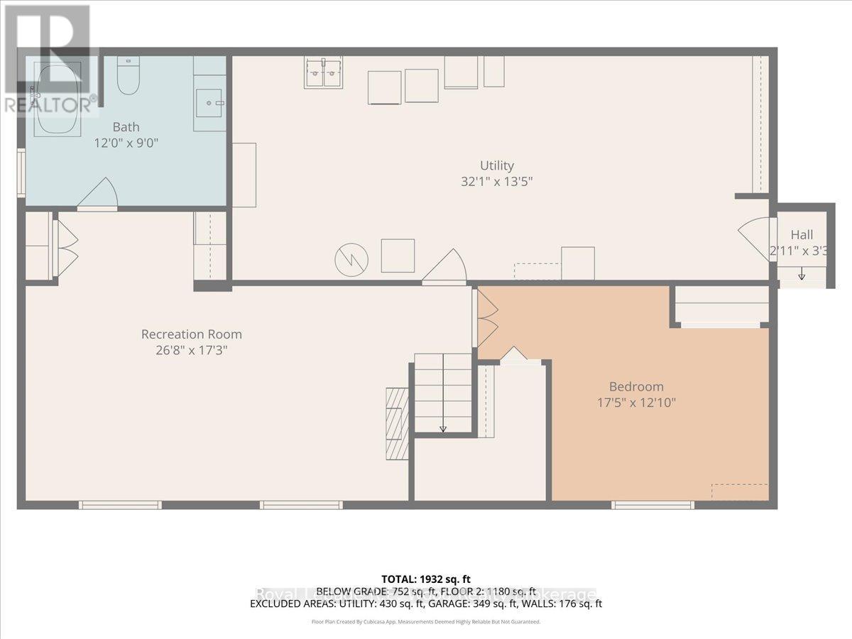
Raised bungalow in a Desirable Established Area! Nestled in a mature, family-friendly subdivision within the Westfield School District, this beautifully maintained 3+1-bed , 2 bath, is a truly move-in ready home. Situated on an oversized lot, the exterior boasts brick + vinyl siding complemented by updated soffits, fascia, eavestroughs, and shingles (2014). The curb appeal continues with landscaping, a stone walkway to the front door, paved drive, and redone retaining wall (2020) along the east side of the driveway. Inside, the entire home is carpet-free, has spacious living areas and a large renovated 4pc main bathroom, complete with an oversized walk-in shower. All windows have been replaced (2024) and a new front door (2023) adds extra curb appeal and energy efficiency. The lower level offers incredible versatility with an updated rec room, custom bar nook with built-in storage, and a gas fireplace (2024) perfect for entertaining or relaxing. A redone 3-piece bathroom completes the lower level, along with the 4th bedroom, ideal for guests or a home office. So many features have been thoughtfully updated for peace of mind, including: Furnace, water heater & water softener (2024). Natural gas fireplace (2024) Updated 200 amp panel, new garage opener, recent basement renovation, the list goes on! Step outside to enjoy the expansive rear yard, complete with a covered deck, hot tub, and natural gas hookup for your BBQ -perfect for year-round enjoyment. The attached 1-car garage is a versatile bonus, offering direct access to the kitchen, basement, and backyard-ideal for busy family life or hobbyists, or a possible in-law suite! This home blends comfort, quality, and convenience in one of the areas most desirable locations. Don't miss your chance to own a turnkey property in an established neighborhood with top-rated schools and all the modern updates already done for you! (id:64974)
Quick Facts
- Property Type: House (Freehold)
- Style: Raised bungalow
- Bedrooms: 4 (3 above, 1 below)
- Bathrooms: 2
- Ownership: Freehold
- Attached: No
- Fireplaces: 1
- Parking: 8 spaces (Attached Garage, Garage)
- Frontage: 78 ft (23.8 m)
Costs
- Annual Taxes: $3,839.00 (2025)
Listing Provided by: Royal Lepage R.E. Wood Realty Brokerage
Board: Woodstock Ingersoll Tillsonburg and Area Association of REALTORS® (WITAAR)
Data provided via CREA DDF®.
Detailed Features
Interior & Systems
- Heating: Forced air, Natural gas
- Cooling: Central air conditioning
- Basement: Partially finished, Separate entrance, N/A, N/A
- Appliances: Washer, Refrigerator, Dishwasher, Stove, Dryer, Microwave
Exterior & Construction
- Style: Raised bungalow
- Exterior: Brick, Vinyl siding
- Foundation: Concrete
- Sewer: Sanitary sewer
- Water: Municipal water
Lot & Land
- Frontage: 78 ft (23.8 m)
Community & Neighbourhood
- Building: Fireplace(s)
- Neighbourhood: Tillsonburg
Listing Information
Listing History
Buy/Sell/Terminated/Expired listing history for 49 DEREHAM DRIVE, Tillsonburg, Ontario, N4G2B1
Location & Neighborhood
🚗 Travel times
Neighborhood Walkability
Mortgage & Cost Calculators
Nearby Homes (Within 2km)
Similar Homes
Similar Properties
No rental comparables found in this area.
Sold Comparables
Access to sold property data requires a registered and verified account with TRREB DDF integration.
Coming SoonRented Comparables
Access to rented property data requires a registered and verified account with TRREB DDF integration.
Coming Soon























