483 PEIRSON AVENUE, Saugeen Shores, Ontario, N0H2C1
MLS: X12994594 | House (Freehold)
$775,000














































Property Description
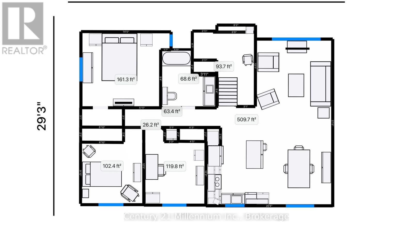
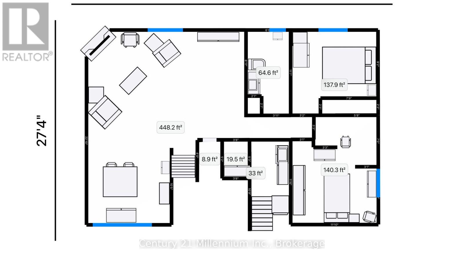
Step into a home thoughtfully designed for the way your family lives, works, and plays. Ideally located within a short walk to schools, scenic trails, beaches, downtown amenities, and the YMCA daycare, this exceptionally well-maintained property offers the perfect blend of convenience and outdoor lifestyle. The spacious foyer welcomes you into a warm and inviting main level featuring three bedrooms, including a bright primary suite with ensuite privileges and a walk-in closet. The open-concept living area is filled with natural light from oversized windows, creating a comfortable space for both everyday living and entertaining. The dining area flows seamlessly into the stylish kitchen, complete with custom soft-close cabinetry. Step outside to a 12' x 12' deck with gazebo, offering privacy and an ideal setting for summer evenings and weekend BBQs. The fully fenced rear yard features a newer garden shed, along with additional covered storage beneath the deck. Step back inside the home to the finished lower level, expanding your living space with large windows, a cozy gas fireplace, and a flexible layout-ideal for a movie night entertainment area as well as space for kids to play. Two additional bedrooms provide room to grow or can easily be used as a home office or gym. A 3-piece bathroom and generous storage areas make this level highly functional. Walk-up access to the garage adds everyday convenience, complemented by a fully insulated double garage. Additional features include a sand point watering system, a space-saving laundry room, newer furnace (2021), gas backup generator (2021), roof shingles (2020), and shed (2022). Move-in ready and thoughtfully maintained, this home is perfectly suited for an active and growing family or those looking to retire. (id:64974)
Quick Facts
- Property Type: House (Freehold)
- Style: Raised bungalow
- Bedrooms: 5 (3 above, 2 below)
- Bathrooms: 2
- Ownership: Freehold
- Attached: No
- Fireplaces: 1
- Parking: 6.0 spaces (Attached Garage, Garage)
- Frontage: 60 ft (18.3 m)
Costs
- Annual Taxes: $4,714.41
Listing Provided by: Century 21 Millennium Inc.
Board: OnePoint Association of REALTORS®
Data provided via CREA DDF®.
Detailed Features
Interior & Systems
- Heating: Forced air, Natural gas
- Cooling: Central air conditioning, Air exchanger
- Basement: Finished, Walk-up, N/A, N/A
- Appliances: Water meter
- Utilities: Electricity, Cable, Wireless
- Security: Smoke Detectors
Exterior & Construction
- Style: Raised bungalow
- Exterior: Vinyl siding, Brick Facing
- Foundation: Concrete
- Fencing: Fenced yard
- Sewer: Sanitary sewer
- Water: Municipal water
Lot & Land
- Frontage: 60 ft (18.3 m)
- Features: Level, Sump Pump
- Zoning: R1
Community & Neighbourhood
- Building: Fireplace(s)
- Neighbourhood: Saugeen Shores
Listing Information
Listing History
MLS listing activity for 483 PEIRSON AVENUE, Saugeen Shores, Ontario, N0H2C1 — dates reflect when changes were recorded in the DDF
🚗 Travel times
Neighborhood Walkability
Mortgage & Cost Calculators
Nearby Homes ?Nearby Homes — Search CriteriaSearch Radius1 kmPrice Range±5%Match BedroomsYesMatch BathroomsYes

448 BURNSIDE STREET, Saugeen Shores
House$769,900
Listing Courtesy of RE/MAX Land Exchange Ltd.

219 STICKEL STREET, Saugeen Shores
Row / Townhouse$649,900
$4,007/yr taxListing Courtesy of Royal LePage D C Johnston Realty

417 BUCKBY LANE, Saugeen Shores
House$869,000
$5,220/yr taxListing Courtesy of eXp Realty

440 PROVINCIAL STREET, Saugeen Shores
House$640,000
$4,225/yr taxListing Courtesy of Coldwell Banker Neumann Real Estate

415 WATERLOO STREET, Saugeen Shores
House$624,900
$4,187/yr taxListing Courtesy of Royal LePage RCR Realty

372 PROVINCIAL STREET, Saugeen Shores
House$599,000
$2,917/yr taxListing Courtesy of Royal LePage D C Johnston Realty

669 LOUIS STREET, Saugeen Shores
House$599,900
$2,961/yr taxListing Courtesy of Sutton-Huron Shores Realty Inc.

317 BRICKER STREET, Saugeen Shores
House$589,000
$3,548/yr taxListing Courtesy of RE/MAX Four Seasons Realty Limited

439 GREEN STREET, Saugeen Shores
House$599,000
$3,315/yr taxListing Courtesy of RE/MAX Land Exchange Ltd.

486 IVINGS Drive, Port Elgin
Row / Townhouse$689,900
$4,641/yr taxListing Courtesy of R.W. Dyer Realty Inc., Brokerage

698 GUSTAVUS STREET, Saugeen Shores
House$579,000
$3,011/yr taxListing Courtesy of Century 21 Millennium Inc.

13 - 507 ANDREW STREET, Saugeen Shores
Condo - Row / Townhouse$599,000
$4,024/yr taxListing Courtesy of RE/MAX Land Exchange Ltd.

458 MARKET STREET, Saugeen Shores
House$620,000
$3,129/yr taxListing Courtesy of Keller Williams Realty Centres

161 STICKEL STREET, Saugeen Shores
House$734,900
$4,405/yr taxListing Courtesy of RE/MAX Land Exchange Ltd.

737 GREEN STREET, Saugeen Shores
House$650,000
$3,610/yr taxListing Courtesy of RE/MAX Land Exchange Ltd.
Similar Homes ?Similar Homes — Search CriteriaSearch Radius5 kmPrice Range±5%Match Home TypeYesMatch BedroomsYes

448 BURNSIDE STREET, Saugeen Shores
House$769,900
Listing Courtesy of RE/MAX Land Exchange Ltd.

44 HARRY DOUGLAS DRIVE, Ottawa
House$775,000
$5,335/yr taxListing Courtesy of ROYAL LEPAGE INTEGRITY REALTY

2576 CHAMPLAIN ROAD, Tiny
House$775,000
$1,387/yr taxListing Courtesy of RE/MAX HALLMARK CHAY REALTY

110 - 12 WOODSTREAM BOULEVARD, Vaughan (Vaughan Grove)
Condo - Row / Townhouse$775,000
$3,019/yr taxListing Courtesy of RE/MAX WEST REALTY INC.

# 805 - 630 GREENWOOD AVENUE, Toronto (Blake-Jones)
Condo - Apartment$775,000
$3,838/yr taxListing Courtesy of SKYBOUND REALTY

1502 - 150 WELLINGTON STREET E, Guelph (Downtown)
Condo - Apartment$775,000
$5,577/yr taxListing Courtesy of Coldwell Banker Neumann Real Estate

29 WEYMOUTH Street Unit# 18, Elmira
Condo - Row / Townhouse$775,000
Listing Courtesy of Real Broker Ontario Ltd.

326 - 1 HUME STREET, Collingwood
Condo - Apartment$775,000
$3,357/yr taxListing Courtesy of Royal LePage Locations North

202 - 35 CHURCH STREET, Toronto (Church-Yonge Corridor)
Condo - Apartment$775,000
$3,122/yr taxListing Courtesy of SOTHEBY'S INTERNATIONAL REALTY CANADA

3 ALAMODE ROAD, Brampton (Sandringham-Wellington)
Condo - Row / Townhouse$775,000
$6,483/yr taxListing Courtesy of RE/MAX REAL ESTATE CENTRE INC.

1103 - 15 FORT YORK BOULEVARD, Toronto (Waterfront Communities)
Condo - Apartment$775,000
$3,265/yr taxListing Courtesy of HOMELIFE/FUTURE REALTY INC.

903 - 340 WATSON STREET W, Whitby (Port Whitby)
Condo - Apartment$775,000
$5,422/yr taxListing Courtesy of TANYA TIERNEY TEAM REALTY INC.

1002 - 23 BRANT STREET, Toronto (Waterfront Communities)
Condo - Apartment$775,000
$3,838/yr taxListing Courtesy of HOMELIFE/BAYVIEW REALTY INC.

54 RALPH DALTON BOULEVARD, Tay (Victoria Harbour)
House$775,000
$3,829/yr taxListing Courtesy of Century 21 B.J. Roth Realty Ltd

208 - 1 SHIPYARD LANE, Collingwood
Condo - Apartment$775,000
$3,917/yr taxListing Courtesy of Century 21 Millennium Inc.
Similar Properties ?Active Comparables — Search CriteriaSearch Radius2 kmPrice Range±5%Match Home TypeYesMatch BedroomsYes
No rental comparables found in this area.
Sold Comparables
Access to sold property data requires a registered and verified account with TRREB DDF integration.
Coming SoonRented Comparables
Access to rented property data requires a registered and verified account with TRREB DDF integration.
Coming SoonBook a Viewing
483 PEIRSON AVENUE, Saugeen Shores, Ontario, N0H2C1
