4812 - 10 YORK STREET, Toronto (Waterfront Communities), Ontario, M5J2Z2
MLS: C12959320 | Apartment (Condo)
$2,425 / monthly








Property Description
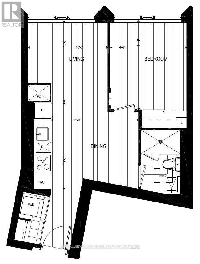
This beautifully designed 1-bedroom, 1-bathroom suite offers 582 sq. ft. of bright, open-concept living with a smart, functional layout that maximizes every inch of space. The well-defined living and dining area provides excellent flow for both everyday living and entertaining, while the modern kitchen is equipped with energy-efficient appliances, an integrated dishwasher, and sleek soft-close cabinetry. The bedroom is thoughtfully positioned for added privacy and comfortably fits a full bedroom setup, complemented by a nearby bathroom and convenient in-suite laundry. Floor-to-ceiling windows with coverings allow for abundant natural light throughout. A locker is also included for extra storage. Residents enjoy access to premium amenities such as a fitness centre, party/lounge room, and 24-hour concierge. Ideally situated in a vibrant, well-connected neighbourhood, you're just steps to transit, dining, shopping, and everyday essentials-offering the perfect blend of comfort, convenience, and urban lifestyle. (id:64974)
Quick Facts
- Property Type: Apartment (Condo)
- Bedrooms: 1 (1 above)
- Bathrooms: 1
- Ownership: Condo/Strata
- Attached: Yes
Listing Provided by: ROYAL LEPAGE VISION REALTY
Board: Toronto Regional Real Estate Board
Data provided via CREA DDF®.
Detailed Features
Interior & Systems
- Heating: Forced air, Natural gas
- Cooling: Central air conditioning
- Basement: None
- Appliances: Range, Oven - Built-In
Exterior & Construction
- Exterior: Concrete
Lot & Land
- Features: Carpet Free
- Waterfront: Waterfront
Community & Neighbourhood
- Community: Community Centre, Pets Allowed With Restrictions
- Building: Storage - Locker, Exercise Centre, Recreation Centre, Security/Concierge
- Neighbourhood: Waterfront Communities C1
Listing Information
Listing History
MLS listing activity for 4812 - 10 YORK STREET, Toronto (Waterfront Communities), Ontario, M5J2Z2 — dates reflect when changes were recorded in the DDF
🚗 Travel times
Neighborhood Walkability
Mortgage & Cost Calculators
Nearby Homes ?Nearby Homes — Search CriteriaSearch Radius1 kmPrice Range±5%Match BedroomsYesMatch BathroomsYes

5407 - 14 YORK STREET, Toronto (Waterfront Communities)
Condo - Apartment$2,350/mo
Listing Courtesy of RE/MAX ABOUTOWNE REALTY CORP.

2907 - 100 HARBOUR STREET, Toronto (Waterfront Communities)
Condo - Apartment$2,400/mo
Listing Courtesy of RE/MAX HALLMARK REALTY LTD.

3002 - 88 HARBOUR STREET, Toronto (Waterfront Communities)
Condo - Apartment$2,400/mo
Listing Courtesy of WORLD CLASS REALTY POINT

803 - 16 YONGE STREET, Toronto (Waterfront Communities)
Condo - Apartment$2,400/mo
Listing Courtesy of RIGHT AT HOME REALTY

901 - 15 QUEENS QUAY E, Toronto (Waterfront Communities)
Condo - Apartment$2,350/mo
Listing Courtesy of VALERY REAL ESTATE INC.

4205 - 28 FREELAND STREET, Toronto (Waterfront Communities)
Condo - Apartment$2,395/mo
Listing Courtesy of RE/MAX PLUS CITY TEAM INC.

1809 - 8 THE ESPLANADE, Toronto (Waterfront Communities)
Condo - Apartment$2,350/mo
Listing Courtesy of RE/MAX ATRIUM HOME REALTY

7211 - 138 DOWNES STREET, Toronto (Waterfront Communities)
Condo - Apartment$2,400/mo
Listing Courtesy of RE/MAX URBAN TORONTO TEAM REALTY INC.

414 - 2A CHURCH STREET, Toronto (Waterfront Communities)
Condo - Apartment$2,350/mo
Listing Courtesy of BAKER REAL ESTATE INCORPORATED

3813 - 35 MERCER STREET, Toronto (Waterfront Communities)
Condo - Apartment$2,350/mo
Listing Courtesy of PROMPTON REAL ESTATE SERVICES CORP.

3505 - 55 MERCER STREET, Toronto (Waterfront Communities)
Condo - Apartment$2,350/mo
Listing Courtesy of THE AGENCY

1707 - 357 KING STREET W, Toronto (Waterfront Communities)
Condo - Apartment$2,350/mo
Listing Courtesy of EXP REALTY

3813 - 87 PETER STREET, Toronto (Waterfront Communities)
Condo - Apartment$2,350/mo
Listing Courtesy of RE/MAX REALTRON JIM MO REALTY

1221 - 168 SIMCOE STREET, Toronto (Waterfront Communities)
Condo - Apartment$2,400/mo
Listing Courtesy of REAL LAND REALTY INC.

816 - 330 RICHMOND STREET W, Toronto (Waterfront Communities)
Condo - Apartment$2,350/mo
Listing Courtesy of DREAM HOME REALTY INC.
Similar Homes ?Similar Homes — Search CriteriaSearch Radius5 kmPrice Range±5%Match Home TypeYesMatch BedroomsYes

901 - 15 QUEENS QUAY E, Toronto (Waterfront Communities)
Condo - Apartment$2,350/mo
Listing Courtesy of VALERY REAL ESTATE INC.

5407 - 14 YORK STREET, Toronto (Waterfront Communities)
Condo - Apartment$2,350/mo
Listing Courtesy of RE/MAX ABOUTOWNE REALTY CORP.

1023 - 35 TUBMAN AVENUE, Toronto (Regent Park)
Condo - Apartment$2,350/mo
Listing Courtesy of REAL ESTATE HOMEWARD

3505 - 55 MERCER STREET, Toronto (Waterfront Communities)
Condo - Apartment$2,350/mo
Listing Courtesy of THE AGENCY

1610 - 111 BATHURST STREET, Toronto (Waterfront Communities)
Condo - Apartment$2,350/mo
Listing Courtesy of BAKER REAL ESTATE INCORPORATED

706 - 1030 KING STREET W, Toronto (Niagara)
Condo - Apartment$2,350/mo
Listing Courtesy of RE/MAX HALLMARK REALTY LTD.

4505 - 8 WELLESLEY STREET W, Toronto (Bay Street Corridor)
Condo - Apartment$2,350/mo
Listing Courtesy of REAL ESTATE HOMEWARD

2107 - 80 QUEENS WHARF ROAD, Toronto (Waterfront Communities)
Condo - Apartment$2,350/mo
Listing Courtesy of BAY STREET INTEGRITY REALTY INC.

1809 - 8 THE ESPLANADE, Toronto (Waterfront Communities)
Condo - Apartment$2,350/mo
Listing Courtesy of RE/MAX ATRIUM HOME REALTY

603 - 320 RICHMOND STREET E, Toronto (Moss Park)
Condo - Apartment$2,350/mo
Listing Courtesy of ROYAL LEPAGE SIGNATURE REALTY

614 - 6 PARKWOOD AVENUE, Toronto (Casa Loma)
Condo - Apartment$2,350/mo
Listing Courtesy of FOREST HILL REAL ESTATE INC.

2905 - 75 ST NICHOLAS STREET, Toronto (Bay Street Corridor)
Condo - Apartment$2,350/mo
Listing Courtesy of JDL REALTY INC.

1707 - 357 KING STREET W, Toronto (Waterfront Communities)
Condo - Apartment$2,350/mo
Listing Courtesy of EXP REALTY

PH 32 - 1 EDGEWATER DRIVE E, Toronto (Waterfront Communities)
Condo - Apartment$2,349/mo
Listing Courtesy of ROYAL CANADIAN REALTY

3611 - 75 QUEENS WHARF ROAD, Toronto (Waterfront Communities)
Condo - Apartment$2,320/mo
Listing Courtesy of HOMELIFE NEW WORLD REALTY INC.
Similar Properties ?Active Comparables — Search CriteriaSearch Radius2 kmPrice Range±5%Match Home TypeYesMatch BedroomsYes

901 - 15 QUEENS QUAY E, Toronto (Waterfront Communities)
Condo - Apartment$2,350/mo
Listing Courtesy of VALERY REAL ESTATE INC.

5407 - 14 YORK STREET, Toronto (Waterfront Communities)
Condo - Apartment$2,350/mo
Listing Courtesy of RE/MAX ABOUTOWNE REALTY CORP.

1023 - 35 TUBMAN AVENUE, Toronto (Regent Park)
Condo - Apartment$2,350/mo
Listing Courtesy of REAL ESTATE HOMEWARD

3505 - 55 MERCER STREET, Toronto (Waterfront Communities)
Condo - Apartment$2,350/mo
Listing Courtesy of THE AGENCY

1610 - 111 BATHURST STREET, Toronto (Waterfront Communities)
Condo - Apartment$2,350/mo
Listing Courtesy of BAKER REAL ESTATE INCORPORATED

706 - 1030 KING STREET W, Toronto (Niagara)
Condo - Apartment$2,350/mo
Listing Courtesy of RE/MAX HALLMARK REALTY LTD.

4505 - 8 WELLESLEY STREET W, Toronto (Bay Street Corridor)
Condo - Apartment$2,350/mo
Listing Courtesy of REAL ESTATE HOMEWARD

2107 - 80 QUEENS WHARF ROAD, Toronto (Waterfront Communities)
Condo - Apartment$2,350/mo
Listing Courtesy of BAY STREET INTEGRITY REALTY INC.

1809 - 8 THE ESPLANADE, Toronto (Waterfront Communities)
Condo - Apartment$2,350/mo
Listing Courtesy of RE/MAX ATRIUM HOME REALTY

603 - 320 RICHMOND STREET E, Toronto (Moss Park)
Condo - Apartment$2,350/mo
Listing Courtesy of ROYAL LEPAGE SIGNATURE REALTY

614 - 6 PARKWOOD AVENUE, Toronto (Casa Loma)
Condo - Apartment$2,350/mo
Listing Courtesy of FOREST HILL REAL ESTATE INC.

2905 - 75 ST NICHOLAS STREET, Toronto (Bay Street Corridor)
Condo - Apartment$2,350/mo
Listing Courtesy of JDL REALTY INC.

1707 - 357 KING STREET W, Toronto (Waterfront Communities)
Condo - Apartment$2,350/mo
Listing Courtesy of EXP REALTY

PH 32 - 1 EDGEWATER DRIVE E, Toronto (Waterfront Communities)
Condo - Apartment$2,349/mo
Listing Courtesy of ROYAL CANADIAN REALTY

3611 - 75 QUEENS WHARF ROAD, Toronto (Waterfront Communities)
Condo - Apartment$2,320/mo
Listing Courtesy of HOMELIFE NEW WORLD REALTY INC.

3611 - 75 QUEENS WHARF ROAD, Toronto (Waterfront Communities)
Condo - Apartment$2,320/mo
Listing Courtesy of HOMELIFE NEW WORLD REALTY INC.

PH 32 - 1 EDGEWATER DRIVE E, Toronto (Waterfront Communities)
Condo - Apartment$2,349/mo
Listing Courtesy of ROYAL CANADIAN REALTY

901 - 15 QUEENS QUAY E, Toronto (Waterfront Communities)
Condo - Apartment$2,350/mo
Listing Courtesy of VALERY REAL ESTATE INC.

5407 - 14 YORK STREET, Toronto (Waterfront Communities)
Condo - Apartment$2,350/mo
Listing Courtesy of RE/MAX ABOUTOWNE REALTY CORP.

3505 - 55 MERCER STREET, Toronto (Waterfront Communities)
Condo - Apartment$2,350/mo
Listing Courtesy of THE AGENCY

1610 - 111 BATHURST STREET, Toronto (Waterfront Communities)
Condo - Apartment$2,350/mo
Listing Courtesy of BAKER REAL ESTATE INCORPORATED

2107 - 80 QUEENS WHARF ROAD, Toronto (Waterfront Communities)
Condo - Apartment$2,350/mo
Listing Courtesy of BAY STREET INTEGRITY REALTY INC.

1809 - 8 THE ESPLANADE, Toronto (Waterfront Communities)
Condo - Apartment$2,350/mo
Listing Courtesy of RE/MAX ATRIUM HOME REALTY

1707 - 357 KING STREET W, Toronto (Waterfront Communities)
Condo - Apartment$2,350/mo
Listing Courtesy of EXP REALTY

1205 - 80 QUEENS WHARF ROAD, Toronto (Waterfront Communities)
Condo - Apartment$2,350/mo
Listing Courtesy of BAY STREET GROUP INC.

816 - 330 RICHMOND STREET W, Toronto (Waterfront Communities)
Condo - Apartment$2,350/mo
Listing Courtesy of DREAM HOME REALTY INC.

123 - 187 FORT YORK BOULEVARD W, Toronto (Niagara)
Condo - Apartment$2,350/mo
Listing Courtesy of ROYAL LEPAGE SIGNATURE REALTY

507 - 55 ONTARIO STREET, Toronto (Moss Park)
Condo - Apartment$2,350/mo
Listing Courtesy of BRAD J. LAMB REALTY 2016 INC.

414 - 2A CHURCH STREET, Toronto (Waterfront Communities)
Condo - Apartment$2,350/mo
Listing Courtesy of BAKER REAL ESTATE INCORPORATED

638 - 543 RICHMOND STREET W, Toronto (Waterfront Communities)
Condo - Apartment$2,350/mo
Listing Courtesy of ROYAL LEPAGE REALTY PLUS
Sold Comparables
Access to sold property data requires a registered and verified account with TRREB DDF integration.
Coming SoonRented Comparables
Access to rented property data requires a registered and verified account with TRREB DDF integration.
Coming SoonBook a Viewing
4812 - 10 YORK STREET, Toronto (Waterfront Communities), Ontario, M5J2Z2
