48 - 4165 FIELDGATE DRIVE, Mississauga (Rathwood), Ontario, L4W2M9
MLS: W12969944 | Townhouse (Condo)
$838,880











































Property Description
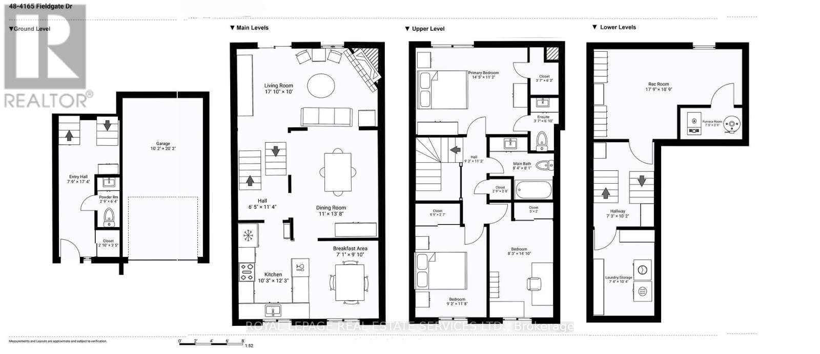
This charming 3-bedroom, 3-bath townhome is situated in the family-friendly neighbourhood of RockwoodVillage, ideally located near the Etobicoke/Mississauga border. Situated in the well-managed Fieldgate Pines complex, this spacious home is within walking distance to Shaver's Trail and Etobicoke Creek, offering a perfect blend of nature and convenience. Designed with a functional multi-level layout, the home offers exceptional space for both everyday living and entertaining. Enjoy a large family-sized eat-in kitchen, a separate formal dining room overlooking a sun-filled living room with lovely cathedral ceilings, floor-to-ceiling windows, and a cozy brick wood-burning fireplace. A walkout from here leads to a rare, private, fully fenced backyard complete with patio and perennial gardens-an ideal outdoor pet friendly retreat. The upper level features three generously sized bedrooms, including a large primary suite with a walk-in closet and 2-piece ensuite, along with a renovated main bath. The finished lower level provides versatile additional living space-perfect for a rec room, home office, or play area-plus a separate laundry room with additional storage. Close to top-rated schools, multiple parks & trails, shopping, dining, public transit, and major highways, this is an exceptional chance to join this unbeatable close knit community! Don't miss it! (id:64974)
Quick Facts
- Property Type: Townhouse (Condo)
- Style: Multi-level
- Bedrooms: 3 (3 above)
- Bathrooms: 3 (2 half)
- Ownership: Condo/Strata
- Attached: Yes
- Fireplaces: Yes
- Parking: 2.0 spaces (Garage)
Costs
- Annual Taxes: $4,776.45 (2025)
- Condo/HOA Fee: $601.79 / monthly
- Corp: Maple Ridge Community Management
- Includes: Common Area Maintenance, Cable TV, Water, Insurance, Parking
Listing Provided by: ROYAL LEPAGE REAL ESTATE SERVICES LTD.
Board: Toronto Regional Real Estate Board
Data provided via CREA DDF®.
Detailed Features
Interior & Systems
- Heating: Forced air, Natural gas
- Cooling: Central air conditioning
- Basement: Finished, N/A
- Appliances: Washer, Refrigerator, Stove, Dryer, Garage door opener remote(s)
- Flooring: Carpeted, Ceramic
Exterior & Construction
- Style: Multi-level
- Exterior: Wood, Brick
- Fencing: Fenced yard
Community & Neighbourhood
- Community: Pets Allowed With Restrictions
- Building: Fireplace(s), Visitor Parking
- Neighbourhood: Rathwood
Room Details (9 rooms)
Listing Information
Listing History
Buy/Sell/Terminated/Expired listing history for 48 - 4165 FIELDGATE DRIVE, Mississauga (Rathwood), Ontario, L4W2M9
Location & Neighborhood
🚗 Travel times
Neighborhood Walkability
Mortgage & Cost Calculators
Nearby Homes (Within 2km)
Similar Homes
Similar Properties
No rental comparables found in this area.
Sold Comparables
Access to sold property data requires a registered and verified account with TRREB DDF integration.
Coming SoonRented Comparables
Access to rented property data requires a registered and verified account with TRREB DDF integration.
Coming Soon
























