474828 TOWNSEND LAKE ROAD, West Grey, Ontario, N0C1H0
MLS: X12700952 | House
$699,000















































Property Description
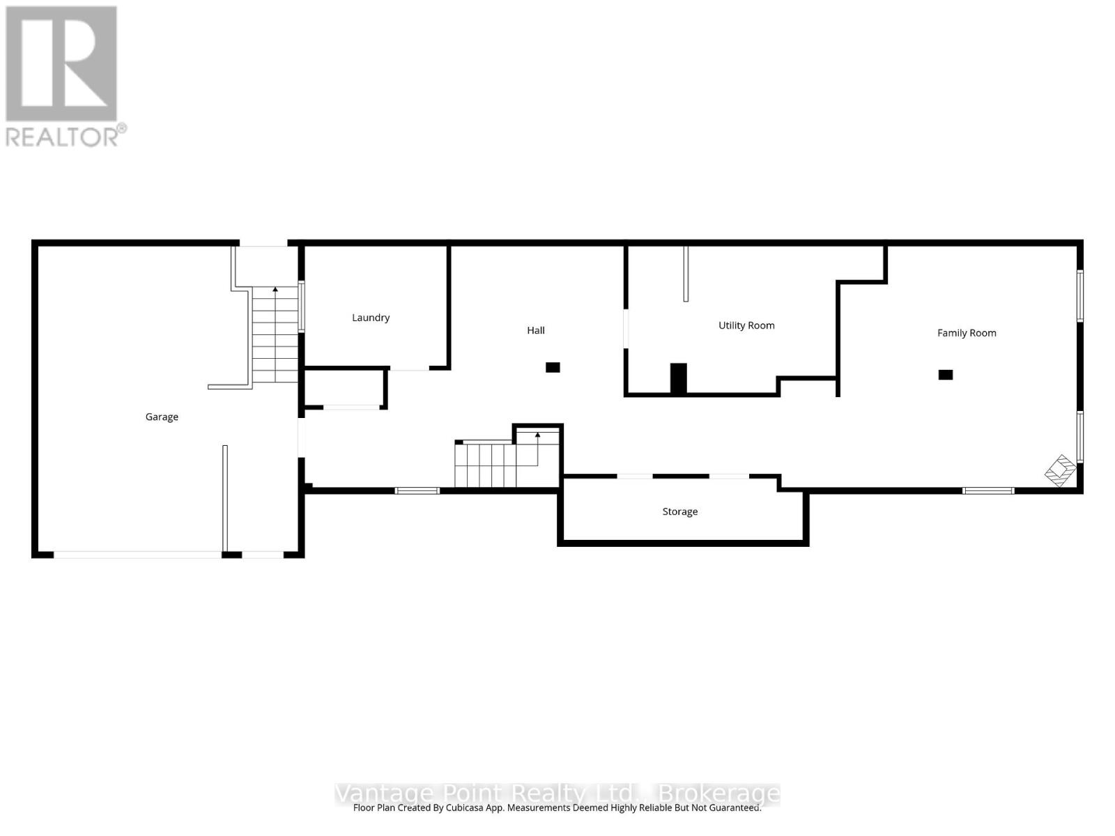
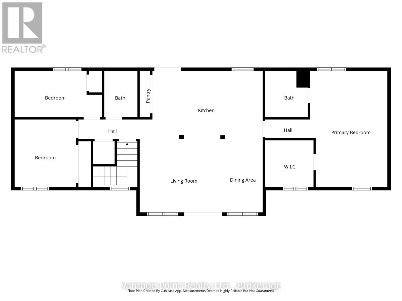
Set high on a gentle rise and surrounded by mature trees, this private retreat offers serene water views of Townsend Lake and a peaceful country atmosphere. Thoughtfully laid out, this move-in-ready 3-bedroom, 2-bath home is ideal as a full-time residence or a four-season getaway. The bright, open-concept main level is enhanced by vaulted ceilings and expansive windows that frame the lake beyond. A beautifully designed kitchen anchors the space, featuring stainless steel appliances, a spacious island, and a distinctive etched-glass pantry door. Step out to the private rear deck to enjoy quiet mornings overlooking the open land, or relax on the front deck while taking in the lake views, both ideal spaces for entertaining. The massive primary bedroom includes a walk-in closet and a 4-piece ensuite, while two additional bedrooms share a well-appointed main bath. The walk-out lower level provides direct access to the spacious garage and offers a generous family room, bonus room, laundry facilities, and ample storage. An asphalt driveway leads to the home, offering easy access and plenty of parking. With privacy created by surrounding trees and natural landscaping, this property delivers a true sense of seclusion while remaining close to recreation. Just a short walk to public access at Townsend Lake and a short drive to Bell's Lake, with nearby golf courses, ATV and snowmobile trails, and cross-country skiing, this is an exceptional opportunity to enjoy relaxed lakeside living year-round. (id:64974)
Quick Facts
- Property Type: House
- Style: Raised bungalow
- Bedrooms: 3 (3 above)
- Bathrooms: 2
- Fireplaces: 1
- Parking: 11 spaces (Attached Garage, Garage)
- Frontage: 99 ft (30.2 m)
Costs
- Annual Taxes: $3,280.24
Listing Provided by: Vantage Point Realty Ltd.
Board: OnePoint Association of REALTORS®
Data provided via CREA DDF®.
Detailed Features
Interior & Systems
- Heating: Forced air, Propane
- Cooling: None
- Basement: Partially finished, Walk out, N/A, N/A
- Appliances: Washer, Refrigerator, Stove, Dryer, Water Treatment
- Utilities: Electricity, Cable
Exterior & Construction
- Style: Raised bungalow
- Exterior: Wood, Vinyl siding
- Foundation: Block
- Sewer: Septic System
- Water: Drilled Well
Lot & Land
- Frontage: 99 ft (30.2 m)
- Features: Sloping, Flat site, Country residential
- Zoning: A3
Community & Neighbourhood
- Building: Fireplace(s)
- Neighbourhood: West Grey
Listing Information
Listing History
Buy/Sell/Terminated/Expired listing history for 474828 TOWNSEND LAKE ROAD, West Grey, Ontario, N0C1H0
Location & Neighborhood
🚗 Travel times
Neighborhood Walkability
Mortgage & Cost Calculators
Similar Homes
Similar Properties
No rental comparables found in this area.
Sold Comparables
Access to sold property data requires a registered and verified account with TRREB DDF integration.
Coming SoonRented Comparables
Access to rented property data requires a registered and verified account with TRREB DDF integration.
Coming Soon
















