47 ROBINSON STREET E, Bayham (Port Burwell), Ontario, N0J1T0
MLS: X12173277 | Vacant Land
$159,900








Property Description
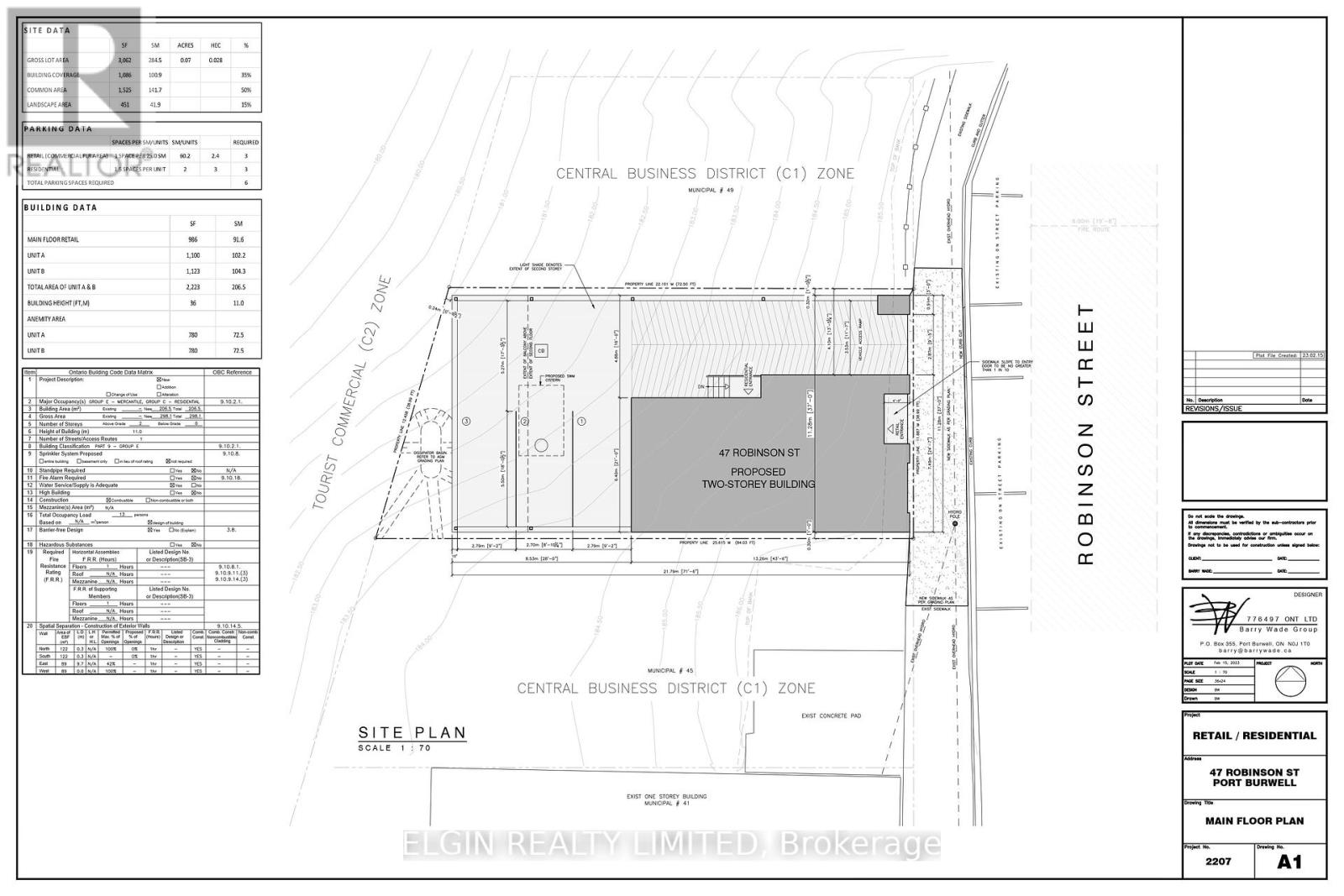
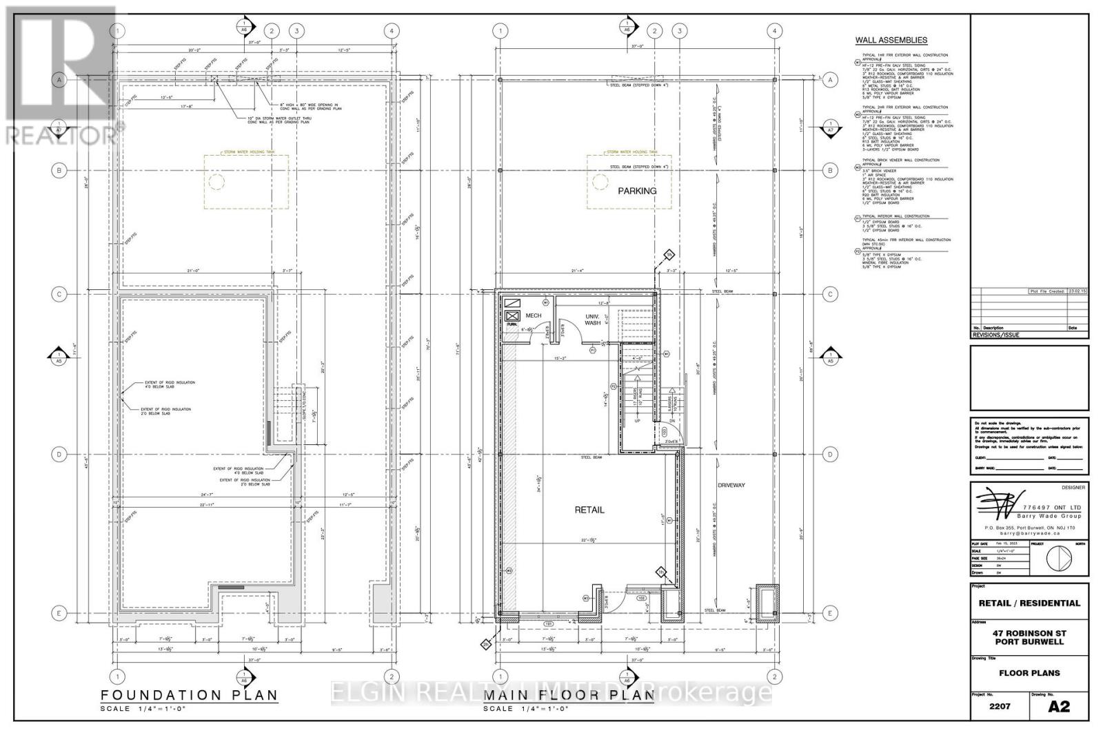
Looking to live where you work? This vacant C-1 lot in downtown Port Burwell presents an exceptional opportunity for building a home and establishing a business in a highly visible area. The large lot overlooks Otter Creek, offering a great view of the Ojibwa submarine, which is a popular attraction at the Museum of Naval History. The seller has drawings for a multi-unit residential/commercial development that are ready to be stamped for a permit. Permitted uses for the lot include a variety of commercial and residential options, such as animal clinics, auction sales facilities, financial institutions, bakeries, hotels, restaurants, retail stores, and residential units, among others. The property has access to municipal water, hydro, and gas. Downtown Port Burwell is a high-traffic area in a growing and desirable beach community. It features a large public beach, marinas, a provincial park, a campground, and a dog park nearby. Seller is willing to do a vendor take-back. (id:64974)
Quick Facts
- Property Type: Vacant Land
- Bedrooms: None
- Bathrooms: None
- Living Area: 3,154 sq ft (293.0 m²)
- Frontage: 44 ft (13.4 m)
Costs
- Annual Taxes: $955.18
Listing Provided by: ELGIN REALTY LIMITED
Board: London and St. Thomas Association of REALTORS®
Data provided via CREA DDF®.
Detailed Features
Exterior & Construction
- Water: Municipal water
Lot & Land
- Frontage: 44 ft (13.4 m)
- Zoning: C-1
Community & Neighbourhood
- Neighbourhood: Port Burwell
Listing Information
Listing History
Buy/Sell/Terminated/Expired listing history for 47 ROBINSON STREET E, Bayham (Port Burwell), Ontario, N0J1T0
Location & Neighborhood
🚗 Travel times
Neighborhood Walkability
Mortgage & Cost Calculators
Nearby Homes (Within 2km)
Similar Homes
Similar Properties
No rental comparables found in this area.
Sold Comparables
Access to sold property data requires a registered and verified account with TRREB DDF integration.
Coming SoonRented Comparables
Access to rented property data requires a registered and verified account with TRREB DDF integration.
Coming Soon











