4662 DUNDAS STREET W, Toronto (Edenbridge-Humber Valley), Ontario, M9A1A6
MLS: W12889128 | House (Freehold)
$2,249,900


















































Property Description
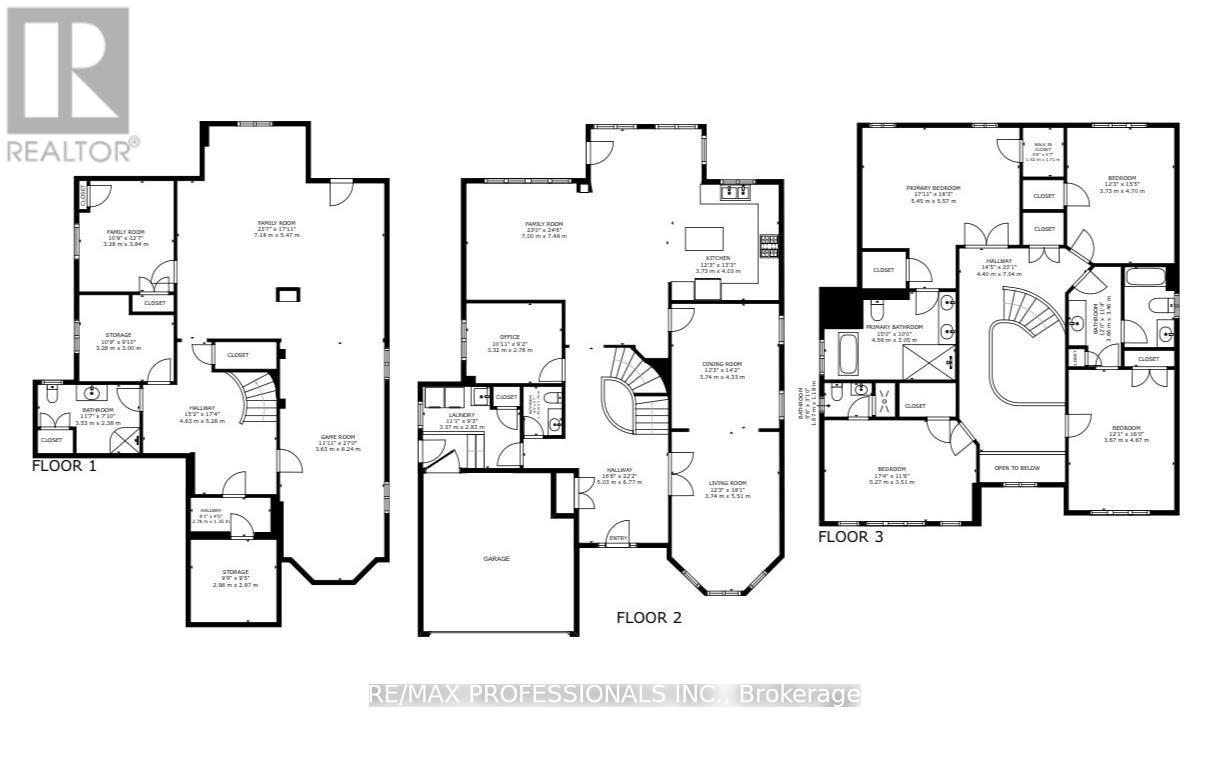
A perfect family home on a large (50 x 150) lot in the desirable Chestnut Hills neighbourhood. This 4 Bedroom home is meticulously maintained and has been in the same family for 25 years. Built in 2000, this custom all-brick home boasts over 3200 of above grade sq feet + 1500 sq feet in the lower level. The main floor features hardwood flooring throughout, a welcoming foyer with spiral oak staircase, *9 ft ceilings, formal dining and living room, a separate office/den(+) and large open concept kitchen & family room overlooking the landscaped yard with towering/mature trees. Powder room and large laundry area on main floor with exits to garage and side yard. The upper level features 4 large bedrooms + 3 full bathrooms. The primary bedroom w/ his and hers walk-in closets and a 5-piece ensuite bathroom with heated flooring. The 2nd and 3rd bedrooms feature large closets and access to a large jack and jill 4-piece washroom. The 4th bedroom w/ 3 piece ensuite bathroom - perfect for guests/ in-law or nanny suite. A functional and efficient layout! (see floor plan and virtual tour) The lower level was professionally finished - the perfect man cave! Large rec room/family room area + games room + walk-out to yard, *8 ft ceilings, additional bedroom with closet, large 3 piece washroom, cold room with sump pump + tons of storage space! *New (2024) Heat Pump- efficient duel system heat & ac + furnace. *All updated insulation in Attic (2024) Conveniently located on Dundas and does sit back from the road offering a large 8+ car driveway with stamped concrete walkways. The setting in the backyard is stunning with large/mature trees, custom three-tiered deck, sand box, fully fenced and landscaped. Located in the luxurious Edenbridge/Humber Valley Community and nestled in the catchment of one of the best school districts in the GTA - close to Our Lady of Sorrows, Kingsway College School, ECI and more. Close to Humbertown Park and Shops, quick access to TTC and GO Transit & more! (id:64974)
Quick Facts
- Property Type: House (Freehold)
- Bedrooms: 6 (4 above, 2 below)
- Bathrooms: 5 (1 half)
- Ownership: Freehold
- Attached: No
- Parking: 10.0 spaces (Attached Garage, Garage)
- Frontage: 50 ft (15.2 m)
Costs
- Annual Taxes: $12,163.00
Listing Provided by: RE/MAX PROFESSIONALS INC.
Board: Toronto Regional Real Estate Board
Data provided via CREA DDF®.
Detailed Features
Interior & Systems
- Heating: Heat Pump, Forced air, Not known, Electric, Natural gas
- Cooling: Central air conditioning
- Basement: Finished, Walk out, N/A
- Appliances: Washer, Refrigerator, Central Vacuum, Dishwasher, Stove, Dryer, Hood Fan, Furniture, Window Coverings, Garage door opener remote(s), Water Heater
- Flooring: Hardwood, Laminate, Ceramic
Exterior & Construction
- Exterior: Brick
- Foundation: Block, Concrete
- Sewer: Sanitary sewer
- Water: Municipal water
Lot & Land
- Frontage: 50 ft (15.2 m)
- Features: Carpet Free, Sump Pump
Community & Neighbourhood
- Neighbourhood: Edenbridge-Humber Valley
Room Details (13 rooms)
Listing Information
Listing History
MLS listing activity for 4662 DUNDAS STREET W, Toronto (Edenbridge-Humber Valley), Ontario, M9A1A6 — dates reflect when changes were recorded in the DDF
🚗 Travel times
Neighborhood Walkability
Mortgage & Cost Calculators
Nearby Homes ?Nearby Homes — Search CriteriaSearch Radius1 kmPrice Range±5%Match BedroomsYesMatch BathroomsYes

LOWER - 4673 DUNDAS STREET W, Toronto (Kingsway South)
House$1,950/mo
Listing Courtesy of RE/MAX PROFESSIONALS INC.

4 OLD OAK ROAD, Toronto (Kingsway South)
House$3,999,999
$15,685/yr taxListing Courtesy of ROYAL LEPAGE WEST REALTY GROUP LTD.

11 CHESTNUT HILLS PARKWAY, Toronto (Edenbridge-Humber Valley)
House$3,898,000
$16,258/yr taxListing Courtesy of ROYAL LEPAGE TERREQUITY REALTY

85 ALLANBROOKE DRIVE, Toronto (Kingsway South)
House$2,000/mo
Listing Courtesy of RE/MAX WEST REALTY INC.

4625 DUNDAS STREET W, Toronto (Kingsway South)
House$1,398,000
$6,711/yr taxListing Courtesy of RE/MAX PROFESSIONALS INC.

2B FAIRWAY ROAD, Toronto (Princess-Rosethorn)
House$3,448,000
$5,806/yr taxListing Courtesy of RE/MAX PROFESSIONALS INC.

96 MONTGOMERY ROAD, Toronto (Kingsway South)
House$3,498,000
$15,429/yr taxListing Courtesy of ROYAL LEPAGE REAL ESTATE SERVICES LTD.

1 LOYALIST ROAD, Toronto (Kingsway South)
House$1,319,300
$6,764/yr taxListing Courtesy of RE/MAX PROFESSIONALS INC.

B - 47 HIGHGATE ROAD, Toronto (Kingsway South)
Other$2,250/mo
Listing Courtesy of REAL BROKER ONTARIO LTD.

601 - 1320 ISLINGTON AVENUE, Toronto (Islington-City Centre West)
Condo - Apartment$699,000
$3,936/yr taxListing Courtesy of SUTTON GROUP OLD MILL REALTY INC.

1005 - 1320 ISLINGTON AVENUE, Toronto (Islington-City Centre West)
Condo - Apartment$799,995
$3,182/yr taxListing Courtesy of ROYAL LEPAGE REAL ESTATE SERVICES LTD.

3 WESTROSE AVENUE, Toronto (Kingsway South)
House$2,985,000
$14,207/yr taxListing Courtesy of RIGHT AT HOME REALTY

2004 - 1300 ISLINGTON AVENUE, Toronto (Islington-City Centre West)
Condo - Apartment$698,000
$3,393/yr taxListing Courtesy of ROYAL LEPAGE REAL ESTATE SERVICES LTD.

2405 - 1300 ISLINGTON AVENUE, Toronto (Islington-City Centre West)
Condo - Apartment$3,150/mo
Listing Courtesy of SUTTON GROUP OLD MILL REALTY INC.

1609 - 1300 ISLINGTON AVENUE, Toronto (Islington-City Centre West)
Condo - Apartment$3,200/mo
Listing Courtesy of ROYAL LEPAGE REAL ESTATE SERVICES LTD.
Similar Homes ?Similar Homes — Search CriteriaSearch Radius5 kmPrice Range±5%Match Home TypeYesMatch BedroomsYes

23 WHITE BIRCH ROAD, Toronto (Birchcliffe-Cliffside)
House$2,249,900
$11,854/yr taxListing Courtesy of BOSLEY REAL ESTATE LTD.

5721 MARION STREET, Thames Centre
House$2,249,900
$4,089/yr taxListing Courtesy of BLUE FOREST REALTY INC.

023181 ERIN EAST GARAFRAXA TOWNLINE, East Garafraxa
House$2,249,900
$9,176/yr taxListing Courtesy of RE/MAX REAL ESTATE CENTRE INC.

662 FOSS ROAD, Pelham (Fenwick)
House$2,249,900
$5,708/yr taxListing Courtesy of PEAK GROUP REALTY LTD.

668 MANSFIELD AVENUE, Ottawa
Single Family$2,249,900
$8,145/yr taxListing Courtesy of RE/MAX HALLMARK REALTY GROUP

206 ELMWOOD CRESCENT, Milton (OM Old Milton)
House$2,249,900
$7,400/yr taxListing Courtesy of Toronto Regional Real Estate Board

24 CAYUGA AVENUE, Mississauga (Port Credit)
House$2,249,900
$10,732/yr taxListing Courtesy of RE/MAX ESCARPMENT REALTY INC.

45 TORGAN TRAIL, Vaughan (Kleinburg)
House$2,249,990
$9,811/yr taxListing Courtesy of RIGHT AT HOME REALTY

3081 BEACHWOOD DRIVE, Selwyn
House$2,250,000
$9,438/yr taxListing Courtesy of ROYAL LEPAGE FRANK REAL ESTATE

2909 BRIGHAM ROAD, Middlesex Centre
House$2,250,000
$12,214/yr taxListing Courtesy of SUTTON GROUP PREFERRED REALTY INC.

77A KENORA STREET, Ottawa
House$2,250,000
$12,894/yr taxListing Courtesy of RE/MAX HALLMARK REALTY GROUP

110 Lakeside Crescent, Kenora
Single Family$2,250,000
$10,210/yr taxListing Courtesy of RE/MAX NORTHWEST REALTY LTD.

1002 - 61 ST CLAIR AVENUE W, Toronto (Yonge-St. Clair)
Condo - Apartment$2,250,000
$9,162/yr taxListing Courtesy of SOTHEBY'S INTERNATIONAL REALTY CANADA

16 SEIFERT COURT, Cambridge
House$2,250,000
$13,172/yr taxListing Courtesy of REAL BROKER ONTARIO LTD.

1105 HUYCK'S POINT ROAD, Prince Edward County (Wellington)
House$2,250,000
$8,324/yr taxListing Courtesy of REAL BROKER ONTARIO LTD.
Similar Properties ?Active Comparables — Search CriteriaSearch Radius2 kmPrice Range±5%Match Home TypeYesMatch BedroomsYes
No active comparables found in this area.
No rental comparables found in this area.
Sold Comparables
Access to sold property data requires a registered and verified account with TRREB DDF integration.
Coming SoonRented Comparables
Access to rented property data requires a registered and verified account with TRREB DDF integration.
Coming SoonBook a Viewing
4662 DUNDAS STREET W, Toronto (Edenbridge-Humber Valley), Ontario, M9A1A6
