466 GILLESPIE STREET, South-West Oxford, Ontario, N4S0G7
MLS: X12947144 | House (Freehold)
$2,900 / monthly


























Property Description
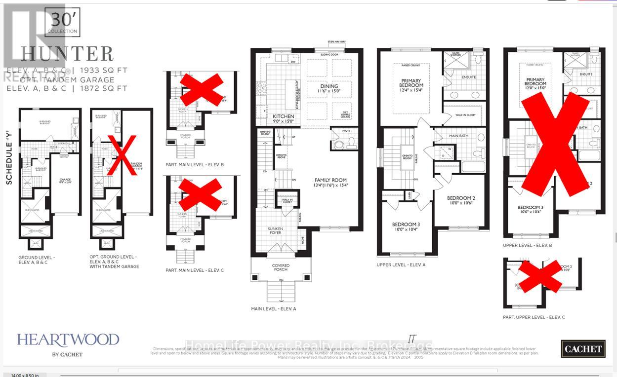
Stunning Brand New Build: 466 Gillespie Street, Woodstock Experience the pinnacle of modern living in this never-lived-in, detached 2-storey home located in one of Woodstock's newest and most sought-after subdivisions. Boasting 1,933 sq. ft. of meticulously designed space, this residence is perfect for families and commuters seeking quality craftsmanship and a fresh start. Move in Ready & Pristine: Be the first to call this house a home. This brand-new build offers the peace of mind that comes with modern construction and a full Tarion New Home Warranty. Contemporary Layout: The main floor features a bright, open-concept design with quartz countertops throughout and the added convenience of main-floor laundry Space for Everyone: This home includes 4 spacious bedrooms and 2.5 bathrooms, providing ample room for a growing family or a home office. Expansion Potential: An unfinished walk-out basement offers a blank canvas for your future home gym, recreation room, or additional living suite. Modern Curb Appeal: Features a single-car garage and a stylish brick and vinyl exterior. Why You'll Love Residing in Woodstock Known as the "Friendly City," Woodstock offers a unique blend of small-town charm and urban convenience. It is a thriving commercial hub with a rich architectural history and a strong sense of community. Commuter's Dream: Enjoy easy access to Highway 401 and Highway 403, making travel to London, Kitchener-Waterloo, or the GTA a breeze. Exceptional Healthcare: The property is located just moments away from the Woodstock Hospital. Family-Friendly Environment: Surrounded by top-rated schools and a vast network of over 50 neighbourhood parks and 30 km of trails. (id:64974)
Quick Facts
- Property Type: House (Freehold)
- Bedrooms: 3 (3 above)
- Bathrooms: 3
- Ownership: Freehold
- Attached: No
- Fireplaces: 1
- Parking: 3.0 spaces (Garage)
Listing Provided by: HomeLife Power Realty Inc
Board: OnePoint Association of REALTORS®
Data provided via CREA DDF®.
Detailed Features
Interior & Systems
- Heating: Forced air, Natural gas
- Cooling: Central air conditioning
- Basement: Unfinished, N/A
- Appliances: Garage door opener remote(s)
Exterior & Construction
- Exterior: Brick, Vinyl siding
- Foundation: Poured Concrete
- Sewer: Sanitary sewer
- Water: Municipal water
Lot & Land
- Features: In suite Laundry
Community & Neighbourhood
- Neighbourhood: Rural South-West Oxford
Room Details (11 rooms)
Listing Information
Listing History
MLS listing activity for 466 GILLESPIE STREET, South-West Oxford, Ontario, N4S0G7 — dates reflect when changes were recorded in the DDF
🚗 Travel times
Neighborhood Walkability
Mortgage & Cost Calculators
Nearby Homes ?Nearby Homes — Search CriteriaSearch Radius1 kmPrice Range±5%Match BedroomsYesMatch BathroomsYes

414 GILLESPIE AVENUE, Cornwall
House$315,000
$2,254/yr taxListing Courtesy of ROYAL LEPAGE PERFORMANCE REALTY

323 EIGHTH STREET E, Cornwall
House$349,000
$2,407/yr taxListing Courtesy of RE/MAX AFFILIATES MARQUIS LTD.

543 FIFTH STREET E, Cornwall
House$374,900
$2,407/yr taxListing Courtesy of RE/MAX AFFILIATES MARQUIS LTD.

409 MARLBOROUGH STREET N, Cornwall
House$339,900
$2,300/yr taxListing Courtesy of RE/MAX AFFILIATES MARQUIS LTD.

822 ALICE STREET, Cornwall
House$550,000
$3,228/yr taxListing Courtesy of HOMELIFE/FUTURE REALTY INC.

441 ADOLPHUS STREET, Cornwall
House$319,900
$1,891/yr taxListing Courtesy of ROYAL LEPAGE PERFORMANCE REALTY

601 FOURTH STREET E, Cornwall
House$424,900
$2,942/yr taxListing Courtesy of RE/MAX AFFILIATES MARQUIS LTD.

1120 LARIN AVENUE, Cornwall
House$419,900
$2,846/yr taxListing Courtesy of J. CORNETT REAL ESTATE

784 IROQUOIS DRIVE, Cornwall
House$559,999
$4,260/yr taxListing Courtesy of RE/MAX AFFILIATES MARQUIS LTD.

1118 CLEMENT COURT, Cornwall
Row / Townhouse$470,000
$3,553/yr taxListing Courtesy of RE/MAX AFFILIATES MARQUIS LTD.

1113 BROCK STREET, Cornwall
House$419,900
$3,056/yr taxListing Courtesy of RE/MAX AFFILIATES MARQUIS LTD.

216 BALDWIN AVENUE, Cornwall
House$399,900
$3,266/yr taxListing Courtesy of CENTURY 21 SHIELD REALTY LTD.

661 ST FELIX STREET, Cornwall
House$459,000
$3,572/yr taxListing Courtesy of RE/MAX AFFILIATES MARQUIS LTD.

681 CHAMPLAIN DRIVE, Cornwall
House$479,900
$4,145/yr taxListing Courtesy of RE/MAX AFFILIATES MARQUIS LTD.

1005 THIRD STREET E, Cornwall
House$349,990
$3,343/yr taxListing Courtesy of CENTURY 21 SHIELD REALTY LTD.
Similar Homes ?Similar Homes — Search CriteriaSearch Radius5 kmPrice Range±5%Match Home TypeYesMatch BedroomsYes

TH302 - 6 STECKLEY HOUSE LANE, Richmond Hill
Condo - Row / Townhouse$2,780/mo
Listing Courtesy of BAY STREET GROUP INC.

MAIN - 93 CARTIER CRESCENT, Richmond Hill (Crosby)
House$2,780/mo
Listing Courtesy of BAY STREET GROUP INC.

1705 - 5500 YONGE STREET, Toronto (Willowdale West)
Condo - Apartment$2,780/mo
Listing Courtesy of BEST UNION REALTY INC.

205 - 128 FAIRVIEW MALL DRIVE, Toronto (Don Valley Village)
Condo - Apartment$2,780/mo
Listing Courtesy of BAY STREET GROUP INC.

606 - 8 MANOR ROAD W, Toronto (Yonge-Eglinton)
Condo - Apartment$2,775/mo
Listing Courtesy of THE CONDO STORE REALTY INC.

510 - 55 SPEERS ROAD, Oakville (CO Central)
Condo - Apartment$2,775/mo
Listing Courtesy of Royal LePage Real Estate Services Ltd., Brokerage

114 FROST COURT, Milton (FO Ford)
Row / Townhouse$2,775/mo
Listing Courtesy of iCloud Realty Ltd.

229 - 1635 MILITARY TRAIL, Toronto (Centennial Scarborough)
Condo - Apartment$2,775/mo
Listing Courtesy of P2 REALTY INC.

312 - 2088 JAMES STREET, Burlington (Brant)
Condo - Apartment$2,775/mo
Listing Courtesy of ROYAL LEPAGE REAL ESTATE SERVICES LTD.

S1001 - 115 TYNDALL AVENUE, Toronto (South Parkdale)
Condo - Apartment$2,775/mo
Listing Courtesy of SOTHEBY'S INTERNATIONAL REALTY CANADA

1104 - 25 DALHOUSIE STREET, Toronto (Church-Yonge Corridor)
Condo - Apartment$2,775/mo
Listing Courtesy of RARE REAL ESTATE

2907 - 3 MICHAEL POWER PLACE, Toronto (Islington-City Centre West)
Condo - Apartment$2,775/mo
Listing Courtesy of RE/MAX PROFESSIONALS INC.

3 - 3039 DUNDAS STREET W, Toronto (Junction Area)
Other$2,775/mo
Listing Courtesy of ROYAL LEPAGE SIGNATURE REALTY

1502 - 1350 ELLESMERE ROAD, Toronto (Bendale)
Condo - Apartment$2,775/mo
Listing Courtesy of HOMELIFE/FUTURE REALTY INC.

423 - 35 BRIAN PECK CRESCENT, Toronto (Leaside)
Condo - Apartment$2,760/mo
Listing Courtesy of RE/MAX HALLMARK REALTY LTD.
Similar Properties ?Active Comparables — Search CriteriaSearch Radius2 kmPrice Range±5%Match Home TypeYesMatch BedroomsYes

TH302 - 6 STECKLEY HOUSE LANE, Richmond Hill
Condo - Row / Townhouse$2,780/mo
Listing Courtesy of BAY STREET GROUP INC.

MAIN - 93 CARTIER CRESCENT, Richmond Hill (Crosby)
House$2,780/mo
Listing Courtesy of BAY STREET GROUP INC.

1705 - 5500 YONGE STREET, Toronto (Willowdale West)
Condo - Apartment$2,780/mo
Listing Courtesy of BEST UNION REALTY INC.

205 - 128 FAIRVIEW MALL DRIVE, Toronto (Don Valley Village)
Condo - Apartment$2,780/mo
Listing Courtesy of BAY STREET GROUP INC.

606 - 8 MANOR ROAD W, Toronto (Yonge-Eglinton)
Condo - Apartment$2,775/mo
Listing Courtesy of THE CONDO STORE REALTY INC.

510 - 55 SPEERS ROAD, Oakville (CO Central)
Condo - Apartment$2,775/mo
Listing Courtesy of Royal LePage Real Estate Services Ltd., Brokerage

114 FROST COURT, Milton (FO Ford)
Row / Townhouse$2,775/mo
Listing Courtesy of iCloud Realty Ltd.

229 - 1635 MILITARY TRAIL, Toronto (Centennial Scarborough)
Condo - Apartment$2,775/mo
Listing Courtesy of P2 REALTY INC.

312 - 2088 JAMES STREET, Burlington (Brant)
Condo - Apartment$2,775/mo
Listing Courtesy of ROYAL LEPAGE REAL ESTATE SERVICES LTD.

S1001 - 115 TYNDALL AVENUE, Toronto (South Parkdale)
Condo - Apartment$2,775/mo
Listing Courtesy of SOTHEBY'S INTERNATIONAL REALTY CANADA

1104 - 25 DALHOUSIE STREET, Toronto (Church-Yonge Corridor)
Condo - Apartment$2,775/mo
Listing Courtesy of RARE REAL ESTATE

2907 - 3 MICHAEL POWER PLACE, Toronto (Islington-City Centre West)
Condo - Apartment$2,775/mo
Listing Courtesy of RE/MAX PROFESSIONALS INC.

3 - 3039 DUNDAS STREET W, Toronto (Junction Area)
Other$2,775/mo
Listing Courtesy of ROYAL LEPAGE SIGNATURE REALTY

1502 - 1350 ELLESMERE ROAD, Toronto (Bendale)
Condo - Apartment$2,775/mo
Listing Courtesy of HOMELIFE/FUTURE REALTY INC.

423 - 35 BRIAN PECK CRESCENT, Toronto (Leaside)
Condo - Apartment$2,760/mo
Listing Courtesy of RE/MAX HALLMARK REALTY LTD.
No rental comparables found in this area.
Sold Comparables
Access to sold property data requires a registered and verified account with TRREB DDF integration.
Coming SoonRented Comparables
Access to rented property data requires a registered and verified account with TRREB DDF integration.
Coming SoonBook a Viewing
466 GILLESPIE STREET, South-West Oxford, Ontario, N4S0G7
