46 - 20 WATER STREET S, St. Marys, Ontario, N4X1C1
MLS: X12726006 | Apartment (Condo)
$2,150 / monthly


























Property Description
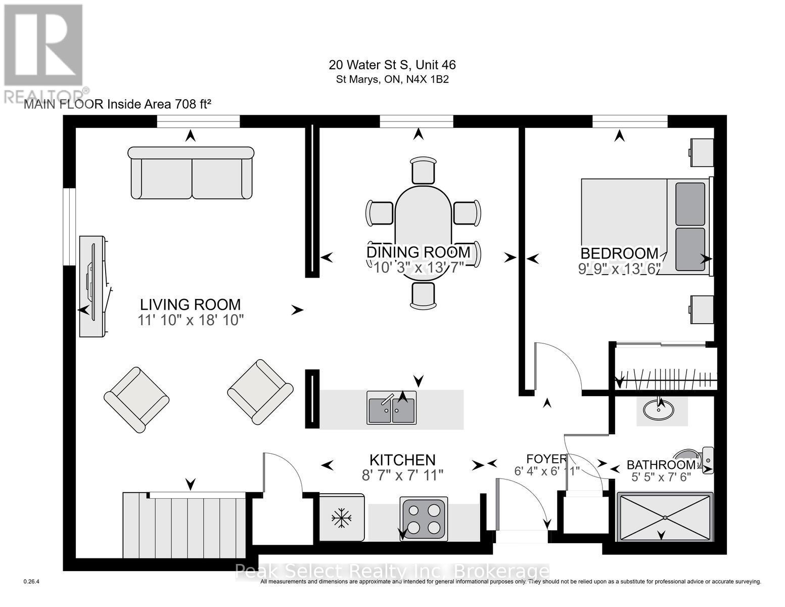
Enjoy downtown living in this beautifully updated two-bedroom, two-bathroom apartment located in the historic Opera House Apartments in the heart of St. Marys. Overlooking the river and Water St. S, this bright residence offers a unique layout with a loft-style upper level featuring a bedroom and full bathroom, while the main level includes a second bedroom and additional bathroom. Large corner windows flood the space with natural light and showcase charming views of both the river and the vibrant downtown streetscape. Step outside and you're surrounded by local shops, cafés, patios, and scenic walking trails, making it easy to enjoy everything St. Marys has to offer. The building features convenient amenities, including elevator and stair access, on-site laundry facilities, and secure entry. Rent is $2,150 per month, plus utilities (electricity and water) and the hot water tank rental. (id:64974)
Quick Facts
- Property Type: Apartment (Condo)
- Bedrooms: 2 (2 above)
- Bathrooms: 2
- Ownership: Condo/Strata
- Attached: Yes
Listing Provided by: Peak Select Realty Inc
Board: OnePoint Association of REALTORS®
Data provided via CREA DDF®.
Detailed Features
Interior & Systems
- Heating: Baseboard heaters, Electric
- Cooling: None
- Basement: None
- Appliances: Refrigerator, Stove, Water Heater
- Security: Smoke Detectors
Exterior & Construction
- Exterior: Stone
Lot & Land
- Features: Lighting, Level, Laundry- Coin operated
- View: City view, River view, Direct Water View
Community & Neighbourhood
- Community: Community Centre, Pets Allowed With Restrictions
- Building: Visitor Parking
- Neighbourhood: St. Marys
Room Details (6 rooms)
Listing Information
Listing History
MLS listing activity for 46 - 20 WATER STREET S, St. Marys, Ontario, N4X1C1 — dates reflect when changes were recorded in the DDF
🚗 Travel times
Neighborhood Walkability
Mortgage & Cost Calculators
Nearby Homes ?Nearby Homes — Search CriteriaSearch Radius1 kmPrice Range±5%Match BedroomsYesMatch BathroomsYes

21 - 20 WATER STREET SOUTH, St. Marys
Condo - Apartment$1,975/mo
Listing Courtesy of Peak Select Realty Inc

363 QUEEN STREET E, St. Marys
House$629,900
$3,867/yr taxListing Courtesy of Peak Select Realty Inc

502 - 22 ST ANDREW STREET N, St. Marys
Condo - Other$324,900
Listing Courtesy of Coldwell Banker Homefield Legacy Realty

35 SPARLING CRESCENT, St. Marys
House$639,900
$3,835/yr taxListing Courtesy of RE/MAX A-B Realty Ltd

8 DUNSFORD CRESCENT, St. Marys
House$579,900
$3,726/yr taxListing Courtesy of Sutton Group - First Choice Realty Ltd.

135 MAXWELL STREET, St. Marys
House$564,900
$4,352/yr taxListing Courtesy of eXp Realty

29 DUNSFORD CRESCENT, St. Marys
House$669,000
$4,305/yr taxListing Courtesy of RE/MAX A-B Realty Ltd

194 PEEL STREET S, St. Marys
House$535,000
$3,600/yr taxListing Courtesy of 3 POINTS REALTY INC.
Similar Homes ?Similar Homes — Search CriteriaSearch Radius5 kmPrice Range±5%Match Home TypeYesMatch BedroomsYes

529 ELM Street Unit# 16, Port Colborne
Apartment$2,050/mo
Listing Courtesy of eXp Realty

16 - 529 ELM STREET, Port Colborne (Main Street)
Condo - Other$2,050/mo
Listing Courtesy of EXP REALTY

4305 - 950 PORTAGE PARKWAY, Vaughan (Vaughan Corporate Centre)
Condo - Apartment$2,050/mo
Listing Courtesy of HOMELIFE LANDMARK REALTY INC.

7 BURBANK PL (MAIN) PLACE, Barrie (Wellington)
House$2,050/mo
Listing Courtesy of EXP REALTY

2801 - 155 BEECROFT ROAD, Toronto (Willowdale West)
Condo - Apartment$2,050/mo
Listing Courtesy of SUTTON GROUP QUANTUM REALTY INC.

5306 - 5 BUTTERMILL AVENUE, Vaughan (Vaughan Corporate Centre)
Condo - Apartment$2,050/mo
Listing Courtesy of RE/MAX PREMIER INC.

3309 - 5105 HURONTARIO STREET N, Mississauga (Hurontario)
Condo - Apartment$2,049/mo
Listing Courtesy of PMA BRETHOUR REAL ESTATE CORPORATION INC.

10B - 100 LIBERTY STREET N, Clarington (Bowmanville)
Row / Townhouse$2,049/mo
Listing Courtesy of HOMEWISE REAL ESTATE

2011 - 2550 SIMCOE STREET N, Oshawa (Windfields)
Condo - Apartment$2,049/mo
Listing Courtesy of HOMELIFE LANDMARK REALTY INC.

705 - 319 JARVIS STREET, Toronto (Moss Park)
Condo - Apartment$2,049/mo
Listing Courtesy of RE/MAX MILLENNIUM REAL ESTATE

709 - 931 WONDERLAND ROAD S, London South (South M)
Condo - Apartment$2,049/mo
Listing Courtesy of SUTTON GROUP - SELECT REALTY

127 - 5611 VALLEY WAY, Niagara Falls (Cherrywood)
Condo - Apartment$2,045/mo
Listing Courtesy of RE/MAX HENDRIKS TEAM REALTY

40 PALACE Street Unit# M15, Kitchener
Condo - Apartment$2,045/mo
Listing Courtesy of CONDO CULTURE INC. - BROKERAGE 2

206 - 990 AVENUE ROAD, Toronto (Yonge-Eglinton)
Condo - Apartment$2,045/mo
Listing Courtesy of ROYAL LEPAGE SIGNATURE REALTY

309 - 33318 RICHMOND STREET, Lucan Biddulph (Lucan)
Other$2,045/mo
Listing Courtesy of ROYAL LEPAGE TRILAND REALTY
Similar Properties ?Active Comparables — Search CriteriaSearch Radius2 kmPrice Range±5%Match Home TypeYesMatch BedroomsYes

529 ELM Street Unit# 16, Port Colborne
Apartment$2,050/mo
Listing Courtesy of eXp Realty

16 - 529 ELM STREET, Port Colborne (Main Street)
Condo - Other$2,050/mo
Listing Courtesy of EXP REALTY

4305 - 950 PORTAGE PARKWAY, Vaughan (Vaughan Corporate Centre)
Condo - Apartment$2,050/mo
Listing Courtesy of HOMELIFE LANDMARK REALTY INC.

7 BURBANK PL (MAIN) PLACE, Barrie (Wellington)
House$2,050/mo
Listing Courtesy of EXP REALTY

2801 - 155 BEECROFT ROAD, Toronto (Willowdale West)
Condo - Apartment$2,050/mo
Listing Courtesy of SUTTON GROUP QUANTUM REALTY INC.

5306 - 5 BUTTERMILL AVENUE, Vaughan (Vaughan Corporate Centre)
Condo - Apartment$2,050/mo
Listing Courtesy of RE/MAX PREMIER INC.

3309 - 5105 HURONTARIO STREET N, Mississauga (Hurontario)
Condo - Apartment$2,049/mo
Listing Courtesy of PMA BRETHOUR REAL ESTATE CORPORATION INC.

10B - 100 LIBERTY STREET N, Clarington (Bowmanville)
Row / Townhouse$2,049/mo
Listing Courtesy of HOMEWISE REAL ESTATE

2011 - 2550 SIMCOE STREET N, Oshawa (Windfields)
Condo - Apartment$2,049/mo
Listing Courtesy of HOMELIFE LANDMARK REALTY INC.

705 - 319 JARVIS STREET, Toronto (Moss Park)
Condo - Apartment$2,049/mo
Listing Courtesy of RE/MAX MILLENNIUM REAL ESTATE

709 - 931 WONDERLAND ROAD S, London South (South M)
Condo - Apartment$2,049/mo
Listing Courtesy of SUTTON GROUP - SELECT REALTY

127 - 5611 VALLEY WAY, Niagara Falls (Cherrywood)
Condo - Apartment$2,045/mo
Listing Courtesy of RE/MAX HENDRIKS TEAM REALTY

40 PALACE Street Unit# M15, Kitchener
Condo - Apartment$2,045/mo
Listing Courtesy of CONDO CULTURE INC. - BROKERAGE 2

206 - 990 AVENUE ROAD, Toronto (Yonge-Eglinton)
Condo - Apartment$2,045/mo
Listing Courtesy of ROYAL LEPAGE SIGNATURE REALTY

309 - 33318 RICHMOND STREET, Lucan Biddulph (Lucan)
Other$2,045/mo
Listing Courtesy of ROYAL LEPAGE TRILAND REALTY
No rental comparables found in this area.
Sold Comparables
Access to sold property data requires a registered and verified account with TRREB DDF integration.
Coming SoonRented Comparables
Access to rented property data requires a registered and verified account with TRREB DDF integration.
Coming SoonBook a Viewing
46 - 20 WATER STREET S, St. Marys, Ontario, N4X1C1
