458 BOLER ROAD, London South (South K), Ontario, N6K2K7
MLS: X12992150 | House (Freehold)
$1,275,000



















































Property Description
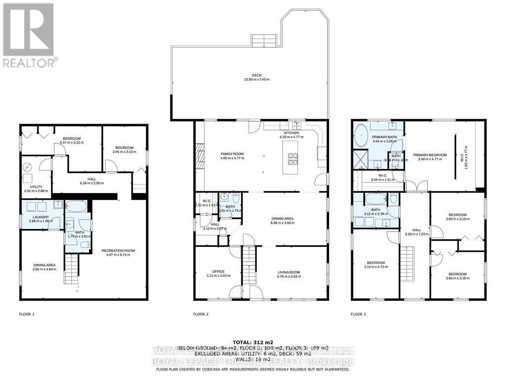
This exceptional property offers a rare combination of space, versatility, and lifestyle-perfect for car enthusiasts, hobbyists, or those seeking room for a home-based business. Situated on an oversized lot within the City of London, opportunities like this are seldom available and present endless possibilities. The exterior features are truly impressive. A Four-car garage/shop provides ample space for vehicles, projects, or entertaining, seamlessly complementing the approximately 2,600 sq. ft. home with a fully finished basement. The expansive deck-remarkable in both size and setting is ideal for hosting gatherings or enjoying quiet moments overlooking the serene pond. A private fire pit area enhances the tranquil outdoor experience, while a substantial detached workshop offers 12-foot clearance, a large overhead door, and heating making it the ultimate year-round workspace. Inside, this beautifully maintained 4+2 bedroom home offers approximately 3,600 sq. ft. of finished living space, well-suited for multi-generational living. The thoughtful layout includes a 2-piece bath on the main level, a 5-piece ensuite and 4-piece main bath with second-floor laundry, and an additional 4-piece bath in the lower level. The main floor features a bright and functional kitchen that flows seamlessly into the dining area and family room, enhanced by abundant natural light from large windows and patio doors. Formal living and dining rooms provide elegant entertaining spaces, while a dedicated main floor office adds convenience and flexibility. Upstairs, the generously sized bedrooms are filled with natural light. The primary suite is a true retreat, complete with a walk-in closet and an impressive wall of additional closet space. This is a unique opportunity to own a property that combines comfort, functionality, and exceptional outdoor amenities. Easy to show. Experience all that this remarkable home has to offer. (id:64974)
Quick Facts
- Property Type: House (Freehold)
- Bedrooms: 6 (4 above, 2 below)
- Bathrooms: 4 (1 half)
- Ownership: Freehold
- Attached: No
- Fireplaces: 1
- Parking: 11.0 spaces (Detached Garage, Garage, Tandem)
- Frontage: 75 ft (22.9 m)
Costs
- Annual Taxes: $8,482.55
Listing Provided by: ROYAL LEPAGE TRILAND REALTY
Board: London and St. Thomas Association of REALTORS®
Data provided via CREA DDF®.
Detailed Features
Interior & Systems
- Heating: Forced air, Natural gas
- Cooling: Central air conditioning
- Basement: Finished, Full
- Appliances: Refrigerator, Water meter, Central Vacuum, Dishwasher, Stove, Dryer, Two Washers, Garage door opener remote(s), Water Heater
- Utilities: Sewer, Electricity, Cable
Exterior & Construction
- Exterior: Brick
- Foundation: Poured Concrete
- Fencing: Fenced yard
- Sewer: Sanitary sewer
- Water: Municipal water
Lot & Land
- Frontage: 75 ft (22.9 m)
- Features: Level lot, Flat site, Lighting, Carpet Free, In-Law Suite
- View: City view
- Zoning: R1-9
Community & Neighbourhood
- Building: Fireplace(s)
- Neighbourhood: South K
Room Details (14 rooms)
Listing Information
Listing History
MLS listing activity for 458 BOLER ROAD, London South (South K), Ontario, N6K2K7 — dates reflect when changes were recorded in the DDF
🚗 Travel times
Neighborhood Walkability
Mortgage & Cost Calculators
Nearby Homes ?Nearby Homes — Search CriteriaSearch Radius1 kmPrice Range±5%Match BedroomsYesMatch BathroomsYes

501 BOLER ROAD, London South (South K)
House$699,900
$5,264/yr taxListing Courtesy of ROYAL LEPAGE TRILAND REALTY

417 BYRON BOULEVARD, London South (South B)
House$589,900
$4,174/yr taxListing Courtesy of ROYAL LEPAGE TRILAND REALTY

454 JELLICOE CRESCENT, London South (South K)
Single Family$659,900
$3,956/yr taxListing Courtesy of ROYAL LEPAGE TRILAND REALTY

476 BLAKE STREET, London South (South K)
House$699,900
$4,795/yr taxListing Courtesy of THE REALTY FIRM INC.

75 HALIBURTON PLACE, London South (South K)
House$599,900
$4,023/yr taxListing Courtesy of COLDWELL BANKER POWER REALTY

345 GLENROSE DRIVE, London South (South B)
House$699,900
$4,711/yr taxListing Courtesy of KELLER WILLIAMS LIFESTYLES

UNIT 2 - 337 BOLER ROAD, London South (South B)
Other$1,275/mo
Listing Courtesy of CENTURY 21 UNITED REALTY INC.

557 BOLER ROAD, London South (South K)
House$480,000
$3,135/yr taxListing Courtesy of CENTURY 21 FIRST CANADIAN CORP

105 - 1180 COMMISSIONERS ROAD W, London South (South B)
Condo - Apartment$499,900
$3,554/yr taxListing Courtesy of THRIVE REALTY GROUP INC.

406 - 1200 COMMISSIONERS ROAD W, London South (South B)
Condo - Apartment$540,000
$3,353/yr taxListing Courtesy of BLUE FOREST REALTY INC.

1099 BYRON BASELINE ROAD, London South (South K)
House$499,900
$3,621/yr taxListing Courtesy of CENTURY 21 FIRST CANADIAN CORP

363 REYNOLDS ROAD, London South (South B)
House$599,900
$3,990/yr taxListing Courtesy of ROYAL LEPAGE TRILAND REALTY

47 FAIRLANE ROAD, London South (South K)
House$664,900
$4,778/yr taxListing Courtesy of THRIVE REALTY GROUP INC.

133 FAIRLANE AVENUE, London South (South K)
House$739,000
$4,794/yr taxListing Courtesy of OAK AND KEY REAL ESTATE BROKERAGE, INC.

31 FOXCROFT CRESCENT, London South (South K)
House$799,900
$6,421/yr taxListing Courtesy of ROYAL LEPAGE TRILAND PREMIER BROKERAGE
Similar Homes ?Similar Homes — Search CriteriaSearch Radius5 kmPrice Range±5%Match Home TypeYesMatch BedroomsYes

1066 RIVERBEND ROAD, London South (South B)
House$1,274,000
$9,723/yr taxListing Courtesy of CENTURY 21 FIRST CANADIAN CORP

4203 LIBERTY CROSSING, London South (South V)
House$1,268,500
Listing Courtesy of ROYAL LEPAGE TRILAND REALTY

45 ROBERT BERRY CRESCENT, King (King City)
Row / Townhouse$1,275,000
$6,417/yr taxListing Courtesy of RE/MAX HALLMARK YORK GROUP REALTY LTD.

409 - 17 CLEAVE AVENUE, Prince Edward County (Picton Ward)
Condo - Apartment$1,275,000
$5,662/yr taxListing Courtesy of ROYAL LEPAGE PROALLIANCE REALTY

13 - 423 AVENUE ROAD, Toronto (Yonge-St. Clair)
Condo - Apartment$1,275,000
$5,965/yr taxListing Courtesy of SOTHEBY'S INTERNATIONAL REALTY CANADA

18 CHARTERHOUSE CRESCENT, Hamilton (Ancaster)
House$1,275,000
$8,019/yr taxListing Courtesy of KELLER WILLIAMS EDGE REALTY

18 LAKEVIEW ROAD, Oro-Medonte
House$1,275,000
$4,200/yr taxListing Courtesy of ROYAL LEPAGE FIRST CONTACT REALTY

169 FALCONRIDGE DRIVE, Kitchener
House$1,275,000
$8,140/yr taxListing Courtesy of RE/MAX TWIN CITY REALTY INC.

18 CHARTERHOUSE Crescent, Ancaster
House$1,275,000
$8,019/yr taxListing Courtesy of Keller Williams Edge Realty

173 MACDONALDS ROAD, Grey Highlands
House$1,275,000
$6,371/yr taxListing Courtesy of Royal LePage RCR Realty

15 TRAFALGAR STREET, St. Catharines (Downtown)
House$1,275,000
$9,079/yr taxListing Courtesy of ROYAL LEPAGE NRC REALTY

169 FALCONRIDGE Drive, Kitchener
House$1,275,000
$8,140/yr taxListing Courtesy of RE/MAX Twin City Realty Inc.

9 BLACK BEAR TRAIL, Brampton (Bram West)
House$1,275,000
$10,025/yr taxListing Courtesy of ROYAL LEPAGE MEADOWTOWNE REALTY

1406 - 3580 RIVERGATE WAY, Ottawa
Condo - Apartment$1,275,000
$9,677/yr taxListing Courtesy of RE/MAX HALLMARK REALTY GROUP

35 JANE STREET, Bluewater (Bayfield)
House$1,275,000
$6,409/yr taxListing Courtesy of Coldwell Banker All Points-Festival City Realty
Similar Properties ?Active Comparables — Search CriteriaSearch Radius2 kmPrice Range±5%Match Home TypeYesMatch BedroomsYes
No active comparables found in this area.
No rental comparables found in this area.
Sold Comparables
Access to sold property data requires a registered and verified account with TRREB DDF integration.
Coming SoonRented Comparables
Access to rented property data requires a registered and verified account with TRREB DDF integration.
Coming SoonBook a Viewing
458 BOLER ROAD, London South (South K), Ontario, N6K2K7
