4525 RHODES DRIVE Unit# 700, Windsor, Ontario, N8W5R8
MLS: 25016216 | Warehouse (Leasehold)
$10.95 / square feet








Property Description
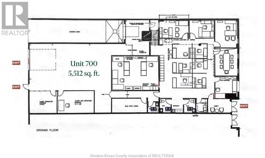
5,212 SF GROUND FLOOR SPACE. LOCATED IN THE DELTA PARK BUSINESS COMPLEX, UNIT 700 OFFERS A WAREHOUSE AREA AND FINISHED OFFICES. ACCESS VIA DRIVE-IN DOOR AND TRUCK DOCK. IDEALLY POSITIONED FOR WAREHOUSING AND MANUFACTURING OPERATIONS AND ARE WELL LOCATED BETWEEN CENTRAL AVENUE & JEFFERSON, WITH IMMEDIATE ACCESS TO EC ROW EXPRESSWAY. (id:64974)
Quick Facts
- Property Type: Warehouse (Leasehold)
- Bedrooms: None
- Bathrooms: None
- Ownership: Leasehold
Listing Provided by: REMAX CAPITAL DIAMOND REALTY
Board: Windsor-Essex County Association of REALTORS®
Data provided via CREA DDF®.
Detailed Features
Interior & Systems
- Heating: Electric, Natural gas
- Flooring: Cushion/Lino/Vinyl
Lot & Land
- Zoning: MD2.7
Listing Information
Listing History
Buy/Sell/Terminated/Expired listing history for 4525 RHODES DRIVE Unit# 700, Windsor, Ontario, N8W5R8
Location & Neighborhood
🚗 Travel times
Neighborhood Walkability
Mortgage & Cost Calculators
Similar Properties
No active comparables found in this area.
Sold Comparables
Access to sold property data requires a registered and verified account with TRREB DDF integration.
Coming SoonRented Comparables
Access to rented property data requires a registered and verified account with TRREB DDF integration.
Coming Soon














