451 IVINGS DRIVE, Saugeen Shores, Ontario, N0H2C3
MLS: X10846828 | Townhouse (Freehold)
$664,900



Property Description
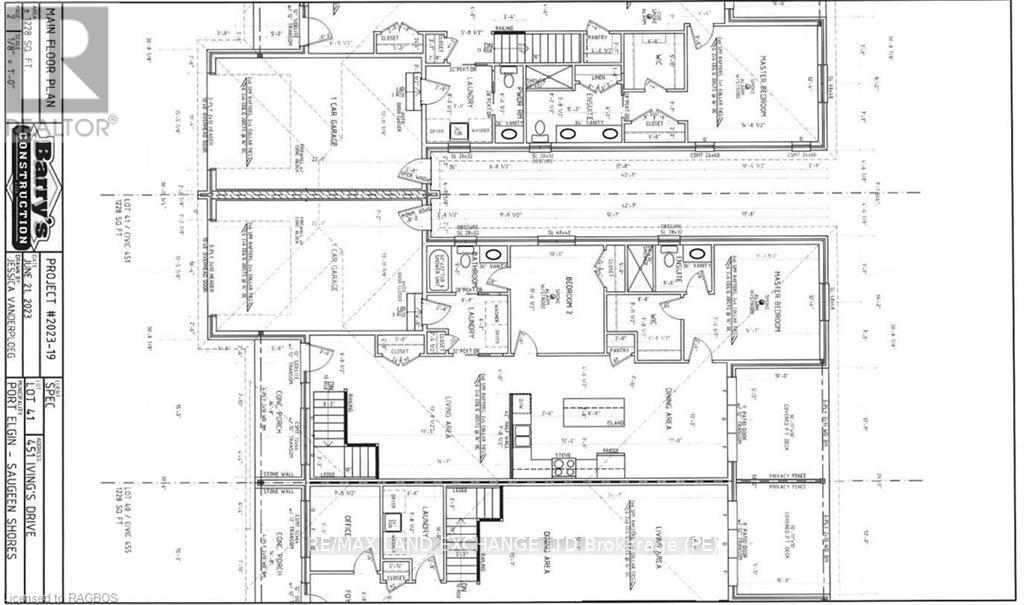
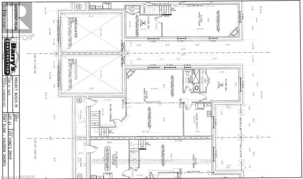
1228 Sqft Brick bungalow freehold townhome at 451 Ivings Drive in Port Elgin with 2 bedrooms and 2 full baths on the main floor. Standard feature include Quartz counter tops in the kitchen, hardwood and ceramic flooring throughout the main floor, hardwood staircase to the basement, sodded yard, covered 10'11 x 10 deck off the dining room and more. The basement can be finished to include a family room with gas fireplace, 3rd bedroom and full bath, asking price would be $694,900. HST is included in the list price provided the Buyer qualifies for the rebate and assigns it to the Seller on closing (id:64974)
Quick Facts
- Property Type: Townhouse (Freehold)
- Style: Bungalow
- Bedrooms: 2 (2 above)
- Bathrooms: 2 (1 half)
- Ownership: Freehold
- Attached: Yes
- Fireplaces: Yes
- Parking: 3 spaces (Attached Garage, Garage)
- Frontage: 31 ft (9.4 m)
Listing Provided by: RE/MAX Land Exchange Ltd.
Board: OnePoint Association of REALTORS®
Data provided via CREA DDF®.
Detailed Features
Interior & Systems
- Heating: Forced air, Natural gas
- Cooling: Central air conditioning, Air exchanger
- Basement: Unfinished, Full
- Appliances: Garage door opener, Water Heater - Tankless
- Flooring: Tile, Hardwood
- Utilities: Sewer, Electricity, Cable, Wireless
- Security: Smoke Detectors
Exterior & Construction
- Style: Bungalow
- Exterior: Stone
- Foundation: Poured Concrete
- Sewer: Sanitary sewer
- Water: Municipal water
Lot & Land
- Frontage: 31 ft (9.4 m)
- Features: Flat site, Sump Pump
- Zoning: R3-10
Community & Neighbourhood
- Neighbourhood: Saugeen Shores
Room Details (6 rooms)
Listing Information
Listing History
Buy/Sell/Terminated/Expired listing history for 451 IVINGS DRIVE, Saugeen Shores, Ontario, N0H2C3
Location & Neighborhood
🚗 Travel times
Neighborhood Walkability
Mortgage & Cost Calculators
Nearby Homes (Within 2km)
Similar Homes
Similar Properties
No rental comparables found in this area.
Sold Comparables
Access to sold property data requires a registered and verified account with TRREB DDF integration.
Coming SoonRented Comparables
Access to rented property data requires a registered and verified account with TRREB DDF integration.
Coming Soon















