4446 MORRISON STREET, Niagara Falls (Downtown), Ontario, L2E2B3
MLS: X12893760 | Vacant Land
$629,000






Property Description
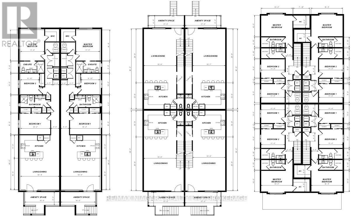
Rare Permit-Ready Multifamily Development Opportunity in a prime location within walking distance to Niagara University, City buildings, the new GO Transit station, and the international bridge to the USA.Fully approved site plan with building permit ready for construction of a six-unit residential rental project consisting of two semi-detached buildings. Each building includes three spacious three-bedroom units, including basement apartments, designed to meet strong and growing demand for larger family-oriented rental housing.The property benefits from a demolition permit already issued, which may result in reduced development charges compared to a typical new build. In addition, recent federal housing initiatives regarding HST on new residential construction may provide further financial advantages for qualified projects. Buyers are encouraged to conduct their own due diligence to fully understand applicable incentives, exemptions, and cost savings.Based on market rental estimates of approximately $2,200 per unit per month, the completed project may achieve gross annual rental income of approximately $158,400. Using standard vacancy and operating assumptions, the project presents the potential for strong long-term rental performance once stabilized.This offering presents an excellent opportunity for investors or developers seeking a small-scale multifamily project with approvals already in place, significantly reducing development timelines, entitlement risk, and potentially lowering overall development costs.A rare chance to acquire a fully entitled six-unit rental development in a high-demand and rapidly evolving area. (id:64974)
Quick Facts
- Property Type: Vacant Land
- Bedrooms: None
- Bathrooms: 0
- Frontage: 50 ft (15.2 m)
Listing Provided by: RE/MAX NIAGARA REALTY LTD, BROKERAGE
Board: Niagara Association of REALTORS®
Data provided via CREA DDF®.
Detailed Features
Interior & Systems
- Utilities: Sewer, Electricity, Cable
Lot & Land
- Frontage: 50 ft (15.2 m)
- Zoning: R2
Community & Neighbourhood
- Neighbourhood: 210 - Downtown
Listing Information
Listing History
MLS listing activity for 4446 MORRISON STREET, Niagara Falls (Downtown), Ontario, L2E2B3 — dates reflect when changes were recorded in the DDF
🚗 Travel times
Neighborhood Walkability
Mortgage & Cost Calculators
Nearby Homes ?Nearby Homes — Search CriteriaSearch Radius1 kmPrice Range±5%Match BedroomsYesMatch BathroomsYes

4770 VICTORIA AVENUE, Niagara Falls (Downtown)
Vacant Land$1,850,000
$5,582/yr taxListing Courtesy of HOMELIFE NEW WORLD REALTY INC.

5319 VICTORIA AVENUE, Niagara Falls (Cherrywood)
Vacant Land$1,100,000
$6,355/yr taxListing Courtesy of RE/MAX GARDEN CITY REALTY INC, BROKERAGE
Similar Homes ?Similar Homes — Search CriteriaSearch Radius5 kmPrice Range±5%Match Home TypeYesMatch BedroomsYes

LOT 8 NORTH RIDGE Terrace, Kitchener
Vacant Land$629,000
$1/yr taxListing Courtesy of Royal LePage State Realty Inc.

4166 MARLBANK ROAD, Tweed (Hungerford (Twp))
Vacant Land$628,800
$3,947/yr taxListing Courtesy of RE/MAX COUNTRY CLASSICS LTD.

944 EVE STREET, Ottawa
Vacant Land$630,000
$3,910/yr taxListing Courtesy of POWER MARKETING REAL ESTATE INC.

0 CHRISTEL LANE, Frontenac (Frontenac South)
Vacant Land$625,000
$4,809/yr taxListing Courtesy of HomeLife Power Realty Inc

64 PAMILLA STREET, Ottawa
Vacant Land$625,000
$4,675/yr taxListing Courtesy of ROYAL LEPAGE INTEGRITY REALTY

66 PAMILLA STREET, Ottawa
Vacant Land$625,000
$3,583/yr taxListing Courtesy of ROYAL LEPAGE TEAM REALTY

3697 LOBSINGER Line, St. Clements
Vacant Land$625,000
$3,500/yr taxListing Courtesy of CENTURY 21 HERITAGE HOUSE LTD.

321 HARVEST LANE, Thames Centre
Condo$624,900
Listing Courtesy of BLUE FOREST REALTY INC.

LOT 7 FINAL PLAN 3M 268, Saugeen Shores
Vacant Land$624,000
$2,140/yr taxListing Courtesy of Sutton-Sound Realty

LOT 9 FINAL PLAN 3M 268, Saugeen Shores
Vacant Land$624,000
$1,944/yr taxListing Courtesy of Sutton-Sound Realty

64 - 1182 QUEEN STREET, Kincardine
Condo$634,900
Listing Courtesy of Benchmark Real Estate Services Canada Inc.

52 - 1182 QUEEN STREET, Kincardine
Condo$634,900
Listing Courtesy of Benchmark Real Estate Services Canada Inc.

30 - 1182 QUEEN STREET, Kincardine
Condo$634,900
Listing Courtesy of Benchmark Real Estate Services Canada Inc.

40 - 1182 QUEEN STREET, Kincardine
Condo$634,900
Listing Courtesy of Benchmark Real Estate Services Canada Inc.

28 - 1182 QUEEN STREET, Kincardine
Condo$634,900
Listing Courtesy of Benchmark Real Estate Services Canada Inc.
Similar Properties ?Active Comparables — Search CriteriaSearch Radius2 kmPrice Range±5%Match Home TypeYesMatch BedroomsYes
No active comparables found in this area.
No rental comparables found in this area.
Sold Comparables
Access to sold property data requires a registered and verified account with TRREB DDF integration.
Coming SoonRented Comparables
Access to rented property data requires a registered and verified account with TRREB DDF integration.
Coming SoonBook a Viewing
4446 MORRISON STREET, Niagara Falls (Downtown), Ontario, L2E2B3
