435 RAMBLEWOOD DRIVE, Wasaga Beach, Ontario, L9Z1P3
MLS: S12962904 | House (Freehold)
$650,000






























Property Description
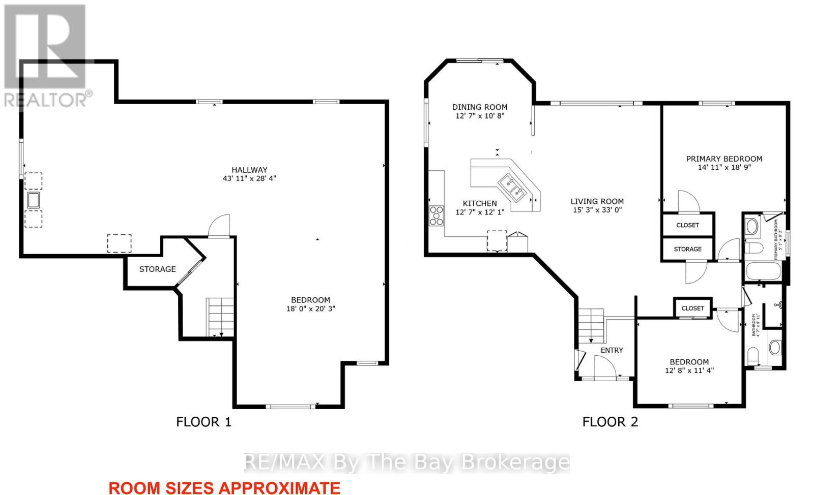
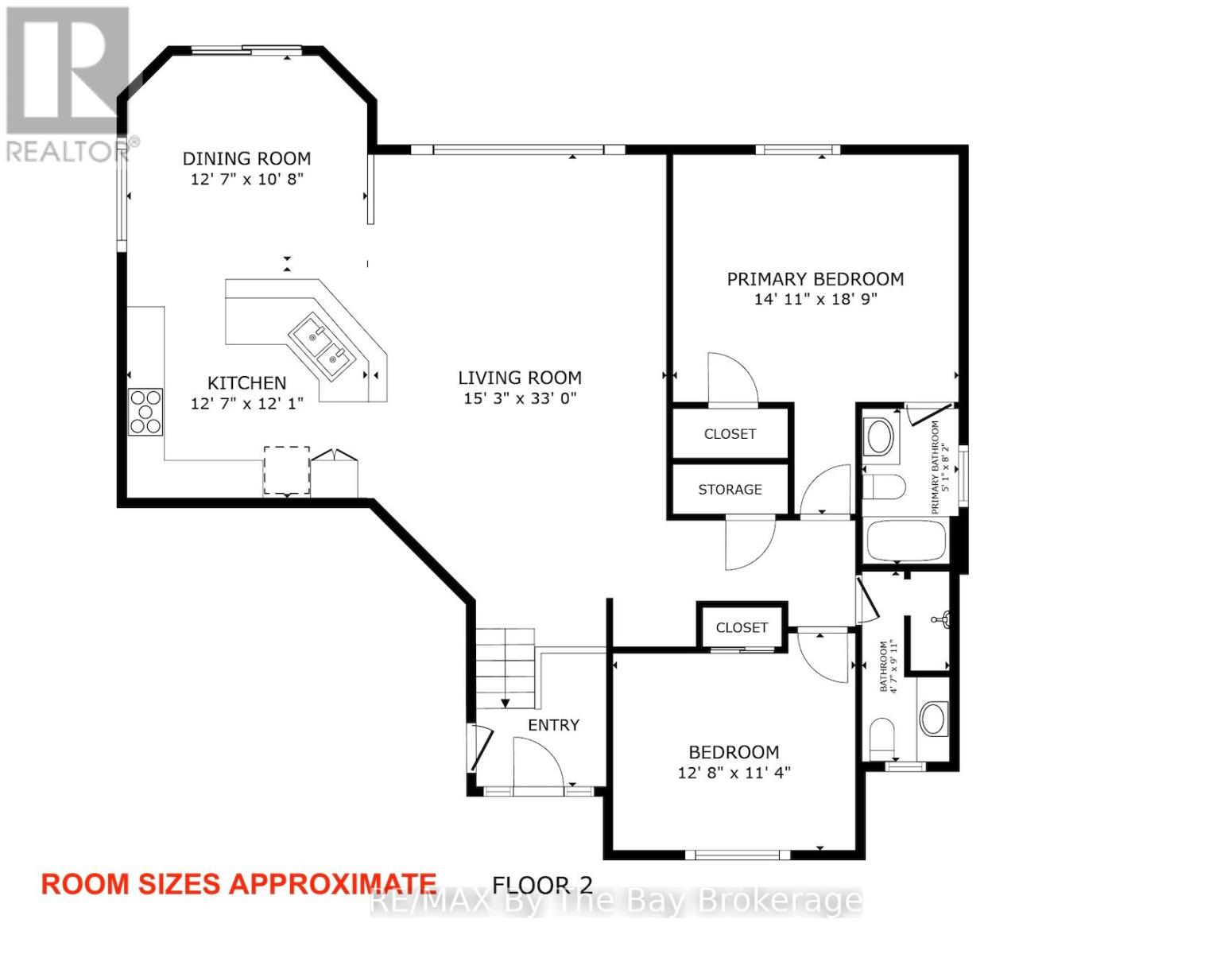
Finding a home that checks all the boxes isn't easy-especially when you want fewer bedrooms but more living space. Every search starts with a wish list: your wants, your needs, and your must-haves. But a two-bedroom main floor with room to truly live can be tricky? That's where this home stands out. With nearly 1,400 square feet, it might be exactly what you've been waiting for and located in one of Wasaga Beach's most mature and desirable neighbourhoods - a community loved by families, couples, and retirees alike.Step inside to a bright open-concept layout filled with natural light from a stunning wall of rear windows. The upgraded kitchen is the heart of the home, featuring newer quartz countertops and updated flooring, making it both stylish and practical for everyday living.The spacious living and dining area walks out to an extended concrete patio, perfect for relaxing, hosting friends, or enjoying the private backyard. Mature cedar trees along both sides add a peaceful feeling and extra privacy.The large primary bedroom includes its own 4-piece ensuite. A second bright bedroom with a cathedral ceiling and feature window sits beside the full main bath, ideal for guests, family, or a home office.The unfinished basement offers amazing future potential with high ceilings, large windows, and a bathroom rough-in already in place. There is plenty of room to add extra bedrooms, a large rec room, gym, or storage.Location makes this home even more special. The beach is just a short drive or a 20-minute walk away. You are also close to the casino, schools, shopping, and everyday amenities. Enjoy quick access to Collingwood for dining, boutiques, and services, while Blue Mountain Village is only 25 minutes away for skiing, golf, and year-round fun.A rare chance to enjoy spacious one-floor living in a mature and highly desirable neighbourhood. (id:64974)
Quick Facts
- Property Type: House (Freehold)
- Style: Raised bungalow
- Bedrooms: 2 (2 above)
- Bathrooms: 2
- Ownership: Freehold
- Attached: No
- Fireplaces: Yes
- Parking: 6.0 spaces (Attached Garage, Garage)
- Frontage: 59 ft (18 m)
Costs
- Annual Taxes: $3,693.00 (2025)
Listing Provided by: RE/MAX By The Bay Brokerage
Board: OnePoint Association of REALTORS®
Data provided via CREA DDF®.
Detailed Features
Interior & Systems
- Heating: Forced air, Electric
- Cooling: Central air conditioning
- Basement: Unfinished, Full
- Appliances: Washer, Refrigerator, Central Vacuum, Dishwasher, Stove, Dryer, Window Coverings
Exterior & Construction
- Style: Raised bungalow
- Exterior: Brick
- Foundation: Concrete
- Sewer: Sanitary sewer
- Water: Municipal water
Lot & Land
- Frontage: 59 ft (18 m)
Community & Neighbourhood
- Neighbourhood: Wasaga Beach
Room Details (5 rooms)
Listing Information
Listing History
MLS listing activity for 435 RAMBLEWOOD DRIVE, Wasaga Beach, Ontario, L9Z1P3 — dates reflect when changes were recorded in the DDF
🚗 Travel times
Neighborhood Walkability
Mortgage & Cost Calculators
Nearby Homes ?Nearby Homes — Search CriteriaSearch Radius1 kmPrice Range±5%Match BedroomsYesMatch BathroomsYes

437 RAMBLEWOOD DRIVE, Wasaga Beach
House$695,000
$4,061/yr taxListing Courtesy of RE/MAX By The Bay Brokerage

27 GREEN PINE CRESCENT, Wasaga Beach
House$830,000
$4,857/yr taxListing Courtesy of EXP REALTY

424 RAMBLEWOOD DRIVE, Wasaga Beach
House$849,900
$5,070/yr taxListing Courtesy of Royal LePage Locations North

5 SUGAR MAPLE LANE, Wasaga Beach
House$795,000
$4,881/yr taxListing Courtesy of Century 21 Millennium Inc.

121 ALLEGRA DRIVE, Wasaga Beach
House$1,188,000
$5,180/yr taxListing Courtesy of Enas Awad

16 GREEN PINE CRESCENT, Wasaga Beach
House$859,000
$5,035/yr taxListing Courtesy of Chestnut Park Real Estate

140 58TH STREET S, Wasaga Beach
House$1,059,000
$6,199/yr taxListing Courtesy of REMAX YOUR COMMUNITY REALTY

164 ALLEGRA DRIVE, Wasaga Beach
Row / Townhouse$677,000
$3,622/yr taxListing Courtesy of CENTURY 21 LEADING EDGE REALTY INC.

99 LILY DRIVE, Wasaga Beach
House$983,400
$4,417/yr taxListing Courtesy of RE/MAX By The Bay Brokerage

75 62ND STREET S, Wasaga Beach
House$799,000
$3,634/yr taxListing Courtesy of RE/MAX HALLMARK CHAY REALTY

71 61ST STREET S, Wasaga Beach
House$879,900
$4,061/yr taxListing Courtesy of RE/MAX ULTIMATE REALTY INC.

63 RODRIUM ROAD, Wasaga Beach
House$879,000
$3,729/yr taxListing Courtesy of RE/MAX By The Bay Brokerage

49 SIMONA AVENUE, Wasaga Beach
House$899,900
$4,655/yr taxListing Courtesy of RIGHT AT HOME REALTY

BSMT - 36 60TH STREET S, Wasaga Beach
House$1,950/mo
Listing Courtesy of REMAX YOUR COMMUNITY REALTY

174 MAPLESIDE DRIVE, Wasaga Beach
House$1,049,990
Listing Courtesy of RE/MAX By The Bay Brokerage
Similar Homes ?Similar Homes — Search CriteriaSearch Radius5 kmPrice Range±5%Match Home TypeYesMatch BedroomsYes

70 ROSE VALLEY WAY, Wasaga Beach
House$618,000
$3,254/yr taxListing Courtesy of RE/MAX By The Bay Brokerage

3604 - 10 YONGE STREET, Toronto (Waterfront Communities)
Condo - Apartment$650,000
$2,866/yr taxListing Courtesy of ICI SOURCE REAL ASSET SERVICES INC.

502 - 78 TECUMSETH STREET, Toronto (Niagara)
Condo - Apartment$650,000
$3,522/yr taxListing Courtesy of ZOLO REALTY

44 LETT AVENUE, Collingwood
Row / Townhouse$650,000
$4,613/yr taxListing Courtesy of RE/MAX Four Seasons Realty Limited

33 WOODSTOCK AVENUE, Northern Bruce Peninsula
House$650,000
$2,720/yr taxListing Courtesy of RE/MAX Grey Bruce Realty Inc.

4609 - 3 CONCORD CITYPLACE WAY, Toronto (Waterfront Communities)
Condo - Apartment$650,000
Listing Courtesy of NU STREAM REALTY (TORONTO) INC.

2012 - 88 QUEEN STREET E, Toronto (Church-Yonge Corridor)
Condo - Apartment$650,000
$3,567/yr taxListing Courtesy of RE/MAX CROSSROADS REALTY INC.

1506 - 28 INTERCHANGE WAY, Vaughan (Vaughan Corporate Centre)
Condo - Apartment$650,000
$3,682/yr taxListing Courtesy of EASTIDE REALTY

102 - 101 SUBWAY CRESCENT, Toronto (Islington-City Centre West)
Condo - Apartment$650,000
$2,218/yr taxListing Courtesy of ROYAL LEPAGE SIGNATURE REALTY

21062 LOYALIST PARKWAY, Prince Edward County (Ameliasburg Ward)
House$650,000
$3,639/yr taxListing Courtesy of ROYAL LEPAGE REAL ESTATE SERVICES LTD.

507 - 38 JOE SHUSTER WAY, Toronto (Niagara)
Condo - Apartment$650,000
$2,918/yr taxListing Courtesy of ROYAL LEPAGE SIGNATURE REALTY

35 HICKERY Place, Brantford
House$650,000
$3,964/yr taxListing Courtesy of Re/Max Twin City Realty Inc

115 ROBINSON STREET, Collingwood
House$650,000
$2,811/yr taxListing Courtesy of Royal LePage Locations North

238 PARK AVENUE, Carleton Place
House$650,000
$3,286/yr taxListing Courtesy of ROYAL LEPAGE TEAM REALTY

2408 - 38 GRENVILLE STREET, Toronto (Bay Street Corridor)
Condo - Apartment$650,000
$3,440/yr taxListing Courtesy of MASTER'S CHOICE REALTY INC.
Similar Properties ?Active Comparables — Search CriteriaSearch Radius2 kmPrice Range±5%Match Home TypeYesMatch BedroomsYes
No active comparables found in this area.
No rental comparables found in this area.
Sold Comparables
Access to sold property data requires a registered and verified account with TRREB DDF integration.
Coming SoonRented Comparables
Access to rented property data requires a registered and verified account with TRREB DDF integration.
Coming SoonBook a Viewing
435 RAMBLEWOOD DRIVE, Wasaga Beach, Ontario, L9Z1P3
