4306 - 4065 CONFEDERATION PARKWAY, Mississauga (City Centre), Ontario, L5B0L4
MLS: W12843570 | Apartment (Condo)
$2,350.00 / monthly










































Property Description
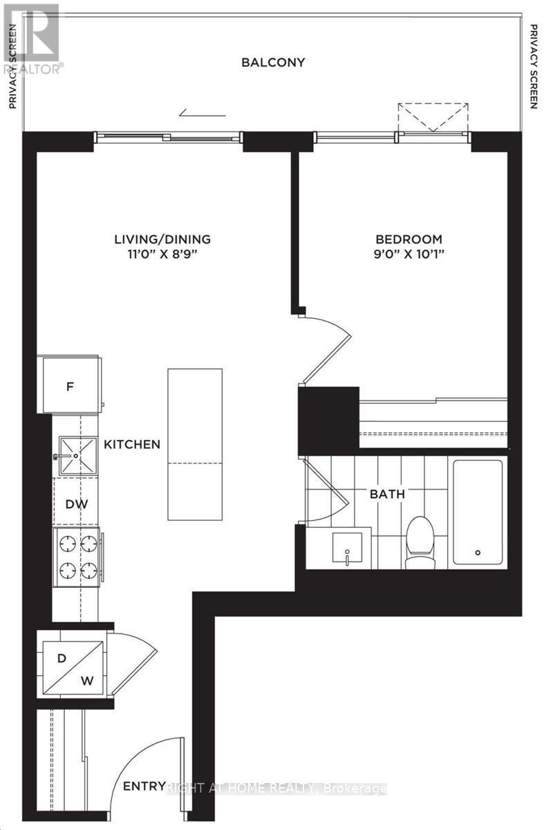
Experience Luxury Living in the Sky! Welcome to the Penthouse at Daniels Wesley Towers where breathtaking, unobstructed east-facing views meet modern sophistication. This stunning 43rd-floor 1-bedroom, 1-bath suite offers an airy open-concept layout, soaring 9-ft ceilings, and elegant quartz countertops throughout.Enjoy an abundance of natural light streaming through floor-to-ceiling windows while taking in the panoramic skyline of Mississauga City Centre. Perfectly located steps from Square One, Sheridan College, MiWay Transit, restaurants, and entertainment, this suite puts everything you need right at your doorstep.Live above it all refined comfort, urban convenience, and unbeatable views await you. (id:64974)
Quick Facts
- Property Type: Apartment (Condo)
- Bedrooms: 1 (1 above)
- Bathrooms: 1
- Ownership: Condo/Strata
- Attached: Yes
- Parking: 1 space (Garage, Underground)
Listing Provided by: RIGHT AT HOME REALTY
Board: Toronto Regional Real Estate Board
Data provided via CREA DDF®.
Detailed Features
Interior & Systems
- Heating: Forced air, Natural gas
- Cooling: Central air conditioning
- Basement: None
Exterior & Construction
- Exterior: Concrete
Lot & Land
- Features: Balcony
- View: City view
Community & Neighbourhood
- Community: Community Centre, Pets Allowed With Restrictions
- Building: Storage - Locker, Exercise Centre, Party Room, Security/Concierge, Visitor Parking
- Neighbourhood: City Centre
Room Details (3 rooms)
Listing Information
Listing History
Buy/Sell/Terminated/Expired listing history for 4306 - 4065 CONFEDERATION PARKWAY, Mississauga (City Centre), Ontario, L5B0L4
Location & Neighborhood
🚗 Travel times
Neighborhood Walkability
Mortgage & Cost Calculators
Nearby Homes (Within 2km)
Similar Homes
Similar Properties
Sold Comparables
Access to sold property data requires a registered and verified account with TRREB DDF integration.
Coming SoonRented Comparables
Access to rented property data requires a registered and verified account with TRREB DDF integration.
Coming Soon
































