43 SCOTT STREET, Niagara-on-the-Lake (Lakeshore), Ontario, L0S1J0
MLS: X12940010 | House (Freehold)
$1,499,000














































Property Description
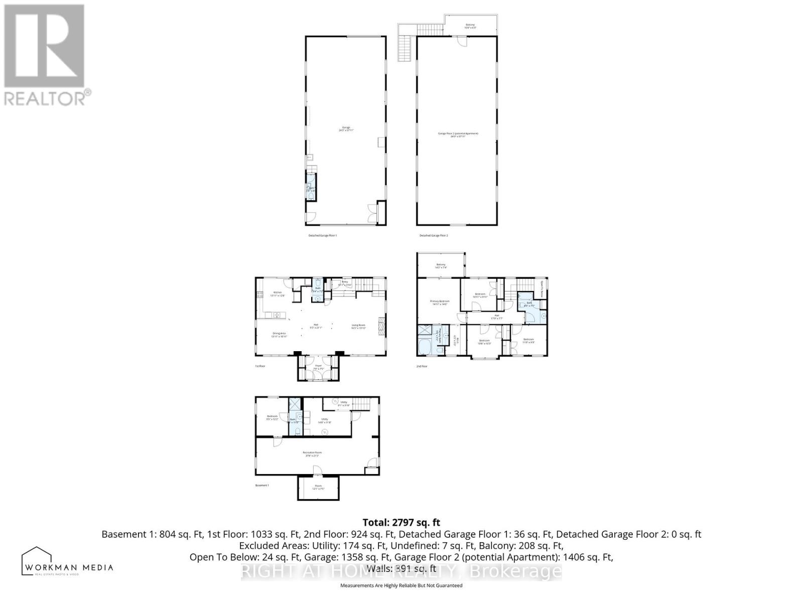
Experience the pinnacle of craftsmanship in this impeccably rebuilt Niagara-on-the-Lake estate. Nestled on close to 3/4 acre rural lot, this 5 bedroom, 4 bathroom custom home with over 3,000 finished sqft is for the discerning buyer who values true solid and quality construction. PLEASE SEE PHOTO #3 FOR MORE PROPERTY DETAILS & INCLUSIONS. In the main residence, you will find warm deep wood trims, gleaming hardwood floors, large open living + dining spaces with many windows to bring in the light from all sides of the home. Chef's kitchen is outfitted with stone countertops, under-mount sink, and top-tier cabinetry, open to the backyard, hot tub, and in the distance, mature trees + a fire pit to enjoy those family summer evenings. There are 3 outdoor covered porch spaces to enjoy. The upper level includes 4 bedrooms on one floor, perfect for families, & 2 bathrooms including an ensuite and walk-in closet with built-ins. There are 2 laundry areas conveniently located. The lower level is completely finished with hi-end luxury flooring and includes living room, bedroom + bathroom, and additional storage. BONUS PROPERTY FEATURES: IMMACULATE INSULATED 6 CAR HEATED GARAGE, EV charger, workshop including bathroom, 600 volt power for 220 & 110 outlets. Perfect for any home based business. Plus EXTRA BONUS (Rarely Offered): 2nd level space - almost 1500 sqft! Ready to be transformed to a luxury guest house, second residence, or home based offices. Unbeatable location in Niagara-on-the-Lake - close to world class theatre, wineries, + dining experiences. A peaceful retreat, yet very close to all modern amenities. Huge opportunity here - MUST SEE!! **INCLUDED: John Deere Riding Mower with Trailer, tool cabinet in garage, snowblower, all appliances as seen in photos**and so much more!!! (id:64974)
Quick Facts
- Property Type: House (Freehold)
- Bedrooms: 5 (4 above, 1 below)
- Bathrooms: 5 (2 half)
- Ownership: Freehold
- Attached: No
- Parking: 16.0 spaces (Detached Garage, Garage)
- Frontage: 100 ft (30.5 m)
Costs
- Annual Taxes: $6,122.00
Listing Provided by: RIGHT AT HOME REALTY
Board: Toronto Regional Real Estate Board
Data provided via CREA DDF®.
Detailed Features
Interior & Systems
- Heating: Forced air, Natural gas
- Cooling: Central air conditioning
- Basement: Finished, Full
- Appliances: Washer, Refrigerator, Central Vacuum, Stove, Dryer, Microwave, Freezer, Window Coverings, Garage door opener
Exterior & Construction
- Exterior: Wood, Stone
- Foundation: Block
- Sewer: Septic System
- Water: Cistern
Lot & Land
- Frontage: 100 ft (30.5 m)
Community & Neighbourhood
- Neighbourhood: 102 - Lakeshore
Room Details (16 rooms)
Listing Information
Listing History
MLS listing activity for 43 SCOTT STREET, Niagara-on-the-Lake (Lakeshore), Ontario, L0S1J0 — dates reflect when changes were recorded in the DDF
🚗 Travel times
Neighborhood Walkability
Mortgage & Cost Calculators
Nearby Homes ?Nearby Homes — Search CriteriaSearch Radius1 kmPrice Range±5%Match BedroomsYesMatch BathroomsYes

43 SCOTT Street, Niagara-on-the-Lake
House$1,499,000
$6,122/yr taxListing Courtesy of Right at Home Realty

18 BIAGI Court, St. Catharines
Row / Townhouse$719,000
$5,758/yr taxListing Courtesy of RE/MAX Escarpment Realty Inc.

18 BIAGI COURT, St. Catharines (Bunting/Linwell)
Row / Townhouse$719,000
$5,758/yr taxListing Courtesy of RE/MAX ESCARPMENT REALTY INC.
Similar Homes ?Similar Homes — Search CriteriaSearch Radius5 kmPrice Range±5%Match Home TypeYesMatch BedroomsYes

43 SCOTT Street, Niagara-on-the-Lake
House$1,499,000
$6,122/yr taxListing Courtesy of Right at Home Realty

15 FACER STREET, St. Catharines (Facer)
House$1,499,900
$2,578/yr taxListing Courtesy of ROYAL LEPAGE NRC REALTY

73 BROCK STREET, Oakville (CO Central)
House$1,499,000
$7,520/yr taxListing Courtesy of Toronto Regional Real Estate Board

4501 - 16 HARBOUR STREET, Toronto (Waterfront Communities)
Condo - Apartment$1,499,000
$5,972/yr taxListing Courtesy of BOSLEY REAL ESTATE LTD.

1273 CLARKSON ROAD, Mississauga (Clarkson)
House$1,499,000
$9,232/yr taxListing Courtesy of SUTTON GROUP QUANTUM REALTY INC.

38 CARRIAGE HOUSE COURT, Richmond Hill (Jefferson)
Row / Townhouse$1,499,000
$6,677/yr taxListing Courtesy of MAIN STREET REALTY LTD.

391 MAPLE AVENUE, Oakville (OO Old Oakville)
House$1,499,000
$6,352/yr taxListing Courtesy of BAY STREET INTEGRITY REALTY INC.

409 GALLIVAN DRIVE, Selwyn
House$1,499,000
$5,223/yr taxListing Courtesy of RE/MAX HALLMARK EASTERN REALTY

1081 BEACH BOULEVARD, Hamilton (Hamilton Beach)
Row / Townhouse$1,499,000
$11,159/yr taxListing Courtesy of KELLER WILLIAMS EDGE REALTY

61 CAMBRIDGE STREET, Guelph (Downtown)
House$1,499,000
$8,260/yr taxListing Courtesy of Royal LePage Royal City Realty

1081 BEACH Boulevard, Hamilton
Row / Townhouse$1,499,000
$11,159/yr taxListing Courtesy of Keller Williams Edge Realty

41 HAMPTONBROOK DRIVE, Toronto (Willowridge-Martingrove-Richview)
House$1,499,000
$4,985/yr taxListing Courtesy of SUTTON GROUP-ADMIRAL REALTY INC.

86 LAKESHORE ROAD W, Oakville (CO Central)
Row / Townhouse$1,499,000
$8,948/yr taxListing Courtesy of INTERCITY REALTY INC.

38 WINDERMERE CIRCLE, Tay
House$1,499,000
$6,877/yr taxListing Courtesy of REMAX YOUR COMMUNITY REALTY

305 GOSLING GARDENS, Guelph (Clairfields/Hanlon Business Park)
House$1,499,000
$9,267/yr taxListing Courtesy of RE/MAX ABOUTOWNE REALTY CORP.
Similar Properties ?Active Comparables — Search CriteriaSearch Radius2 kmPrice Range±5%Match Home TypeYesMatch BedroomsYes
No rental comparables found in this area.
Sold Comparables
Access to sold property data requires a registered and verified account with TRREB DDF integration.
Coming SoonRented Comparables
Access to rented property data requires a registered and verified account with TRREB DDF integration.
Coming SoonBook a Viewing
43 SCOTT STREET, Niagara-on-the-Lake (Lakeshore), Ontario, L0S1J0
