43 MEARS PLACE, Brant (Paris), Ontario, N3L0M6
MLS: X12978530 | House (Freehold)
$1,249,888














































Property Description
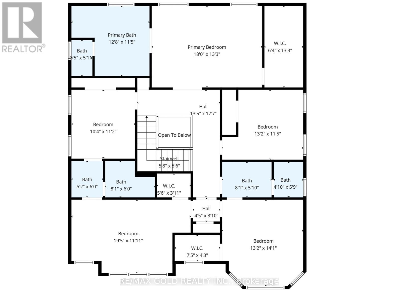
Welcome to 43 Mears Place in the highly sought-after Paris Riverside community. Built in 2024, this upgraded Wildflower model offers over 3,300 sq ft of refined living space with 5 bedrooms and 4 bathrooms-perfect for modern family living. Designed with both style and function in mind, the home features a bright open-concept layout with oversized windows that flood the space with natural light, including upgraded enlarged basement windows for added versatility. The kitchen is a true standout, showcasing upgraded countertops, a stylish backsplash, gas stove, premium appliances, and a large centre island-ideal for everyday living and entertaining. Elegant touches such as upgraded staircase railings, designer light fixtures, and zebra blinds elevate the home throughout, while a full water purification system adds an extra level of comfort and quality. The main floor flows seamlessly into a warm family room with a gas fireplace, complemented by hardwood flooring, smooth ceilings, and convenient laundry with direct garage access. Upstairs, the spacious primary suite offers a walk-in closet and private en-suite, with well-appointed secondary bedrooms and additional bathrooms designed for growing families. Situated on a premium ravine lot with an exterior gas line, this home offers the perfect blend of luxury, practicality, and location-just minutes from downtown Paris, parks, amenities, and highway access. (id:64974)
Quick Facts
- Property Type: House (Freehold)
- Bedrooms: 5 (5 above)
- Bathrooms: 4 (1 half)
- Ownership: Freehold
- Attached: No
- Fireplaces: Yes
- Parking: 4.0 spaces (Detached Garage, Garage)
- Frontage: 43 ft (13.2 m)
Costs
- Annual Taxes: $7,301.00
Listing Provided by: RE/MAX GOLD REALTY INC.
Board: Toronto Regional Real Estate Board
Data provided via CREA DDF®.
Detailed Features
Interior & Systems
- Heating: Forced air, Natural gas
- Cooling: Central air conditioning
- Basement: Unfinished, Full
- Appliances: Water meter, Water purifier, Water softener, Water Heater
Exterior & Construction
- Exterior: Brick
- Foundation: Poured Concrete
- Sewer: Sanitary sewer
- Water: Municipal water
Lot & Land
- Frontage: 43 ft (13.2 m)
Community & Neighbourhood
- Neighbourhood: Paris
Listing Information
Listing History
MLS listing activity for 43 MEARS PLACE, Brant (Paris), Ontario, N3L0M6 — dates reflect when changes were recorded in the DDF
🚗 Travel times
Neighborhood Walkability
Mortgage & Cost Calculators
Nearby Homes ?Nearby Homes — Search CriteriaSearch Radius1 kmPrice Range±5%Match BedroomsYesMatch BathroomsYes

26 FORD Street, Paris
House$1,500/mo
Listing Courtesy of Real Broker Ontario Ltd.

34 MEARS ROAD, Brant (Paris)
House$3,800/mo
Listing Courtesy of SUTTON GROUP REALTY SYSTEMS INC.

25 HEMING STREET, Brant (Paris)
House$849,900
$5,443/yr taxListing Courtesy of RE/MAX METROPOLIS REALTY

9 MEARS Road, Paris
House$829,999
$4,963/yr taxListing Courtesy of HOMELIFE MIRACLE REALTY LTD

5 BRADBURY Crescent, Paris
House$899,900
$4,555/yr taxListing Courtesy of Corcoran Horizon Realty

139 WILLOW STREET, Brant (Paris)
House$399,900
$1,858/yr taxListing Courtesy of RE/MAX ESCARPMENT REALTY INC.

139 WILLOW Street, Paris
House$399,900
$1,858/yr taxListing Courtesy of Re/Max Escarpment Realty Inc.

5 BRADBURY CRESCENT, Brant (Paris)
House$899,900
$4,555/yr taxListing Courtesy of CORCORAN HORIZON REALTY

1 JOHN AVENUE, Brant (Paris)
House$599,999
$3,105/yr taxListing Courtesy of ROYAL LEPAGE NRC REALTY

1 JOHN Avenue, Paris
House$599,999
$3,105/yr taxListing Courtesy of Royal LePage NRC Realty Inc.
Similar Homes ?Similar Homes — Search CriteriaSearch Radius5 kmPrice Range±5%Match Home TypeYesMatch BedroomsYes

33 LONG LANE, Brant (Paris)
House$1,199,999
$6,402/yr taxListing Courtesy of Gale Group Realty Brokerage Ltd

2 IRONGATE Drive, Paris
House$1,299,900
$6,126/yr taxListing Courtesy of RE/MAX REAL ESTATE CENTRE INC. BROKERAGE-3

2 IRONGATE DRIVE, Brant (Paris)
House$1,299,900
$6,126/yr taxListing Courtesy of RE/MAX REAL ESTATE CENTRE INC.

31 PRADY LANE, New Tecumseth (Tottenham)
House$1,249,888
$5,497/yr taxListing Courtesy of ROYAL LEPAGE PREMIUM ONE REALTY

2078 STANFIELD ROAD, Mississauga (Lakeview)
House$1,249,888
$7,682/yr taxListing Courtesy of INSIDER REALTY

24 BIRCH GROVE DRIVE, Oro-Medonte (Horseshoe Valley)
House$1,249,900
$4,542/yr taxListing Courtesy of Realty Executives Plus Ltd

345 TWEEDSMUIR AVENUE, Ottawa
House$1,249,900
$6,185/yr taxListing Courtesy of ROYAL LEPAGE PERFORMANCE REALTY

76 NAVIGATION DRIVE, Prince Edward County (Ameliasburg Ward)
House$1,249,900
$7,094/yr taxListing Courtesy of RE/MAX QUINTE LTD.

105 FRASER LANE, Elizabethtown-Kitley
House$1,249,900
$7,721/yr taxListing Courtesy of RE/MAX RISE EXECUTIVES

137 INSPIRE BOULEVARD, Brampton (Sandringham-Wellington)
Row / Townhouse$1,249,900
$9,275/yr taxListing Courtesy of RE/MAX GOLD REALTY INC.

4053 WATSON Road S, Puslinch
House$1,249,900
$7,266/yr taxListing Courtesy of Royal LePage Burloak Real Estate Services

17 BIGGAR ROAD, Thorold (Port Robinson)
House$1,249,900
$7,588/yr taxListing Courtesy of Century 21 Heritage House LTD

2160 LINKWAY BOULEVARD, London South (South A)
House$1,249,900
Listing Courtesy of CENTURY 21 FIRST CANADIAN CORP

GPH32 - 280 HOWLAND AVENUE, Toronto (Annex)
Condo - Apartment$1,249,900
$5,497/yr taxListing Courtesy of KELLER WILLIAMS REFERRED URBAN REALTY

32 OAKSIDE DRIVE, Uxbridge
House$1,249,900
$7,025/yr taxListing Courtesy of RE/MAX ALL-STARS REALTY INC.
Similar Properties ?Active Comparables — Search CriteriaSearch Radius2 kmPrice Range±5%Match Home TypeYesMatch BedroomsYes
No active comparables found in this area.
No rental comparables found in this area.
Sold Comparables
Access to sold property data requires a registered and verified account with TRREB DDF integration.
Coming SoonRented Comparables
Access to rented property data requires a registered and verified account with TRREB DDF integration.
Coming SoonBook a Viewing
43 MEARS PLACE, Brant (Paris), Ontario, N3L0M6
