43 JUDD Drive, Simcoe, Ontario, N3Y4Y8
MLS: 40797926 | House (Freehold)
$799,900




Property Description
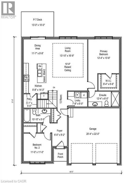
Stunning new bungalow TO BE BUILT in the quaint town of Simcoe. This modern 1512 sq. ft. home offers the perfect combination of convenience and style. Ideally located near shopping, restaurants, schools, and Highway 3 for easy commuting, this home is perfect for busy families and professionals alike. Step inside and experience the spaciousness of 9 ft ceilings throughout, with a grand 10 ft tray ceiling in the living room and raised ceiling in the second bedroom. The main floor features two generous bedrooms, including a primary suite with a luxurious ensuite bath, complete with a tiled shower and glass door. This home will feature a charming brick and stone exterior, along with a covered front porch and an expansive rear covered concrete porch—perfect for enjoying your outdoor space in comfort. The oversized garage with insulated doors provides direct access to the foyer, offering both convenience and practicality. As a new build, you’ll have the exciting opportunity to personalize your dream home by selecting cabinets, countertops, flooring, ensuite tiles, plumbing fixtures, light fixtures, front door, and paint colors. The unfinished basement provides possibilities for future expansion—whether you choose to create a cozy entertainment area, additional bedrooms, or a home office, the choice is yours. Don’t miss out on this incredible opportunity to own a brand-new home in Simcoe. Book your appointment to start picking out your finishes. (id:64974)
Quick Facts
- Property Type: House (Freehold)
- Style: Bungalow
- Bedrooms: 3 (2 above, 1 below)
- Bathrooms: 3
- Living Area: 1,512 sq ft (140.5 m²)
- Above Grade: 1,512 sq ft (140.5 m²)
- Ownership: Freehold
- Attached: No
- Parking: 4 spaces (Attached Garage)
- Frontage: 52 ft (15.8 m)
Listing Provided by: RE/MAX Erie Shores Realty Inc. Brokerage
Board: Cornerstone Association of REALTORS®
Data provided via CREA DDF®.
Detailed Features
Interior & Systems
- Heating: Forced air, Natural gas
- Cooling: Central air conditioning
- Basement: Unfinished, Full
- Appliances: Garage door opener
- Security: Smoke Detectors
Exterior & Construction
- Style: Bungalow
- Exterior: Brick, Stone
- Foundation: Poured Concrete
- Sewer: Municipal sewage system
- Water: Municipal water
Lot & Land
- Frontage: 52 ft (15.8 m)
- Features: Paved driveway, Sump Pump, Automatic Garage Door Opener
- Zoning: R1-A(H)
Community & Neighbourhood
- Subdivision: Town of Simcoe
Room Details (15 rooms)
Listing Information
Listing History
Buy/Sell/Terminated/Expired listing history for 43 JUDD Drive, Simcoe, Ontario, N3Y4Y8
Location & Neighborhood
🚗 Travel times
Neighborhood Walkability
Mortgage & Cost Calculators
Nearby Homes (Within 2km)
Similar Homes
Similar Properties
No rental comparables found in this area.
Sold Comparables
Access to sold property data requires a registered and verified account with TRREB DDF integration.
Coming SoonRented Comparables
Access to rented property data requires a registered and verified account with TRREB DDF integration.
Coming Soon

























