429528 8TH CONCESSION B, Grey Highlands, Ontario, N0C1M0
MLS: X12841862 | House (Freehold)
$799,000








































Property Description
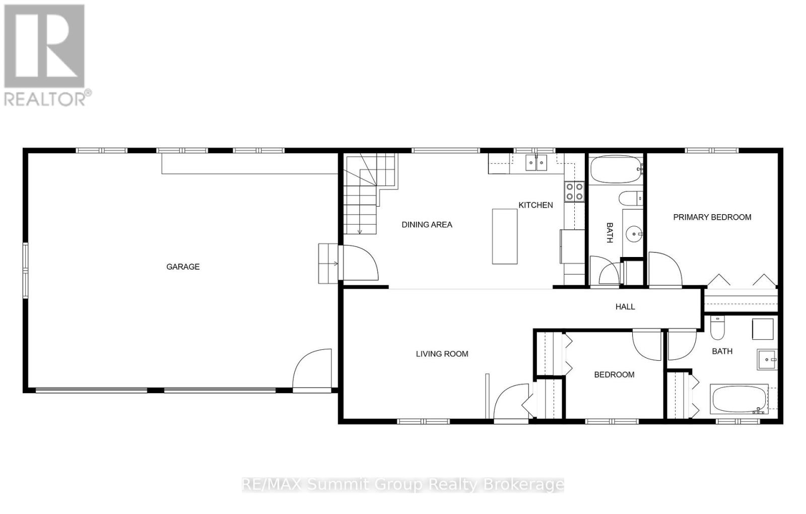
Space. Flexibility. Rental potential. This 2+1 bedroom, 3 bath bungalow on just under two acres brings it all together in one thoughtfully designed property, just 15 minutes from Collingwood. Surrounded by mature trees, a pond, & a natural wetland that welcomes ducks each spring, it offers privacy & country calm without sacrificing convenience. Inside, the open-concept main floor is bright & functional. The kitchen, dining, & living areas flow easily together, creating a space that works beautifully for everyday living & for hosting friends & family. The primary bedroom is steps from a full bath with a soaker tub, & main floor laundry adds practical ease. The 2nd bedroom has its own dedicated bathroom across the hall, creating a layout that feels both comfortable & intentional. The finished walkout basement adds a layer of flexibility that today's buyers appreciate. Designed as a fully self-contained suite with its own kitchenette, full bath, separate laundry, & private access, it offers genuine independence while remaining connected to the main home. For multi-generational families, it provides a comfortable, private living space where everyone can enjoy their own routine under one roof. For those considering rental income, the separation & full amenities create a strong long-term opportunity. Live in one level & lease the other, or simply enjoy the space entirely for yourself. Outside, the lifestyle continues. The oversized 24' x 30' garage offers plenty of room for vehicles, snowmobiles, ATVs, or projects. A chicken coop offers the option of fresh eggs from your own yard, & the included sea can provides secure storage for seasonal gear & equipment. The backyard feels peaceful & private, complete with the seller's favourite feature, the outdoor shower. Once you've experienced it, you'll understand why it's hard to give up. The gazebo-covered back deck is the perfect place to unwind, whether it's morning coffee or a quiet evening taking in the trees & wildlife. (id:64974)
Quick Facts
- Property Type: House (Freehold)
- Style: Bungalow
- Bedrooms: 3 (2 above, 1 below)
- Bathrooms: 3
- Ownership: Freehold
- Attached: No
- Parking: 10 spaces (Attached Garage, Garage)
- Frontage: 330 ft (100.6 m)
Costs
- Annual Taxes: $3,672.92 (2026)
Listing Provided by: RE/MAX Summit Group Realty Brokerage
Board: OnePoint Association of REALTORS®
Data provided via CREA DDF®.
Detailed Features
Interior & Systems
- Heating: Forced air, Propane
- Cooling: None
- Basement: Finished, Full
- Appliances: Washer, Refrigerator, Water softener, Dishwasher, Stove, Dryer, Garage door opener, Water Heater
Exterior & Construction
- Style: Bungalow
- Exterior: Vinyl siding
- Foundation: Poured Concrete
- Sewer: Septic System
- Water: Drilled Well
Lot & Land
- Frontage: 330 ft (100.6 m)
- Zoning: RUR-h, RU-h, ND-h, H-h, W
Community & Neighbourhood
- Neighbourhood: Grey Highlands
Room Details (8 rooms)
Listing Information
Listing History
Buy/Sell/Terminated/Expired listing history for 429528 8TH CONCESSION B, Grey Highlands, Ontario, N0C1M0
Location & Neighborhood
🚗 Travel times
Neighborhood Walkability
Mortgage & Cost Calculators
Nearby Homes (Within 2km)
Similar Homes
Similar Properties
No rental comparables found in this area.
Sold Comparables
Access to sold property data requires a registered and verified account with TRREB DDF integration.
Coming SoonRented Comparables
Access to rented property data requires a registered and verified account with TRREB DDF integration.
Coming Soon

















