421 RICHMOND STREET E, London East (East F), Ontario, N6A3C8
MLS: X12891800 | Business
$88,000

























Property Description
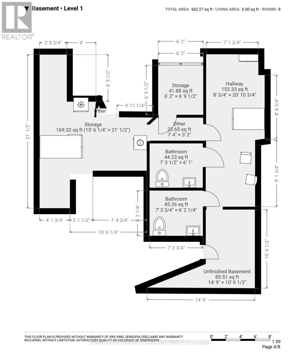
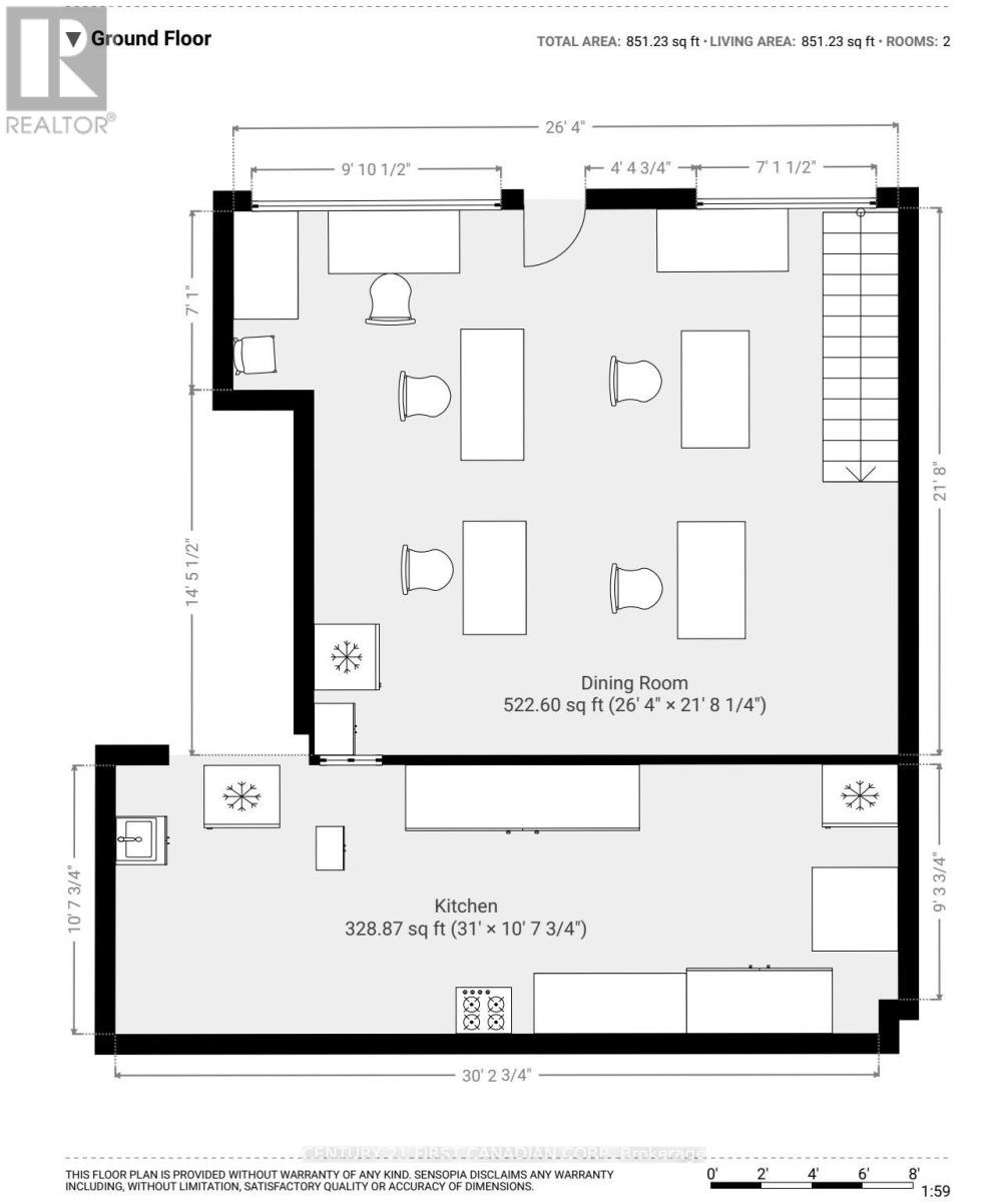
Very rare opportunity on Richmond Row! This turnkey restaurant located in a prime area with high pedestrian traffic, the property benefits from a bus stop right at the front door and close proximity to Fanshawe College, bringing consistent activity and visibility.The owner has spared no expense in designing and building out this premier location, making it completely move-in ready and eliminating the usual setup headaches. Features include a newer hood system (2019), updated appliances, newer electrical system and newer furniture throughout.With low gross rent of $2,500 and convenient 2-hour free street parking on weekends, this space is ideally positioned across from Scotiabank and close to Citi Plaza and London Music Hall, attracting steady daily traffic. 25 seats. Above ground size of 851 sqft. Partially finished basement for more storage space and 2 bathrooms. Don't miss this rare opportunity to own a fully equipped restaurant in one of the city's busiest corridors (id:64974)
Quick Facts
- Property Type: Business
- Bedrooms: None
- Bathrooms: 2
- Living Area: 851 sq ft (79.1 m²)
Listing Provided by: CENTURY 21 FIRST CANADIAN CORP
Board: London and St. Thomas Association of REALTORS®
Data provided via CREA DDF®.
Detailed Features
Interior & Systems
- Heating: Forced air, Natural gas
- Cooling: Partially air conditioned, Fully air conditioned
Exterior & Construction
- Water: Municipal water
Lot & Land
- Zoning: DA1
Community & Neighbourhood
- Neighbourhood: East F
Listing Information
Listing History
MLS listing activity for 421 RICHMOND STREET E, London East (East F), Ontario, N6A3C8 — dates reflect when changes were recorded in the DDF
🚗 Travel times
Neighborhood Walkability
Mortgage & Cost Calculators
Similar Homes ?Similar Homes — Search CriteriaSearch Radius5 kmPrice Range±5%Match Home TypeYesMatch BedroomsYes

UNIT 4 & 4-1 & 4-2 - 443 THE QUEENSWAY S, Georgina (Keswick South)
Business$88,000
$14/yr taxListing Courtesy of EXP REALTY

4C - 1474 PICKWICK DRIVE, Mississauga (East Credit)
Business$88,000
Listing Courtesy of RE/MAX ULTIMATE REALTY INC.

246 - 7181 YONGE STREET, Markham (Thornhill)
Business$88,000
Listing Courtesy of RE/MAX REALTRON SMART CHOICE TEAM

10 ROPER ROAD, Toronto (Clairlea-Birchmount)
Business$88,500
Listing Courtesy of SUTTON GROUP-ADMIRAL REALTY INC.

4 - 1179 BAYFIELD STREET N, Springwater (Midhurst)
Business$89,000
$1/yr taxListing Courtesy of ROYAL LEPAGE PRG REAL ESTATE

FC 7 - 280 GUELPH STREET, Halton Hills (Georgetown)
Business$89,000
Listing Courtesy of RE/MAX ABOUTOWNE REALTY CORP.

11 - 170 FINCHDENE SQUARE, Toronto (Rouge)
Business$89,000
Listing Courtesy of RE/MAX COMMUNITY REALTY INC.

7 - 9525 MISSISSAUGA ROAD, Brampton (Credit Valley)
Business$89,000
Listing Courtesy of EXP REALTY

486 FRONT STREET, Toronto (Waterfront Communities)
Business$89,000
Listing Courtesy of ROYAL LEPAGE REAL ESTATE SERVICES LTD.

5415 YONGE STREET, Toronto (Willowdale East)
Business$89,000
$887/yr taxListing Courtesy of TERRA REALTY INC.

42 DEWSON STREET E, Toronto (Palmerston-Little Italy)
Business$89,000
$1,300/yr taxListing Courtesy of CENTURY 21 HERITAGE GROUP LTD.

C-65 - 444 YONGE STREET, Toronto (Bay Street Corridor)
Business$89,000
Listing Courtesy of AREA REALTY INC.

65 - 280 GUELPH STREET, Halton Hills (Georgetown)
Business$89,000
Listing Courtesy of RE/MAX GOLD REALTY INC.

35 - 101 TORO ROAD, Toronto (York University Heights)
Business$86,900
$5,079/yr taxListing Courtesy of HOMELIFE/ROMANO REALTY LTD.

200 BROCK STREET S, Whitby (Downtown Whitby)
Business$89,900
Listing Courtesy of FIRST CLASS REALTY INC.
Similar Properties ?Active Comparables — Search CriteriaSearch Radius2 kmPrice Range±5%Match Home TypeYesMatch BedroomsYes

UNIT 4 & 4-1 & 4-2 - 443 THE QUEENSWAY S, Georgina (Keswick South)
Business$88,000
$14/yr taxListing Courtesy of EXP REALTY

4C - 1474 PICKWICK DRIVE, Mississauga (East Credit)
Business$88,000
Listing Courtesy of RE/MAX ULTIMATE REALTY INC.

246 - 7181 YONGE STREET, Markham (Thornhill)
Business$88,000
Listing Courtesy of RE/MAX REALTRON SMART CHOICE TEAM

10 ROPER ROAD, Toronto (Clairlea-Birchmount)
Business$88,500
Listing Courtesy of SUTTON GROUP-ADMIRAL REALTY INC.

4 - 1179 BAYFIELD STREET N, Springwater (Midhurst)
Business$89,000
$1/yr taxListing Courtesy of ROYAL LEPAGE PRG REAL ESTATE

FC 7 - 280 GUELPH STREET, Halton Hills (Georgetown)
Business$89,000
Listing Courtesy of RE/MAX ABOUTOWNE REALTY CORP.

11 - 170 FINCHDENE SQUARE, Toronto (Rouge)
Business$89,000
Listing Courtesy of RE/MAX COMMUNITY REALTY INC.

7 - 9525 MISSISSAUGA ROAD, Brampton (Credit Valley)
Business$89,000
Listing Courtesy of EXP REALTY

486 FRONT STREET, Toronto (Waterfront Communities)
Business$89,000
Listing Courtesy of ROYAL LEPAGE REAL ESTATE SERVICES LTD.

5415 YONGE STREET, Toronto (Willowdale East)
Business$89,000
$887/yr taxListing Courtesy of TERRA REALTY INC.

42 DEWSON STREET E, Toronto (Palmerston-Little Italy)
Business$89,000
$1,300/yr taxListing Courtesy of CENTURY 21 HERITAGE GROUP LTD.

C-65 - 444 YONGE STREET, Toronto (Bay Street Corridor)
Business$89,000
Listing Courtesy of AREA REALTY INC.

65 - 280 GUELPH STREET, Halton Hills (Georgetown)
Business$89,000
Listing Courtesy of RE/MAX GOLD REALTY INC.

35 - 101 TORO ROAD, Toronto (York University Heights)
Business$86,900
$5,079/yr taxListing Courtesy of HOMELIFE/ROMANO REALTY LTD.

200 BROCK STREET S, Whitby (Downtown Whitby)
Business$89,900
Listing Courtesy of FIRST CLASS REALTY INC.
No rental comparables found in this area.
Sold Comparables
Access to sold property data requires a registered and verified account with TRREB DDF integration.
Coming SoonRented Comparables
Access to rented property data requires a registered and verified account with TRREB DDF integration.
Coming SoonBook a Viewing
421 RICHMOND STREET E, London East (East F), Ontario, N6A3C8
