420 VICTORIA BEACH ROAD, Cramahe, Ontario, K0K1S0
MLS: X12380743 | House (Freehold)
$1,199,000












Property Description
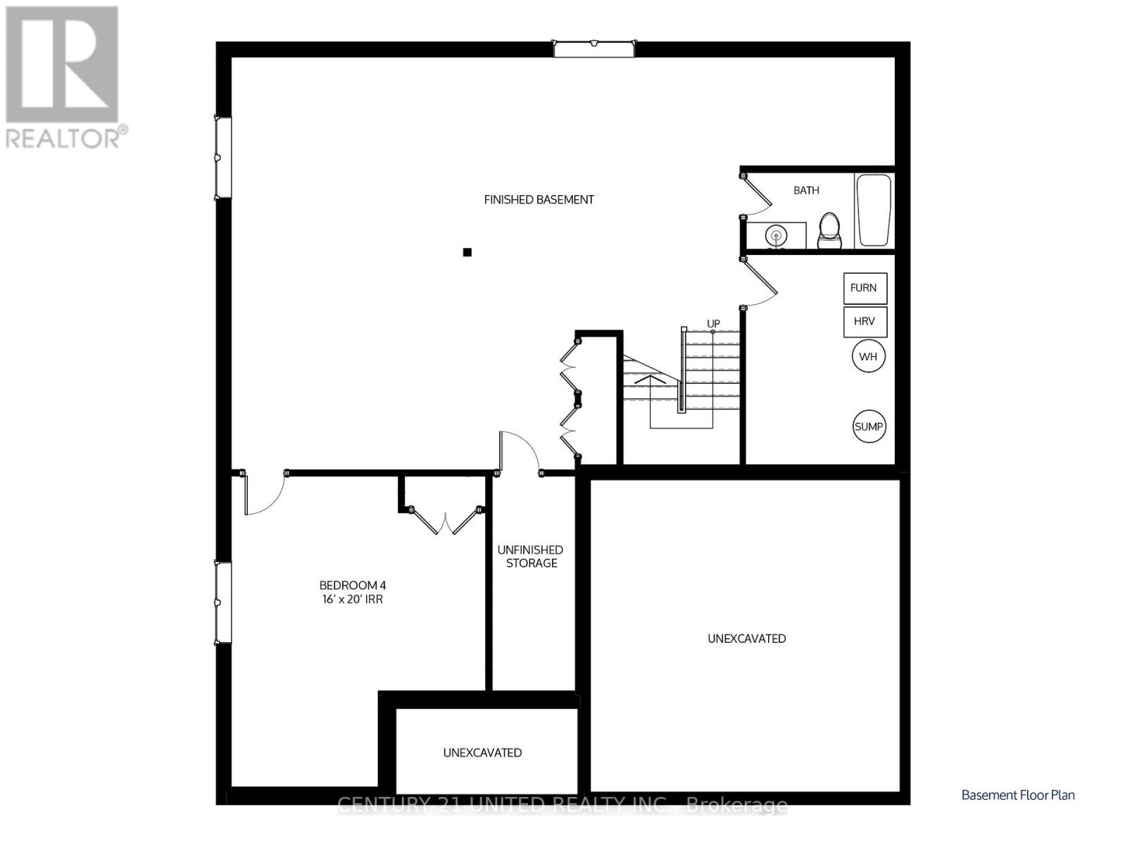
Welcome home! Fidelity Homes offers a unique opportunity to build your dream home. With a trusted local builder, you can customize finishes to suit your style. The welcoming floor plan features 1555 sq. ft. on the main floor, including open-concept living, dining, and a great room with walkout to a 12x20 deck. Three bedrooms, one of which is the roomy Primary Suite with ensuite bath and walkin closet, another full bath, laundry room, and mudroom complete the main floor. The finished basement provides additional space with another bathroom, fourth bedroom, and storage (approximately 1287 sq. ft.). This property spans over 4 acres in an L-shape, offering walking distance to Lake Ontario and proximity to town amenities. High-quality finishes include custom-looking cabinets, upgraded flooring, quartz countertops, and beautiful trim. Paint colors are preselected, but you can still add your personal flair. Covered by a 7 year Tarion Warranty and built with perfection in mind. Turn your dream home into reality! ( Home is not built yet). (id:64974)
Quick Facts
- Property Type: House (Freehold)
- Style: Bungalow
- Bedrooms: 4 (3 above, 1 below)
- Bathrooms: 3
- Ownership: Freehold
- Attached: No
- Parking: 4 spaces (Attached Garage, Garage)
- Frontage: 187 ft (57 m)
Listing Provided by: CENTURY 21 UNITED REALTY INC.
Board: Central Lakes Association of REALTORS®
Data provided via CREA DDF®.
Detailed Features
Interior & Systems
- Heating: Forced air, Propane
- Cooling: Central air conditioning
- Basement: Finished, Full
- Appliances: Garage door opener, Garage door opener remote(s), Water Heater
Exterior & Construction
- Style: Bungalow
- Exterior: Stone, Vinyl siding
- Foundation: Poured Concrete
- Sewer: Septic System
Lot & Land
- Frontage: 187 ft (57 m)
- Features: Flat site
- View: View of water
- Zoning: rural
Community & Neighbourhood
- Neighbourhood: Rural Cramahe
Room Details (10 rooms)
Listing Information
Listing History
Buy/Sell/Terminated/Expired listing history for 420 VICTORIA BEACH ROAD, Cramahe, Ontario, K0K1S0
Location & Neighborhood
🚗 Travel times
Neighborhood Walkability
Mortgage & Cost Calculators
Nearby Homes (Within 2km)
Similar Homes
Similar Properties
No rental comparables found in this area.
Sold Comparables
Access to sold property data requires a registered and verified account with TRREB DDF integration.
Coming SoonRented Comparables
Access to rented property data requires a registered and verified account with TRREB DDF integration.
Coming Soon





















