42 EAST 31ST STREET, Hamilton (Raleigh), Ontario, L8V3N7
MLS: X12985322 | House (Freehold)
$649,900


















































Property Description
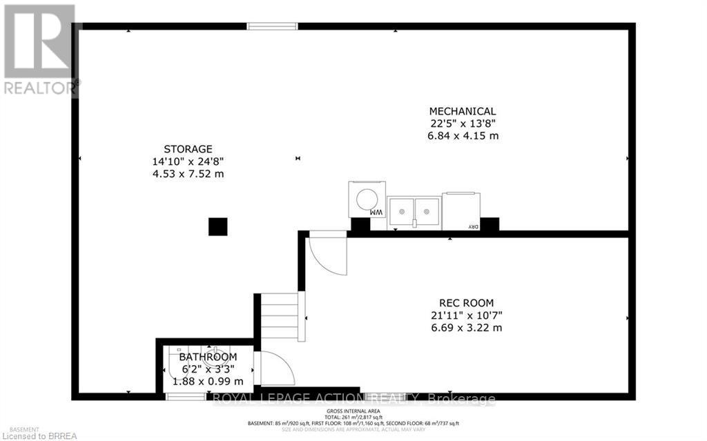
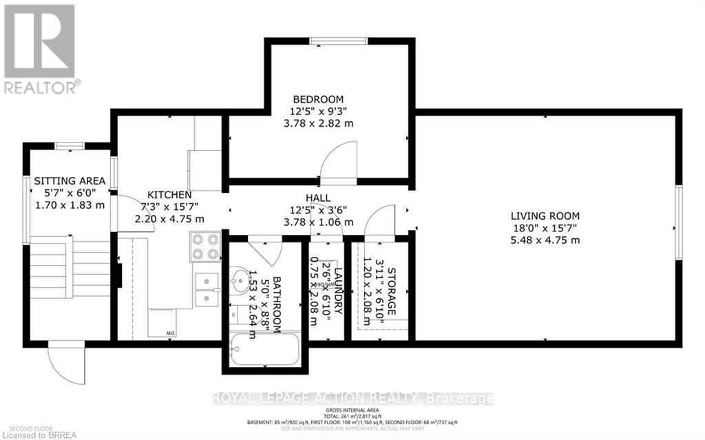
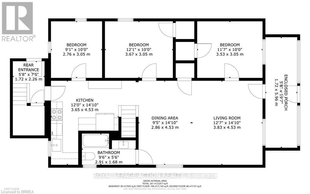
Freshly updated & move-in ready! This 4-bedroom, 3 bath home has two kitchens, recreation room, 2 laundry areas and a separate entrance, offering a versatile layout to accommodate your large family, extended family, or the possibility to generate rental income. The double-wide driveway fits 2 vehicles and leads to a front deck and large enclosed porch. Inside, the foyer opens into a bright open concept living/dining space featuring new " hardwood flooring and high ceilings throughout the main level. The main floor includes 3 bedrooms, all with hardwood, plus a new 4-piece bathroom with porcelain flooring, a soaker tub, and tile surround. The new eat-in kitchen features quartz countertops, ample cabinetry, hardwood flooring, and a quartz breakfast bar. It also provides access to a common area with a separate side entrance, leading to the backyard and upper portion of the home. The separate entrance off the kitchen has stairs that lead to a landing and a cozy upper deck with glass railing overlooking the yard. A few steps up is another landing that works perfectly as a mudroom, before entering the upper unit. The upper level has been updated and includes a newer kitchen with luxury vinyl flooring and granite countertops, plus an updated 4-piece bathroom with luxury vinyl flooring and a glass-entry shower with ceramic tile surround. The original hardwood has been refinished and runs through the spacious bedroom and combined living/dining area, which features vaulted ceilings and recessed lighting. The newly constructed lower level offers a recreation room with recessed lighting and broadloom, a 2-piece bath, and a large laundry/mechanical/storage area. Ideally located near Juravinski Hospital, this property is perfect for investors, extended families, or anyone looking for a flexible layout with income potential to help pay for expenses. (id:64974)
Quick Facts
- Property Type: House (Freehold)
- Bedrooms: 4 (4 above)
- Bathrooms: 3 (1 half)
- Ownership: Freehold
- Attached: No
- Parking: 2.0 spaces (No Garage)
- Frontage: 38 ft (11.5 m)
Costs
- Annual Taxes: $4,524.92 (2026)
Listing Provided by: ROYAL LEPAGE ACTION REALTY
Board: Toronto Regional Real Estate Board
Data provided via CREA DDF®.
Detailed Features
Interior & Systems
- Heating: Forced air, Natural gas
- Cooling: None
- Basement: Finished, Full
- Appliances: Washer, Dishwasher, Dryer, Microwave, Furniture, Two stoves, Water Heater, Two Refrigerators
Exterior & Construction
- Exterior: Vinyl siding, Brick Veneer
- Foundation: Block
- Fencing: Partially fenced
- Sewer: Sanitary sewer
- Water: Municipal water
Lot & Land
- Frontage: 38 ft (11.5 m)
- Features: Flat site, Guest Suite
- Zoning: R1 Low Density Residential
Community & Neighbourhood
- Neighbourhood: Raleigh
Room Details (16 rooms)
Listing Information
Listing History
MLS listing activity for 42 EAST 31ST STREET, Hamilton (Raleigh), Ontario, L8V3N7 — dates reflect when changes were recorded in the DDF
🚗 Travel times
Neighborhood Walkability
Mortgage & Cost Calculators
Nearby Homes ?Nearby Homes — Search CriteriaSearch Radius1 kmPrice Range±5%Match BedroomsYesMatch BathroomsYes

42 EAST 31ST Street, Hamilton
House$649,900
$4,525/yr taxListing Courtesy of Royal LePage Action Realty

33 SHADYSIDE AVENUE, Hamilton (Burkholme)
House$679,900
$4,821/yr taxListing Courtesy of RE/MAX SUCCESS REALTY

72 EAST 32ND STREET, Hamilton (Raleigh)
House$599,900
$4,259/yr taxListing Courtesy of RE/MAX ESCARPMENT REALTY INC.

72 EAST 32ND Street, Hamilton
House$599,900
$4,259/yr taxListing Courtesy of RE/MAX Escarpment Realty Inc.

20 EAST 27TH Street, Hamilton
House$450,000
$3,841/yr taxListing Courtesy of RE/MAX Escarpment Realty Inc.

75 EAST 33RD Street Unit# LOWER, Hamilton
House$1,725/mo
Listing Courtesy of Coldwell Banker Community Professionals

9 MUNN Street Unit# A, Hamilton
House$2,275/mo
Listing Courtesy of RE/MAX Escarpment Realty Inc.

A - 9 MUNN STREET, Hamilton (Raleigh)
Other$2,275/mo
Listing Courtesy of RE/MAX ESCARPMENT REALTY INC.

836 CONCESSION Street Unit# 208, Hamilton
Condo - Apartment$349,777
$1,884/yr taxListing Courtesy of RE/MAX Escarpment Realty Inc.

206 - 836 CONCESSION STREET, Hamilton (Raleigh)
Condo - Apartment$2,300/mo
Listing Courtesy of RE/MAX PROFESSIONALS INC.

208 - 836 CONCESSION STREET, Hamilton (Raleigh)
Condo - Apartment$349,777
$1,884/yr taxListing Courtesy of RE/MAX ESCARPMENT REALTY INC.

28 MUNN Street, Hamilton
House$519,900
$3,544/yr taxListing Courtesy of RE/MAX Escarpment Realty Inc.

6 BEN LOMOND Place, Hamilton
House$529,900
$4,138/yr taxListing Courtesy of Realty Network

94 EAST 35TH Street Unit# 2, Hamilton
House$2,250/mo
Listing Courtesy of CASORA REALTY INC.

39 EAST 36TH Street, Hamilton
House$1,250/mo
Listing Courtesy of Right at Home Realty
Similar Homes ?Similar Homes — Search CriteriaSearch Radius5 kmPrice Range±5%Match Home TypeYesMatch BedroomsYes

257 QUEENSDALE Avenue E, Hamilton
House$649,900
$4,851/yr taxListing Courtesy of RE/MAX Escarpment Realty Inc.

257 QUEENSDALE AVENUE E, Hamilton (Inch Park)
House$649,900
$4,851/yr taxListing Courtesy of RE/MAX ESCARPMENT REALTY INC.

219 EAST 21ST Street, Hamilton
House$649,900
$4,200/yr taxListing Courtesy of RE/MAX Escarpment Realty Inc.

42 EAST 31ST Street, Hamilton
House$649,900
$4,525/yr taxListing Courtesy of Royal LePage Action Realty

91 WEIR STREET S, Hamilton (Bartonville)
House$649,990
$4,540/yr taxListing Courtesy of ROYAL LEPAGE NRC REALTY

191 EAST 11TH Street, Hamilton
House$649,999
$4,297/yr taxListing Courtesy of eXp Realty

209 GLENDALE Avenue N, Hamilton
House$650,000
$3,400/yr taxListing Courtesy of Keller Williams Edge Realty

209 GLENDALE AVENUE N, Hamilton (Crown Point)
House$650,000
$3,400/yr taxListing Courtesy of KELLER WILLIAMS EDGE REALTY

70 WELLINGTON STREET S, Hamilton (Corktown)
House$649,000
$3,500/yr taxListing Courtesy of RE/MAX ABOUTOWNE REALTY CORP.

86 RITA Avenue, Hamilton
Row / Townhouse$649,000
$4,926/yr taxListing Courtesy of Jim Pauls Real Estate Ltd.

70 WELLINGTON STREET S, Hamilton (Corktown)
House$649,000
$3,500/yr taxListing Courtesy of RE/MAX ABOUTOWNE REALTY CORP.

191 QUEEN STREET N, Hamilton (Strathcona)
House$659,900
$3,773/yr taxListing Courtesy of EXP REALTY

300 EAST 43RD Street, Hamilton
House$639,900
$4,229/yr taxListing Courtesy of Royal LePage State Realty Inc.

68-70 ROBERT Street, Hamilton
House$659,900
$4,087/yr taxListing Courtesy of RE/MAX Escarpment Realty Inc.

68-70 ROBERT STREET N, Hamilton (Beasley)
House$659,900
$4,087/yr taxListing Courtesy of RE/MAX ESCARPMENT REALTY INC.
Similar Properties ?Active Comparables — Search CriteriaSearch Radius2 kmPrice Range±5%Match Home TypeYesMatch BedroomsYes

219 EAST 21ST Street, Hamilton
House$649,900
$4,200/yr taxListing Courtesy of RE/MAX Escarpment Realty Inc.

42 EAST 31ST Street, Hamilton
House$649,900
$4,525/yr taxListing Courtesy of Royal LePage Action Realty

257 QUEENSDALE Avenue E, Hamilton
House$649,900
$4,851/yr taxListing Courtesy of RE/MAX Escarpment Realty Inc.

257 QUEENSDALE AVENUE E, Hamilton (Inch Park)
House$649,900
$4,851/yr taxListing Courtesy of RE/MAX ESCARPMENT REALTY INC.

191 EAST 11TH Street, Hamilton
House$649,999
$4,297/yr taxListing Courtesy of eXp Realty

209 GLENDALE Avenue N, Hamilton
House$650,000
$3,400/yr taxListing Courtesy of Keller Williams Edge Realty

209 GLENDALE AVENUE N, Hamilton (Crown Point)
House$650,000
$3,400/yr taxListing Courtesy of KELLER WILLIAMS EDGE REALTY

70 WELLINGTON STREET S, Hamilton (Corktown)
House$649,000
$3,500/yr taxListing Courtesy of RE/MAX ABOUTOWNE REALTY CORP.

70 WELLINGTON STREET S, Hamilton (Corktown)
House$649,000
$3,500/yr taxListing Courtesy of RE/MAX ABOUTOWNE REALTY CORP.

300 EAST 43RD Street, Hamilton
House$639,900
$4,229/yr taxListing Courtesy of Royal LePage State Realty Inc.

25 SPADINA AVENUE, Hamilton (Stipley)
House$669,000
$4,356/yr taxListing Courtesy of HOMELIFE/MIRACLE REALTY LTD

25 SPADINA Avenue, Hamilton
House$669,000
$4,356/yr taxListing Courtesy of HOMELIFE MIRACLE REALTY LTD

300 EAST 32ND Street, Hamilton
House$624,900
$4,109/yr taxListing Courtesy of CASORA REALTY INC.

22 HALAM AVENUE, Hamilton (Burkholme)
House$679,000
$4,008/yr taxListing Courtesy of REAL ONE REALTY INC.

33 SHADYSIDE AVENUE, Hamilton (Burkholme)
House$679,900
$4,821/yr taxListing Courtesy of RE/MAX SUCCESS REALTY
No rental comparables found in this area.
Sold Comparables
Access to sold property data requires a registered and verified account with TRREB DDF integration.
Coming SoonRented Comparables
Access to rented property data requires a registered and verified account with TRREB DDF integration.
Coming SoonBook a Viewing
42 EAST 31ST STREET, Hamilton (Raleigh), Ontario, L8V3N7
