42 EAST 31ST STREET, Hamilton (Raleigh), Ontario, L8V3N7
MLS: X12776300 | House (Freehold)
$689,000




















































Property Description
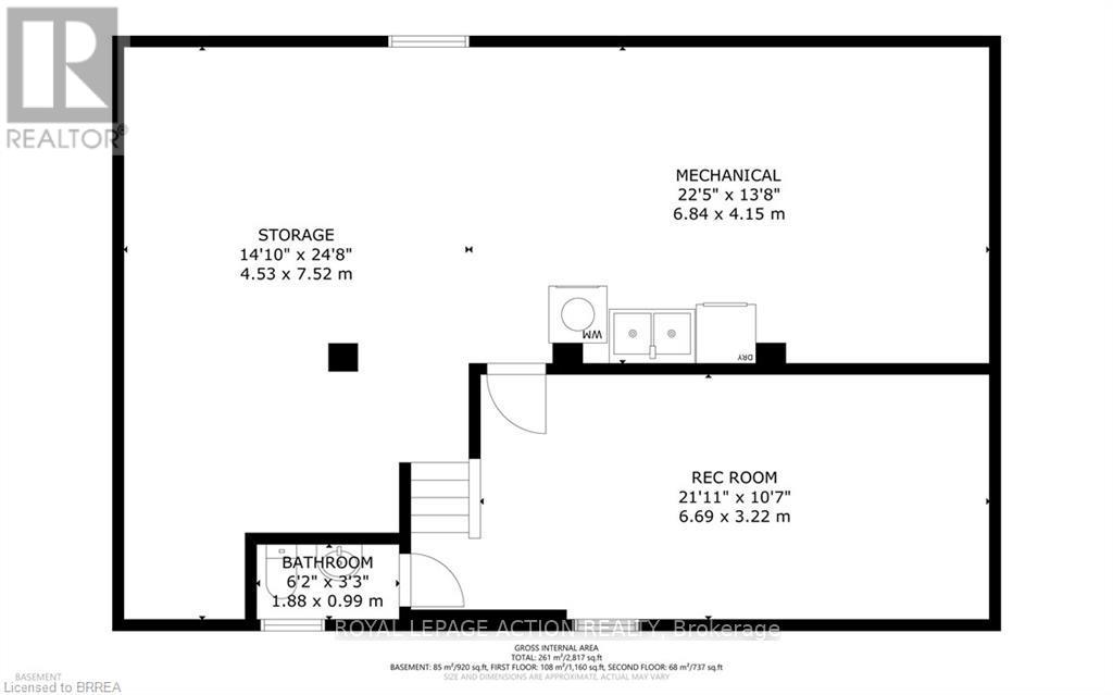
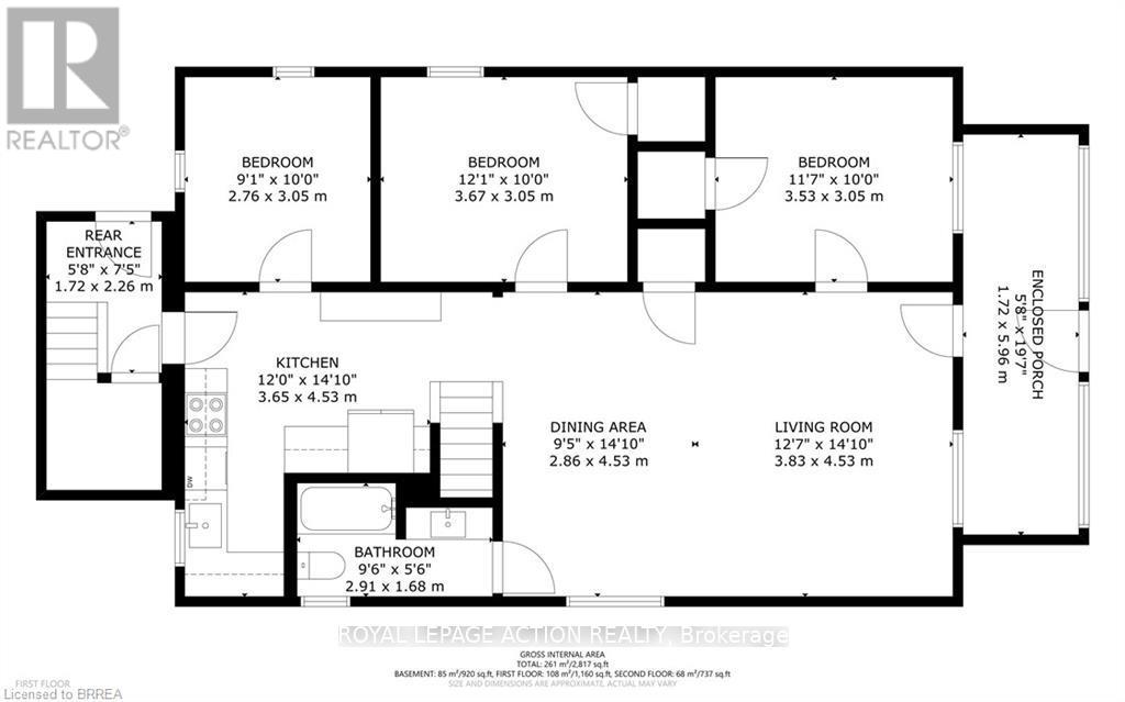
Freshly updated & move-in ready! This 4-bedroom, 3 bath home has two kitchens, recreation room, 2 laundry areas and a separate entrance, offering a versatile layout to accommodate your large family, extended family, or the possibility to generate rental income. The double-wide driveway fits 2 vehicles and leads to a front deck and large enclosed porch. Inside, the foyer opens into a bright open concept living/dining space featuring new " hardwood flooring and high ceilings throughout the main level. The main floor includes 3 bedrooms, all with hardwood, plus a new 4-piece bathroom with porcelain flooring, a soaker tub, and tile surround. The new eat-in kitchen features quartz countertops, ample cabinetry, hardwood flooring, and a quartz breakfast bar. It also provides access to a common area with a separate side entrance, leading to the backyard and upper portion of the home. The separate entrance off the kitchen has stairs that lead to a landing and a cozy upper deck with glass railing overlooking the yard. A few steps up is another landing that works perfectly as a mudroom, before entering the upper unit. The upper level has been updated and includes a newer kitchen with luxury vinyl flooring and granite countertops, plus an updated 4-piece bathroom with luxury vinyl flooring and a glass-entry shower with ceramic tile surround. The original hardwood has been refinished and runs through the spacious bedroom and combined living/dining area, which features vaulted ceilings and recessed lighting. The newly constructed lower level offers a recreation room with recessed lighting and broadloom, a 2-piece bath, and a large laundry/mechanical/storage area. Ideally located near Juravinski Hospital, this property is perfect for investors, extended families, or anyone looking for a flexible layout with income potential to help pay for expenses. (id:64974)
Quick Facts
- Property Type: House (Freehold)
- Bedrooms: 4 (3 above, 1 below)
- Bathrooms: 3 (1 half)
- Ownership: Freehold
- Attached: No
- Parking: 2 spaces (No Garage)
- Frontage: 38 ft (11.5 m)
Costs
- Annual Taxes: $4,524.92 (2025)
Listing Provided by: ROYAL LEPAGE ACTION REALTY
Board: Toronto Regional Real Estate Board
Data provided via CREA DDF®.
Detailed Features
Interior & Systems
- Heating: Forced air, Natural gas
- Cooling: None
- Basement: Finished, Full
- Appliances: Washer, Dishwasher, Dryer, Microwave, Oven - Built-In, Furniture, Two stoves, Water Heater, Two Refrigerators
Exterior & Construction
- Exterior: Vinyl siding, Brick Veneer
- Foundation: Block
- Sewer: Sanitary sewer
- Water: Municipal water
Lot & Land
- Frontage: 38 ft (11.5 m)
- Features: Flat site, Guest Suite
- View: City view
- Zoning: R1 Low Density Residential
Community & Neighbourhood
- Neighbourhood: Raleigh
Room Details (16 rooms)
Listing Information
Listing History
Buy/Sell/Terminated/Expired listing history for 42 EAST 31ST STREET, Hamilton (Raleigh), Ontario, L8V3N7
Location & Neighborhood
🚗 Travel times
Neighborhood Walkability
Mortgage & Cost Calculators
Nearby Homes (Within 2km)
Similar Homes
Similar Properties
No rental comparables found in this area.
Sold Comparables
Access to sold property data requires a registered and verified account with TRREB DDF integration.
Coming SoonRented Comparables
Access to rented property data requires a registered and verified account with TRREB DDF integration.
Coming Soon























