42 DUCHESS Drive, Delhi, Ontario, N4B0B3
MLS: 40812500 | House (Freehold)
$938,400






Property Description
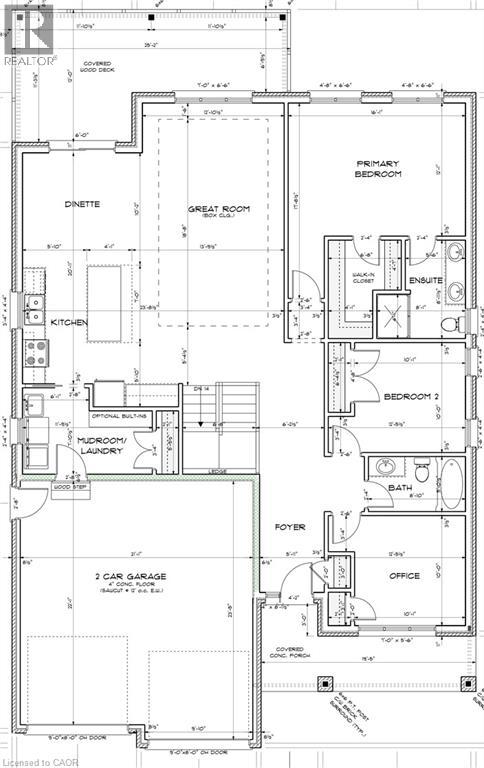
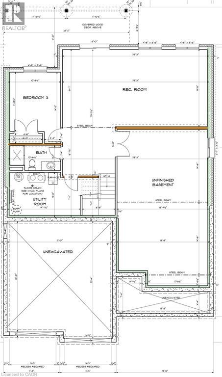
Welcome to 42 Duchess Drive in Delhi, a thoughtfully designed bungalow, offering exceptional craftsmanship, modern functionality, and future flexibility. Set on a premium lot in Bluegrass Estates, currently under construction, this home blends timeless exterior finishes with a layout tailored for today’s lifestyles. The main level features approximately 1,697 sq. ft. of bright, open-concept living, highlighted by a spacious great room with tray ceiling and large windows, a well-appointed kitchen with custom cabinetry and a 7-foot island with seating. A dining area with patio doors leading to a covered rear deck. Three generously sized bedrooms are located on the main floor, including a private primary suite complete with walk-in closet and ensuite featuring double sinks. Main-floor laundry doubles as a functional mudroom with sink and storage. The walk-out lower level adds approximately 750 sq. ft. of finished space, including a large recreation room with direct backyard access, a fourth bedroom, and a full three-piece bathroom. An additional expansive area remains unfinished, offering excellent potential for future development, multi-generational living, or in-law capability. Exterior finishes include brick, stone, and stucco accents, a poured concrete foundation, attached double garage, and a double-wide private driveway. Municipal services, natural gas heating, central air, HRV/ERV system, and high-speed internet are all included. Ideally located close to schools, parks, recreation facilities, shopping, and community amenities, this property offers the opportunity to secure a brand-new home in one of Delhi’s most desirable residential areas. There is still time to customize this home for your personal use. Taxes not yet assessed. (id:64974)
Quick Facts
- Property Type: House (Freehold)
- Style: Bungalow
- Bedrooms: 4 (3 above, 1 below)
- Bathrooms: 3
- Living Area: 2,447 sq ft (227.3 m²)
- Above Grade: 1,697 sq ft (157.7 m²)
- Below Grade: 750 sq ft (69.7 m²)
- Ownership: Freehold
- Attached: No
- Parking: 6.0 spaces (Attached Garage)
- Frontage: 50 ft (15.2 m)
Listing Provided by: COLDWELL BANKER BIG CREEK REALTY LTD. BROKERAGE
Board: Cornerstone Association of REALTORS®
Data provided via CREA DDF®.
Detailed Features
Interior & Systems
- Heating: Forced air, Natural gas
- Cooling: Central air conditioning
- Basement: Partially finished, Full
- Appliances: Water meter, Garage door opener
- Utilities: Natural Gas, Electricity
- Security: Smoke Detectors
Exterior & Construction
- Style: Bungalow
- Exterior: Stone, Stucco, Brick Veneer
- Foundation: Poured Concrete
- Sewer: Municipal sewage system, Sanitary sewer
- Water: Municipal water
Lot & Land
- Frontage: 50 ft (15.2 m)
- Features: Crushed stone driveway, Sump Pump, Automatic Garage Door Opener
- Zoning: R1A
Community & Neighbourhood
- Community: Quiet Area, School Bus, Community Centre
- Subdivision: Delhi
Room Details (14 rooms)
Listing Information
Listing History
MLS listing activity for 42 DUCHESS Drive, Delhi, Ontario, N4B0B3 — dates reflect when changes were recorded in the DDF
🚗 Travel times
Neighborhood Walkability
Mortgage & Cost Calculators
Nearby Homes ?Nearby Homes — Search CriteriaSearch Radius1 kmPrice Range±5%Match BedroomsYesMatch BathroomsYes

62 DUCHESS Drive, Delhi
House$774,700
Listing Courtesy of COLDWELL BANKER BIG CREEK REALTY LTD. BROKERAGE

381 ARGYLE Avenue, Delhi
House$574,400
Listing Courtesy of COLDWELL BANKER BIG CREEK REALTY LTD. BROKERAGE

383 ARGYLE Avenue, Delhi
House$622,600
Listing Courtesy of COLDWELL BANKER BIG CREEK REALTY LTD. BROKERAGE

73 DUCHESS Drive, Delhi
House$783,200
Listing Courtesy of COLDWELL BANKER BIG CREEK REALTY LTD. BROKERAGE

82 DUCHESS Drive, Delhi
House$749,900
Listing Courtesy of RE/MAX Erie Shores Realty Inc. Brokerage

377 ARGYLE Avenue, Delhi
House$625,000
Listing Courtesy of RE/MAX Erie Shores Realty Inc. Brokerage

74 DUCHESS Drive, Delhi
House$765,900
Listing Courtesy of COLDWELL BANKER BIG CREEK REALTY LTD. BROKERAGE

375 ARGYLE Avenue, Delhi
House$575,000
Listing Courtesy of RE/MAX Erie Shores Realty Inc. Brokerage

379 ARGYLE Avenue, Delhi
House$559,000
Listing Courtesy of RE/MAX Erie Shores Realty Inc. Brokerage

373 ARGYLE Avenue, Delhi
House$575,000
Listing Courtesy of RE/MAX Erie Shores Realty Inc. Brokerage

89 DUCHESS Drive, Delhi
House$799,900
Listing Courtesy of RE/MAX Erie Shores Realty Inc. Brokerage

304 COURTLAND STREET, Norfolk (Delhi)
House$799,900
$4,942/yr taxListing Courtesy of REAL BROKER ONTARIO LTD.

304 COURTLAND Street, Delhi
House$799,900
$4,942/yr taxListing Courtesy of Real Broker Ontario Ltd.

295 COURTLAND Street, Delhi
House$749,900
$4,374/yr taxListing Courtesy of RE/MAX Escarpment Realty Inc.

324 COURTLAND STREET, Delhi
House$919,900
$4,737/yr taxListing Courtesy of RE/MAX Erie Shores Realty Inc. Brokerage
Similar Homes ?Similar Homes — Search CriteriaSearch Radius5 kmPrice Range±5%Match Home TypeYesMatch BedroomsYes

87 ACACIA ROAD, Pelham (Fonthill)
House$938,000
$8,518/yr taxListing Courtesy of Royal Lepage Real Estate Associates

733 - 25 ADRA GRADO WAY, Toronto (Bayview Village)
Condo - Apartment$938,000
$4,585/yr taxListing Courtesy of HOME STANDARDS BRICKSTONE REALTY

29 QUEEN'S PLATE DRIVE, Markham (Angus Glen)
Row / Townhouse$938,000
$5,427/yr taxListing Courtesy of UNION CAPITAL REALTY

18 RADMORE PLACE, Markham (Box Grove)
House$938,000
$3,717/yr taxListing Courtesy of NU STREAM REALTY (TORONTO) INC.

4861 VERDI STREET, Burlington (Alton)
House$938,800
$5,072/yr taxListing Courtesy of HOMETRADE REALTY INC.

1006 - 4955 YONGE STREET, Toronto (Willowdale East)
Condo - Apartment$938,000
Listing Courtesy of BAY STREET GROUP INC.

166 SHARPE CRESCENT, New Tecumseth (Tottenham)
House$938,800
$4,887/yr taxListing Courtesy of ROYAL LEPAGE PREMIUM ONE REALTY

37 BILBROUGH STREET, Aurora
Row / Townhouse$938,000
$4,603/yr taxListing Courtesy of REAL ONE REALTY INC.

6859 MAIN STREET, Whitchurch-Stouffville (Stouffville)
Row / Townhouse$938,000
$4,594/yr taxListing Courtesy of BAY STREET GROUP INC.

9 MICHAEL CUMMINGS COURT, Uxbridge
Row / Townhouse$938,000
$5,916/yr taxListing Courtesy of Royal LePage Frank Real Estate

2702 - 15 MERCER STREET, Toronto (Waterfront Communities)
Condo - Apartment$938,000
$4,721/yr taxListing Courtesy of ROYAL LEPAGE SIGNATURE REALTY

9 TRALEE AVENUE, Toronto (Morningside)
House$938,888
$3,861/yr taxListing Courtesy of CENTURY 21 MILLENNIUM INC.

236 SIMCOE AVENUE, Georgina (Keswick North)
House$938,888
$4,471/yr taxListing Courtesy of CENTURY 21 HERITAGE GROUP LTD.

10 - 4230 FIELDGATE DRIVE, Mississauga (Rathwood)
Condo - Row / Townhouse$938,888
$4,870/yr taxListing Courtesy of ROYAL LEPAGE REAL ESTATE SERVICES LTD.

1001 - 185 ALBERTA AVENUE, Toronto (Oakwood Village)
Condo - Apartment$937,900
$5,464/yr taxListing Courtesy of RE/MAX HALLMARK REALTY LTD.
Similar Properties ?Active Comparables — Search CriteriaSearch Radius2 kmPrice Range±5%Match Home TypeYesMatch BedroomsYes
No active comparables found in this area.
No rental comparables found in this area.
Sold Comparables
Access to sold property data requires a registered and verified account with TRREB DDF integration.
Coming SoonRented Comparables
Access to rented property data requires a registered and verified account with TRREB DDF integration.
Coming SoonBook a Viewing
42 DUCHESS Drive, Delhi, Ontario, N4B0B3
