4109 - 2920 HIGHWAY 7, Vaughan (Concord), Ontario, L4K0P4
MLS: N12855662 | Apartment (Condo)
$499,000

























Property Description
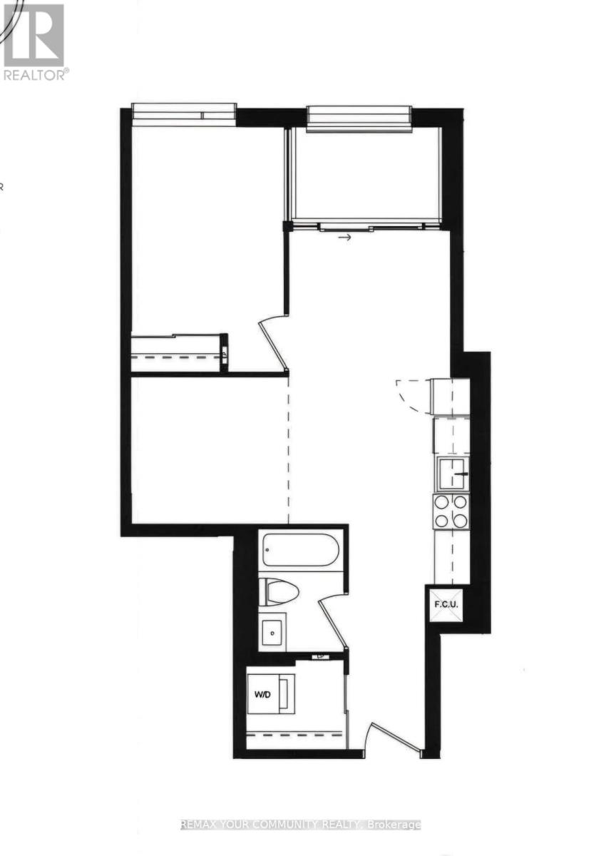
Welcome to 2920 Highway 7 #4109. This elegant CG Tower unit features a one-bedroom layout with a specious den and one full bathroom. The den is large enough to function as a second bedroom or dedicated home office. The suite has been thoughtfully designed, offering an open-concept layout that seamlessly blends the kitchen, dining and living areas. Step out onto your private balcony and enjoy fresh air and outdoor space. With 9-foot ceilings and expensive floor-to-ceiling windows, the unit is bathed in natural light throughout. Convenient location in the centre of Vaughan Metropolitan Centre (VMC), which is close to York University, the TTC, the subway, and Highway 407. Top-notch facilities include a 24-hour concierge, a fully furnished fitness center, a media room, an outdoor pool, and a rooftop terrace with expansive views. (id:64974)
Quick Facts
- Property Type: Apartment (Condo)
- Bedrooms: 2 (1 above, 1 below)
- Bathrooms: 1
- Ownership: Condo/Strata
- Attached: Yes
Costs
- Condo/HOA Fee: $365.92 / monthly
- Corp: Del Property Management
- Includes: Common Area Maintenance, Heat, Water, Insurance
Listing Provided by: REMAX YOUR COMMUNITY REALTY
Board: Toronto Regional Real Estate Board
Data provided via CREA DDF®.
Detailed Features
Interior & Systems
- Heating: Forced air, Natural gas
- Cooling: Central air conditioning
- Basement: None
- Flooring: Laminate
Exterior & Construction
- Exterior: Concrete
Lot & Land
- Features: Balcony, In suite Laundry
Community & Neighbourhood
- Community: Pets Allowed With Restrictions
- Neighbourhood: Concord
Room Details (5 rooms)
Listing Information
Listing History
Buy/Sell/Terminated/Expired listing history for 4109 - 2920 HIGHWAY 7, Vaughan (Concord), Ontario, L4K0P4
Location & Neighborhood
🚗 Travel times
Neighborhood Walkability
Mortgage & Cost Calculators
Nearby Homes (Within 2km)
Similar Homes
Similar Properties
No rental comparables found in this area.
Sold Comparables
Access to sold property data requires a registered and verified account with TRREB DDF integration.
Coming SoonRented Comparables
Access to rented property data requires a registered and verified account with TRREB DDF integration.
Coming Soon
































