41 MAPLE AVENUE, Dysart et al (Dysart), Ontario, K0M1S0
MLS: X12827926 | Retail
$1,400,000



















































Property Description
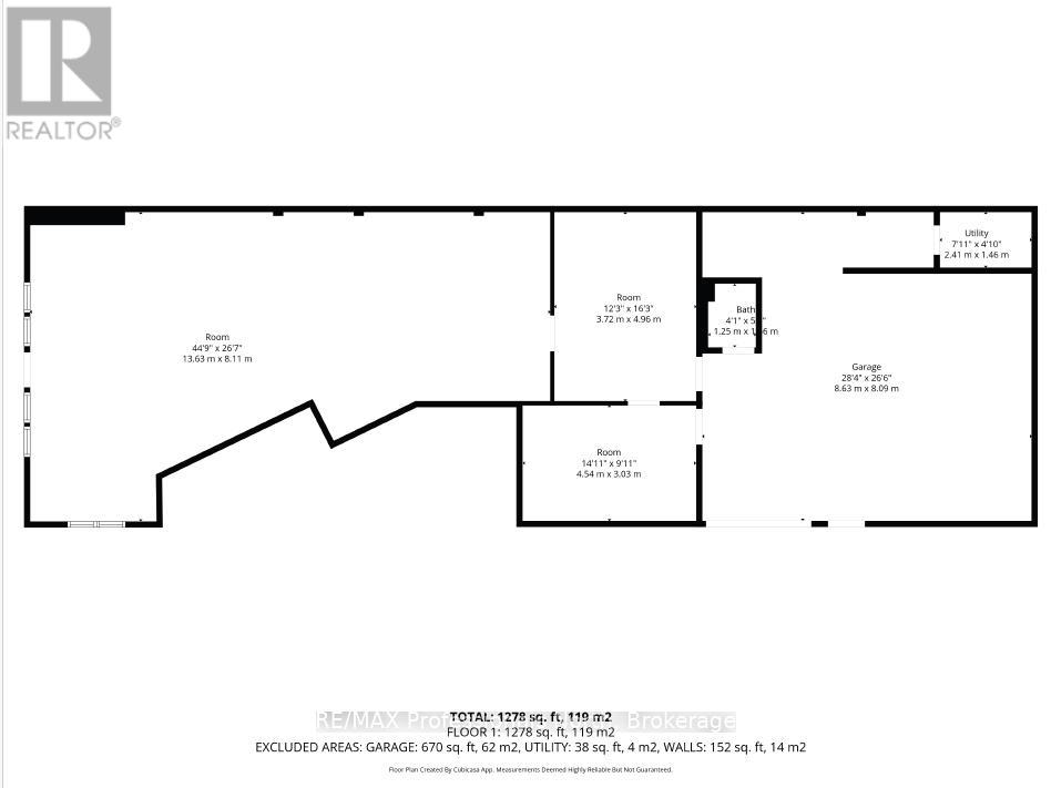
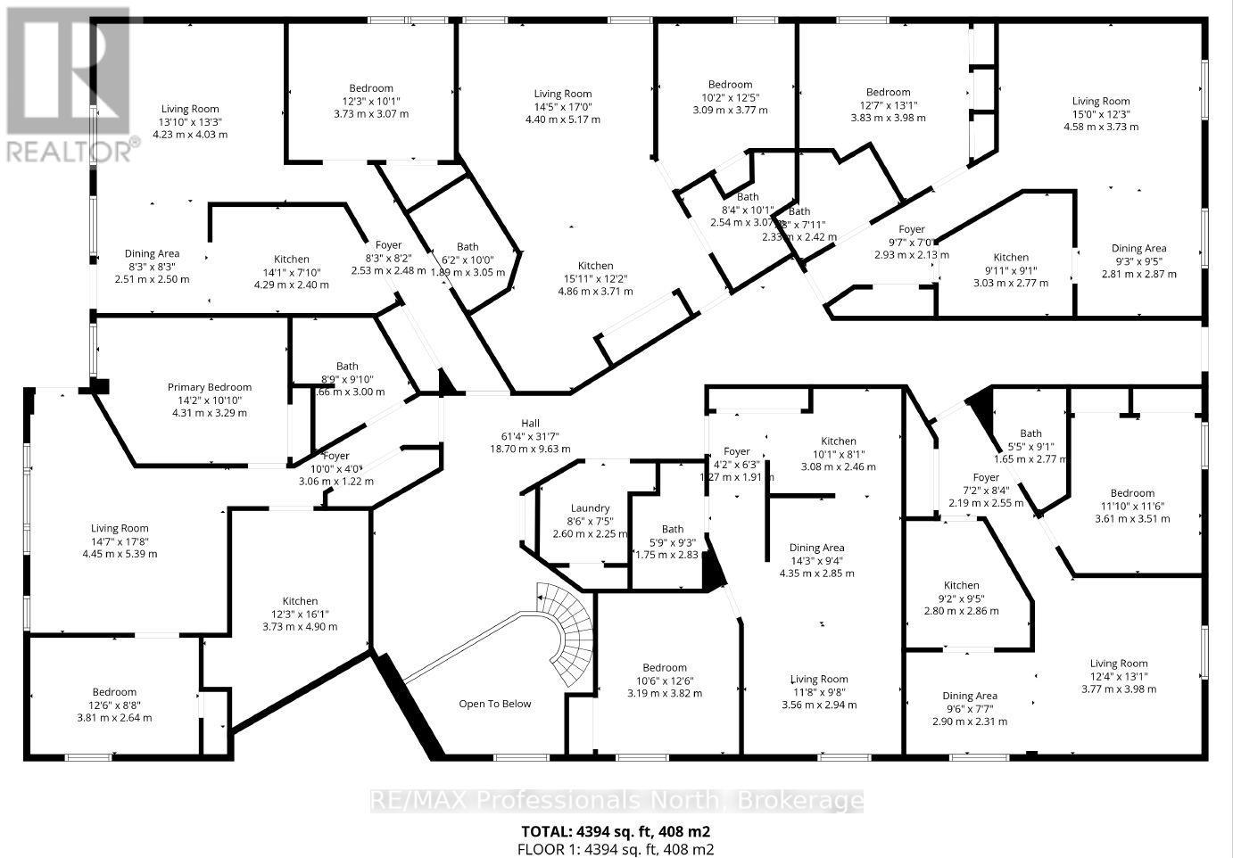
An exceptional investment opportunity in the heart of Haliburton! This well-maintained mixed-use building is now available for sale, offering 2 commercial units plus 6 fully renovated residential units - an ideal income-generating property.The building has undergone significant improvements including new trusses and new roof, as well all units being brought up to fire and electrical code, providing peace of mind for years to come. All 6 residential apartments have been beautifully renovated with new flooring, carpet, and updated kitchens, making them highly attractive to tenants. One of the commercial units has also been renovated. The main commercial space spans 2,288 sq ft and boasts prime highway exposure off Highway 118/Maple Avenue in the heart of Haliburton - excellent visibility for any business. Features include large front windows flooding the space with natural light, a level parking lot, a 2-piece washroom, a kitchenette, and a shipping/receiving area with back access and a roll-up door. Whether you're looking to owner-occupy one of the commercial units while collecting rental income, or add a turnkey investment property to your portfolio, this is an opportunity not to be missed! (id:64974)
Quick Facts
- Property Type: Retail
- Bedrooms: None
- Bathrooms: None
- Living Area: 7,176 sq ft (666.7 m²)
- Lot Size: 0.4100 acres (0.17 ha)
- Frontage: 80 ft (24.5 m)
Costs
- Annual Taxes: $10,708.00 (2025)
Listing Provided by: RE/MAX Professionals North
Board: OnePoint Association of REALTORS®
Data provided via CREA DDF®.
Detailed Features
Interior & Systems
- Heating: Baseboard heaters, Forced air, Oil, Electric, Hot Water
- Cooling: Partially air conditioned
Lot & Land
- Lot Size: 0.4100 acres (0.17 ha)
- Frontage: 80 ft (24.5 m)
- Zoning: C2
Community & Neighbourhood
- Neighbourhood: Dysart
Listing Information
Listing History
Buy/Sell/Terminated/Expired listing history for 41 MAPLE AVENUE, Dysart et al (Dysart), Ontario, K0M1S0
Location & Neighborhood
🚗 Travel times
Neighborhood Walkability
Mortgage & Cost Calculators
Nearby Homes (Within 2km)
Similar Homes
Similar Properties
No rental comparables found in this area.
Sold Comparables
Access to sold property data requires a registered and verified account with TRREB DDF integration.
Coming SoonRented Comparables
Access to rented property data requires a registered and verified account with TRREB DDF integration.
Coming Soon
























